Rafinovaná hra fasády s jasnými pravidlami
Niektoré fasády slúžia len na svoj tradičný účel. Iné sa zase snažia upútať svojím výrazom či farebnosťou. A potom sú také, ktoré chcú presiahnuť ohraničenosť svojho pôdorysu. Aktívne komunikujú s okolím, ale zároveň vyjadrujú svoj obsah. Takáto fasáda s pridanou hodnotou je aj súčasťou novej administratívno-výrobnej haly Etis, ktorá sa nachádza na okrajovej časti Bratislavy – vo Vrakuni.
Sklenená koža
Podľa slov autora projektu Ing. arch. Andreja Alexyho bola na začiatku návrhu predstava jednoduchej škatule, ktorá je otvorená do ulice a prostredníctvom transparentnej fasády oslovuje návštevníka. Vo výsledku je táto ambícia naplnená, pričom architektonický výraz pracuje s účelným a zredukovaným slovníkom elementárnych tvarov a základných farieb.
Použitie jednoduchých a jasných výtvarných prvkov vytvára celkový výraz objektu so snahou podporiť tektonickú sviežosť a materiálovú vitálnosť architektúry. Vnútorná prevádzka je zreteľne čitateľná aj vo vonkajšom stvárnení. Reprezentatívnosť administratívnej časti nachádza svoj odraz v celoplošnom zasklení fasády, za ktorou sa transparentne odráža vnútorný život budovy.
„Sklo ako obal spája budovu s okolím,“ opisuje objekt Andrej Alexy. „Transparentná fasáda veľmi živo reaguje počas dňa na svetlo. Dynamicky mení výraz od zachmúrenej antracitovosivej až po rozžiarenú svetlomodrú. Budova navyše žije aj v noci a pod ,sklenenou kožou‘ sa odohráva farebné predstavenie vnútorného života budovy.
Architektúra prostredníctvom transparentnej fasády komunikuje s okolitým prostredím, ktoré vniká do budovy a stáva sa jej súčasťou. Architektúra tak zhmotnila filozofiu spoločnosti Etis, ktorá navrhuje a tlačí samolepiace etikety pre potravinársky priemysel.“

Filozofia architektonického konceptu sa premieta do čistých línií, ktoré kreslia elegantnú siluetu objektu. Horizontálnu líniu hmoty budovy podporuje obdĺžniková línia pásových okien. Vysunutý vstupný portál rámuje celú fasádu a signalizuje vstup. Čelnú vstupnú fasádu orientovanú na severovýchod vytvára celoplošné zasklenie hliníkového systému Ponzio s celkovými rozmermi 36 × 6,2 m. Architekti použili na fasáde izolačné dvojsklo s nízkoemisným selektívnym zasklením a s potlačou, ktorá je súčasne výrazným vizuálnym motívom.
Najväčšie rozmery pevného zasklenia sú zrealizované na výšku jedného podlažia 3 125 mm, so šírkou 3 500 mm. Vetracie sklopné krídla majú rozmer 1 100 × 2 600 mm. Pasívnu ochranu pred slnečným žiarením zabezpečuje systém interiérových textilných roliet.

Vstupy sú zapustené do hmoty a vytvárajú prirodzené prekrytie manipulačnej rampy. Severozápadnú a juhovýchodnú fasádu akcentuje vertikálne zasklenie cez celú výšku budovy, čím sa opticky oddelila administratívna a výrobná časť. Juhozápadná fasáda je z prevádzkových dôvodov bez členenia a otvorov.

Je len prirodzené, že tento typologický druh architektúry predpokladá logickú a prehľadnú prevádzkovú osnovu. Objekt spoločnosti Etis však ide ďalej a k jasnej organizácii priestorov pridáva aj nadštandardné riešenie interiérov. Samozrejme, dôraz v tomto smere je na obchodno-administratívnej časti, kde tvarovanie interiérových prvkov a ich skladba vytvárajú atmosféru jednotného dizajnu.
Architekti citlivo, ale veľmi presvedčivo prezentujú všetky prvky súvisiace s výrobnou činnosťou spoločnosti Etis. Nie je to však samoúčelné vyzdvihovanie obsahu, ale rafinovaná hra s jasnými pravidlami. Všetko sa premieta do detailov, ktoré sú ako premyslené koráliky navlečené na architektonickej niti nápadov.
Či už ide o priznanú konštrukciu stropov, priemyselné svietidlá vo vstupnej hale, exaktnú formu skleneného zábradlia na schodisku, alebo zavesený kovový podhľad – vždy je to snaha vypovedať pravdivý príbeh objektu. To, čo začala na svojom monitore fasáda, to pokračuje za jej kulisami…
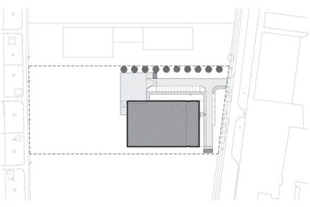
Situácia
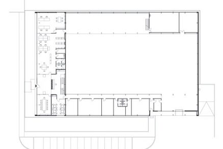
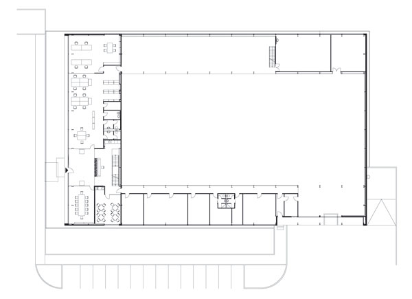
Pôdorys 1. NP
Administratívno-výrobná hala ETIS

Autor: Ing. arch. Andrej Alexy, ALEXY & ALEXY, s. r. o.
Spolupráca: Marek Kopp, Igor Lauko, Štefan Rafanides, Roman Rosina, Zuzana Švikruhová, Miroslav Jošt, Radka Švecová, Daniela Málusová
Investor: ETIS Slovakia, a. s.
Celkové náklady: 1,7 mil. eur (51,21 mil. Sk)
Začatie výstavby: 3/2008
Ukončenie výstavby: 10/2008
Generálny dodávateľ: INGSTEELSTAV, s. r. o.
Hala
Celková plocha pozemku: 11 000 m2
Zastavaná plocha: 2 104 m2
Úžitková plocha: 2 017 m2
Úžitková plocha: 875 m2
Obostavaný priestor: 15 612 m3
Počet parkovacích miest: 19 státí
(pet)
Foto: Paťo Safko
Článok bol uverejnený v časopise ASB.













