Park Anička v Košiciach
Uplynulý rok bol v Košiciach dokončený obytný súbor Park Anička, ktorý investor MM Invest Košice, s. r. o., umiestnil do mestskej časti Košice-Sever, v časti pôvodne nevyužívaného priemyselného areálu na okraji oddychovej zóny Košíc „Parku Anička“.
Obytný súbor Park Anička sa skladá z troch hlavných objektov bytových domov a jednej polyfunkčnej budovy. Objekty sú modernou architektúrou (autori: Palo Šimko & Jaro Král, adf s. r. o.) s ustupujúcimi podlažiami a s veľkými terasami tvoriacu strešnú krajinu. Tým je daný dôraz na kontakt obyvateľov s existujúcim kvalitným prírodným prostredím, t. j. maximálne prepojenie interiéru s exteriérom. Ustupovanie a tvorba terás je podporená architektúrou, kde priebežná línia – „had“ (kontaktná fasáda) prebiehajúca vždy nad nadpražím podlažia po podlahu nasledujúceho a plynulo obtekajúca podlažia je zvýraznená odlišnou farebnosťou a predsadením pred výplňové plochy medzi líniami v podlaží. Tam je obkladový materiál prevetrávanej fasády, s odlišnou farebnosťou plochy fasády s použitými veľkými francúzskymi oknami s preskleným zábradlím pred nimi.
Súčasťou fasády hlavného objektu sú aj hliníkové posuvné paravány Aliplast s výraznou praktickou, ale aj estetickou funkciou. Takto riešené fasády s danou štruktúrou a veľkými terasami vytvárajú príjemnú vzdušnú architektúru pre domy v prírodnej lokalite v ktorej sú umiestnené. Fasády, kde je kombinácia klasického kontaktného fasádneho systému (línie medzi nadpražím a podlahou) s prevetrávanou časťou výplňových plôch medzi líniami, sú základným estetickým, ako aj stavebno-technickým riešením budov. Tvoria nielen vizuálnu stránku objektov, ale aj základnú stavebno-technickú časť obalových konštrukcií budov spĺňajúcich fyzikálne, tepelnotechnické a akustické parametre.
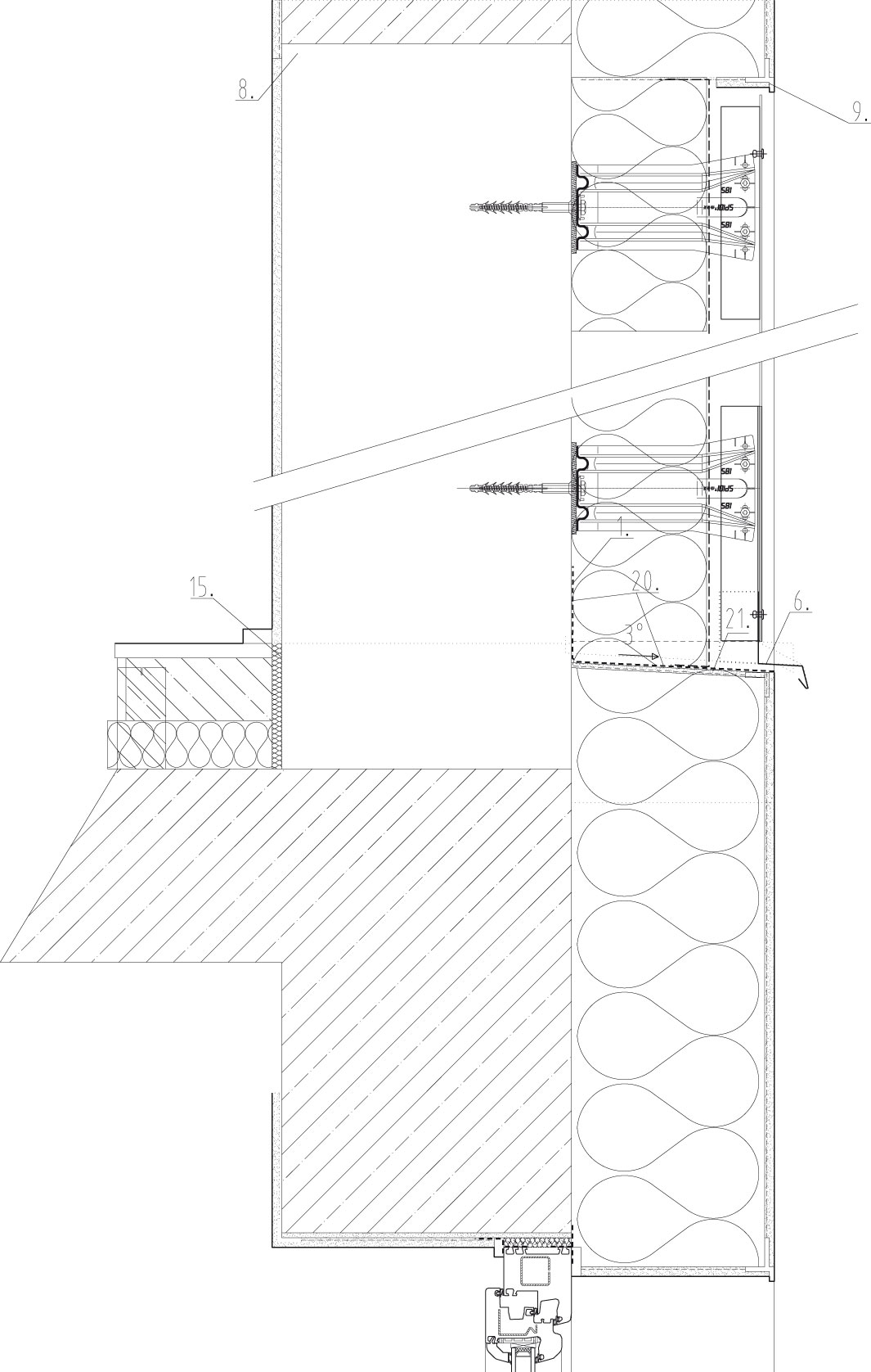
Detail prevetrávanej a kontaktnej fasády, rez parapetom
Rez pri podlahe
Legenda: 1. Okenný rám, 1b. Tepelnoizolačný podstavec 2. Okenné krídlo 3. Kotvenie okna 4. PU pena 5. Vnútorný parapet 6. Vonkajší parapet 7. Syst. okenný a dilatačný profil 8. Rohová lišta 9. Nadokenná lišta s odkvapovým nosom 10. Trvalo pružný tmel – silikón 11. Tepelnoizolačný prah 12. Prahová hlin. lišta rámu dverí 13. Dverné krídlo 14. Tepelná izolácia 15. Dilatácia 16. Separačná vrstva 17. Vyspravené ostenie 18. Paronepriepustná izolačná lepiaca páska – interiér 19. Paropriepustná izolačná lepiaca páska – exteriér 20. Lepidlo so sieťkou fasádneho kontaktného zatepl. systému 21. Pomocná stierková hydroizolácia
Text: Ľudovít Petránsky
ZDROJ: adf
Článok bol uverejnený v časopise ASB.
















