Modernizácia obvodovej steny so špecifickou geometriou
Zvyšovanie tepelnotechnickej kvantifikácie (teda zatepľovanie) obvodových stien s vertikálnym výrazovým členením pilastrami predstavuje špecifický problém. Tento problém sa zvýrazňuje, ak pilastre staticky spolupôsobia a sú súčasťou vertikálneho systému nosného skeletu budovy.
Problém sa rovnako zvýrazňuje, ak hlavné stĺpy podporného systému a vertikálne pilastre nie sú v jednej rovine. Vertikálne pilastre sú zväčša vysunuté z tejto roviny smerom do exteriéru (obr. 1 a 2).Existujúci stav
Budovy tejto koncepcie s obvodovými stenami situovanými geometricky medzi vertikálnymi pilastrami alebo medzi vertikálnymi pilastrami a hlavnými nosnými stĺpmi podporného systému skeletu (obr. 2) vykazujú z hľadiska súčasných požiadaviek na obalové konštrukcie budov defekty v oblasti detailov (styk vertikálnych pilastrov a obvodovej steny), prvkov (okná a netransparentné časti obvodovej steny) a sústavy obvodovej steny ako celku (veľmi výrazné viacrozmerné tepelné toky – tepelné mosty).
Obr. 2 Pôdorysná schéma obvodovej steny s vertikálnym výrazovým členením pilastrami
A – pilastre a hlavný vertikálny nosný systém sú v rôznej úrovni, B – pilastre a hlavný vertikálny nosný systém sú v rovnakej úrovni
1 – hlavný nosný stĺp skeletu, 2 – vertikálny pilaster, 3 – obvodová stena, 4 – transparentná konštrukcia, TM – tepelný most, 2D-3D – viacrozmerné tepelné toky
Obvodové steny tejto koncepcie s výplňovými konštrukciami okien s nízkou tepelnotechnickou kvantifikáciou, s vysokou vzduchovou priepustnosťou a vysokou ročnou energetickou potrebou nemusia vykazovať problémy hygienického charakteru (kondenzácia vodnej pary na vnútorných povrchoch, vznik plesní a podobne). Ak sa však ich modernizácia nezrealizuje z hľadiska komplexných kritérií (ale napríklad len výmenou okien), môže sa narušiť súčasný rovnovážny stav hmoty a energie, a tým vyvolať nežiaduce problémy hygienického charakteru v modernizovanej – rekonštruovanej obvodovej stene.
Bežné variantné riešenia
Ak je v rámci obnovy nevyhnutné zachovať pôvodný geometrický výraz (pohľadové šírky stĺpov a pilastrov) na základe požiadavky autora projektu, pamiatkovej ochrany a podobne, možno sa v súčasnosti stretnúť s rozličnými variantmi riešenia naznačeného problému, uvedenými nižšie.
Variant V1
- exteriérové plochy nosných stĺpov, prievlakov a pilastrov či kordónových ríms sa ošetria špeciálnym náterom (Thermo Shield Exterieur) (obr. 3), ktorý sa zakladá na funkcii termokeramickej membrány. Treba zohľadniť, že tento špeciálny náter:
- prispieva k výrazovému zhodnoteniu fasády (farebná stálosť) a k dlhodobej ochrane stavebnej konštrukcie proti poveternostným vplyvom (dážď a sneh). Náterom sa uzatvára a redukuje tvorba trhlín v podklade, čím sa buduje účinná ochrana proti penetrácii dažďovej vody, tvorbe nežiaducich produktov (rias, machov, húb, plesní) a proti ultrafialovému žiareniu,
- nepatrne prispieva k energetickým úsporám budovy, a to pozitívnym vplyvom na ročný vlhkostný režim obvodovej steny (eliminácia externej vlhkosti z dažďa) paropriepustnými vlastnosťami predmetného náteru (s nízkou hodnotou difúzneho odporu) a reflexnými vlastnosťami (zníženie sálavej zložky tepelného toku obvodovou stenou v letnom období),
- rozhodne nerieši defekty obvodovej steny v oblasti tepelných mostov z viacrozmerných tepelných tokov prakticky vo všetkých detailoch stykov obvodovej steny (obr. 4);
- realizuje sa úplná výmena pôvodných okien za okná s vyššou fyzikálno-technickou kvantifikáciou v súlade s STN 73 0540: 2002 (Tepelnotechnické vlastnosti stavebných konštrukcií a budov. Tepelná ochrana budov). Touto výmenou sa zníži tepelný tok oknom (U ≈ 1,1 W/(m2 . K)), no hlavne neregulované vetranie infiltráciou vzduchu, čo môže vyvolať problémy hygienickej podstaty na tepelne nechránených plochách stĺpov, prievlakov, pilastrov či kordónových ríms (obr. 3 a 4).
Obr. 3 Pôdorysná schéma obvodovej steny s vertikálnym výrazovým členením pilastrami
Modernizácia – variant V1
A – pilastre a hlavný vertikálny nosný systém sú v rôznej úrovni, B – pilastre a hlavný vertikálny nosný systém sú v rovnakej úrovni
1 – hlavný nosný stĺp skeletu, 2 – vertikálny pilaster, 3 – obvodová stena, 4 – transparentná konštrukcia, 5 – termokeramická membrána

- exteriérové plochy prvkov nosných stĺpov, prievlakov a pilastrov či kordónových ríms sa zateplia – obložia tenkou vrstvou (≈ 20 mm) vysokoúčinnej tepelnej izolácie (λ ≈ 0,035 (W/(m . K)) na plochách zvyšujúcich pohľadovú šírku fasádnych prvkov a hrubšou vrstvou (≈ 40 až 60 mm) na ostatných plochách (obr. 5). Treba konštatovať, že toto zateplenie:
- charakterizuje vysoká prácnosť procesu modernizácie a nie vždy je pre požiadavky architektúry exteriéru akceptabilné (spravidla nie),
- prispieva k tepelnotechnickej homogenizácii obvodovej steny a čiastočne rieši – znižuje defekty obvodovej steny v oblasti tepelných mostov,
- prispieva k energetickým úsporám budovy, no výrazné členenie fasády je naďalej podmieňujúcim faktorom nežiaducich viacdimenzionálnych tepelných tokov;
- realizuje sa úplná výmena existujúcich okien za okná s vyššou fyzikálno-technickou kvantifikáciou. V tomto variante predstavuje výmena okien menšie riziko vyvolania problémov hygienickej podstaty ako vo variante V1.
Obr. 5 Pôdorysná schéma obvodovej steny s vertikálnym výrazovým členením pilastrami
Modernizácia – variant V2
A – pilastre a hlavný vertikálny nosný systém sú v rôznej úrovni, B – pilastre a hlavný vertikálny nosný systém sú v rovnakej úrovni
1 – hlavný nosný stĺp skeletu, 2 – vertikálny pilaster, 3 – obvodová stena, 4 – transparentná konštrukcia, 6 – kontaktný tepelnoizolačný systém
Obr. 6 Pôdorysná schéma obvodovej steny s vertikálnym výrazovým členením pilastrami
Modernizácia – variant V3
A – pilastre a hlavný vertikálny nosný systém sú v rôznej úrovni, B – pilastre a hlavný vertikálny nosný systém sú v rovnakej úrovni
1 – hlavný nosný stĺp skeletu, 2 – vertikálny pilaster, 7 – obvodová stena v novej polohe, 8 – transparentná konštrukcia v rovinnej súvislosti s tepelnou izoláciou novej obvodovej steny, 9 – kontaktný tepelnoizolačný systém nosných stĺpov
Nové koncepčné poňatie riešenia problému
Obligátne riešenia problému sa zakladajú na akceptovaní obvodovej steny v pôvodnej, veľmi nevhodnej polohe (variant V1 a variant V2). Pri modernizácii s úplnou výmenou okien táto akceptácia vychádza len zo zachovanie parapetnej časti obvodovej steny, spravidla s nevyhovujúcou tepelnotechnickou kvantifikáciou.
Variant V3
- nové koncepčné poňatie modernizácie obvodových stien tohto typu posúva obvodovú stenu:
- v prípade riešenia A na vnútornú úroveň pilastrov, ak pilastre a hlavný vertikálny nosný systém sú v rôznej úrovni (obr. 6A),
- v prípade riešenia B na vnútornú úroveň pilastrov a stĺpov, ak pilastre a hlavný vertikálny nosný systém sú v rovnakej úrovni (obr. 6B).
Novým koncepčným poňatím modernizácie obvodových stien tohto typu sa:
- tepelnotechnicky homogenizuje modernizovaná obvodová stena. Je charakterizovaná prakticky jednorozmerným tepelným tokom s výnimkou okolo nosných stĺpov v alternatíve A (obr. 6A), a tak sa odstraňujú existujúce tepelné mosty;
- vytvára reálny predpoklad na to, aby modernizovaná obvodová stena v plnom rozsahu vyhovovala požiadavkám STN 73 0540.
![]() |
![]() |
| Obr. 7 Pôdorys modernizovanej obvodovej steny, variant V3-A1 | Obr. 8 Modernizovaná obvodová stena, variant V3-A2 |
Príklad modernizácie – obnovy obvodovej steny s vertikálnym výrazovým členením pilastrami (budovy Stavebnej fakulty STU v Bratislave – blok A) podľa obr. 6A dokumentujú varianty:
- variant V3-A1 s ponechaním pôvodných parapetných častí a prídavným tepelným izolantom situovaným zo strany interiéru, pričom v jednej rovine s ním sú osadené nové výplňové konštrukcie okien (obr. 7)
- variant V3-A2 s totálnou výmenou obvodovej steny (vrátane parapetnej časti) realizovanej z kompletizovaných dielcov, osadených na úroveň vnútorných povrchov vertikálnych pilastrov (obr. 8).
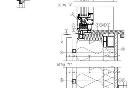
Z variantu V3-A2 sa vychádzalo aj pri jednostupňovom projekte obnovy fasády budovy Stavebnej fakulty STU v Bratislave – blok A (obr. 12). Z hľadiska optimalizácie investičných nákladov sa parapetná časť realizovala z kompletizovaného panela Trimotherm FTV 150 SS doplneného vonkajšou plášťovou hmotou vo forme odvetraného trapézového plechu a vnútornou plášťovou hmotou z vysokoúčinného tepelného izolantu a sadrokartónu(obr. 9 a 10). Ako výplň okenných otvorov sa použili okná na báze zliatiny hliníka s prerušeným tepelným mostom systému Schüco série AWS 75 BS.HI (koeficient prechodu tepla rámovými vlysmi Uf ≤ 1,8 (W/(m2 . K)) s trojnásobným nízkoemisným skleným systémom z uzavretej izolačnej jednotky – izolačného trojskla (súčiniteľ prechodu tepla Ug ≤ 0,7 W/(m2 . K), celková priepustnosť slnečnej energie g ≤ 48 %, svetelná priepustnosť TL ≥ 68 %, index vzduchovej nepriezvučnosti Rw ≥ 38 dB, teplé dištančné rámčeky) (obr. 10 a 11). Všetky detaily tohto výsledného variantu sa podrobili viacrozmernej tepelnotechnickej analýze s výsledkami, ktoré vyhovujú požiadavkám STN 73 0540 (obr. 13).
![]() |
![]() |
| Obr. 9 Modernizovaná obvodová stena Stavebnej fakulty STU v Bratislave (blok A) – projektové riešenie | Obr. 10 Detailné riešenie modernizovanej fasády Stavebnej fakulty STU v Bratislave (blok A) – vertikálny rez fasádou |

1 – okenný systém s integrovaným krídlom na báze zliatiny hliníka s prerušeným tepelným mostom (ref. profil Schüco AWS 75 BS.HI), 2 – vonkajší okenný AL parapet, 3 – paropriepustná fólia, 4 – tepelná izolácia, 5 – paronepriepustná fólia, 6 – vnútorná parapetná doska, 7 – oceľový rám z profilov Jäkl 40 × 60 mm, 11 – kotviaca rozperka, 13 – kotviaca rozperka, 14 – tenkovrstvová silikátová omietka, 15 – polyuretánová pena, 16 – kotvenie okenného rámu, 17 – sadrokartón, 18 – kotvenie okenného rámu L-uholníkmi, 19 – krycí AL plech, 20 – nadokenná lišta s odkvapovým nosom, 21 – vonkajší ukončujúci omietkový profil, 22 – podkladový osadzovací h-PVC profil, 23 – prerušenie tepelného mosta
Záver
Modernizácia obvodovej steny so špecifickou geometriou s vertikálnym výrazovým členením pilastrami pri akceptovaní geometrických požiadaviek na architektúru exteriéru a súčasných normových požiadaviek na jej fyzikálnu kvantifikáciu je náročným problémom, ktorý si vyžaduje špecifický koncepčný a projektový prístup, ako aj úzku spoluprácu architekta a inžinierov so zameraním na architektúru z oblasti novej fasádnej techniky budov.
Obr. 12 Budova Stavebnej fakulty Slovenskej technickej univerzity v Bratislave (blok A)
Tento článok podporila Agentúra na podporu výskumu a vývoja na základe zmluvy č. APVV-0624-10.
TEXT: prof. Ing. Milan Bielek, DrSc., doc. Ing. Boris Bielek, PhD.
OBRÁZKY a FOTO: archív autorov
Prof. Ing. Milan Bielek, DrSc., pôsobí na Katedre konštrukcií pozemných stavieb Stavebnej fakulty STU v Bratislave.
Doc. Ing. Boris Bielek, PhD., pôsobí na Katedre konštrukcií pozemných stavieb Stavebnej fakulty STU v Bratislave a zároveň je prodekanom pre rozvoj fakulty.
Recenzovala prof. Ing. Zuzana Sternová, PhD., riaditeľka TSÚS, n. o.
Článok bol uverejnený v časopise Stavebné materiály.





















