Modernizácia fasád existujúcich budov
Spoločenské, hospodárske a ekologické zmeny sa odzrkadľujú aj v architektúre. V dôsledku úbytku počtu obyvateľov a urbanizácie sa podiel novostavieb v posledných rokoch výrazne znížil. Naproti tomu sa v neobvyklej miere zvýšil podiel modernizácií a energetických sanácií – v súčasnosti dosahuje až dve tretiny všetkých prác v stavebníctve.
Väčšinu existujúcich budov tvoria staršie budovy so zlou energetickou bilanciou. Aby sa znížila ich primárna spotreba energie, je čoraz naliehavejšia ich energetická a technická modernizácia. Okrem optimalizácie spotreby energie je pri týchto starších budovách dôležitým cieľom aj zabezpečenie užívateľského komfortu. Na stavebnom trhu sú už dostupné riešenia, ktoré umožňujú do fasády integrovať napríklad vetracie systémy so spätným získavaním tepla, ochranu proti slnečnému žiareniu a prvky fotovoltiky. Takto modernizovaná budova môže výrazne prispieť k dosiahnutiu medzinárodného cieľa v oblasti klimatických zmien, ktorým je udržať mieru globálneho otepľovania pod úrovňou 2 °C.V Nemecku, ale aj v ostatných európskych krajinách sa nachádza obrovské množstvo zastaraných budov. Iba 10 % z celkového objemu budov bolo postavených po roku 1990 a po energetickej a stavebnej stránke zodpovedá aktuálnym štandardom. Najväčší, asi 50-percentný podiel medzi existujúcimi budovami tvoria budovy, ktoré boli postavené v rokoch1940 až 1980. Aj tieto stavby však bude treba upraviť tak, aby zodpovedali budúcim energetickým cieľom, ktoré boli zhrnuté v smernici o energetických úsporách EnEV. V roku 2008 boli asi dve tretiny všetkých projektov zamerané na modernizáciu, respektíve rekonštrukciu. Ťažiskom bola často rekonštrukcia z hľadiska energetickej náročnosti. Okrem výrazného znižovania nákladov na energiu a údržbu budov sú nemenej dôležitým dôvodom na rekonštrukciu aj modernizácia vzhľadu a väčšie zameranie na užívateľský komfort.
Pre každý projekt rekonštrukcie, rovnako ako pre každú novostavbu, treba nájsť individuálne riešenie – nielen fasády, ale aj energetického konceptu. Pri plánovaní hrá rozhodujúcu úlohu zohľadnenie existujúceho stavu. Celosklené plochy boli v 70. a 80. rokoch minulého storočia skôr zriedkavosťou, mnohé projekty z tohto obdobia majú industriálne štruktúry, napríklad vymývaný betón alebo sendvičové panely, veľká časť fasád je riešená klasickým rastrom pásových okien alebo formou otvorov do fasády. Výzva pre projektantov a architektov tak spočíva v zachovaní charakteristických štruktúr a poznávacích znakov týchto budov a v dosiahnutí jednotného architektonického a energetického štandardu na súčasnej úrovni opatrnými a premyslenými zásahmi.

Významnou požiadavkou zo strany investorov je možnosť robiť rekonštrukciu aj počas prevádzky budovy a to tak, aby nebolo nutné rušiť prenájom. V súčasnosti sa na stavebnom trhu už takéto systémy nachádzajú. Ide o fasádny systém určený na rekonštrukciu (obr. 1). Rekonštrukciu počas prevádzky budovy umožňuje jeho montáž z vonkajšej strany. Vnútorné priestory sa tak dajú využívať aj počas stavebných prác bez obmedzenia. Systém sa montuje vo dvoch bodoch na existujúcu fasádu pomocou tvarovaných profilov. Nie je nutné realizovať nosné podparapetné obklady. Ide o modulové riešenie, ktorého výhodou je možnosť kontroly časového harmonogramu a nákladov. Systém je charakteristický redukciou vŕtaných spojov, a teda znížením úrovne produkovaného hluku.
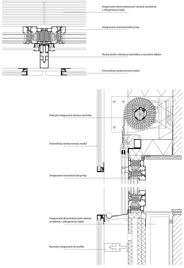
Do fasádneho systému sa môžu integrovať rôzne doplňujúce stavebné prvky, napríklad prvky charakteristické pre pasívne domy (špeciálne hliníkové okenné systémy s trojitým zasklením), decentralizované vetranie, tieniaca technika, systém bezkontaktnej kontroly či okenné a fasádne moduly s tenkovrstvovou solárnou technológiou. Vďaka uvedeným prvkom možno energiu nie len ušetriť, ale aj produkovať.
Fasáda je použiteľná na rôzne stavebné štruktúry a triedy budov s možnosťou interpretácie pôvodného stavu až po vytvorenie nového moderného vzhľadu. Systémová konštrukcia prekrýva okrem okenných otvorov (teplé oblasti) aj nepriehľadné murivo (studené oblasti). Studené oblasti sa dajú riešiť rôznymi spôsobmi, napríklad plechovými kazetami, fotovoltickými okennými a fasádnymi solárnymi modulmi alebo zasklenými prvkami.
–>–>
Technické diely
Do fasády na renováciu možno integrovať hliníkové okenné systémy, decentralizované vetranie s rekuperáciou tepla, chladenie, vykurovanie, skrytú tieniacu techniku alebo bežné žalúzie. Všetky rozvody sú ukryté vo fasáde a nie je nutné realizovať interiérové úpravy. Jednotlivé elektronické prvky obvodového plášťa možno vzájomne prepojiť.
Energetické zisky
Fasádou sa vytvára druhá vrstva obvodového plášťa, čím sa dosahuje energetické zhodnotenie budovy až na úrovni pasívnych budov. Vkladaná vrstva tepelnej izolácie a zabudovanie decentralizovaného vetracieho zariadenia prispievajú k redukcii spotreby energie na vykurovanie, chladenie a vetranie. Energetickú bilanciu budovy možno zlepšiť zabudovaním tenkovrstvových fotovoltických prvkov.
![]() |
![]() |
| Obr. 2 Pohľad na pôvodnú fasádu | Obr. 3 Napojenie na objekt montážou tvarovaného profilu vrátane kotviacej konzoly |
![]() |
![]() |
| Obr. 4 Montáž okien na profil | Obr. 5 Izolácia a zateplenie objektu |
![]() |
![]() |
| Obr. 6 Montáž tieniacej techniky | Obr. 7 Montáž výplňových prvkov v studenej oblasti |
![]() |
![]() |
| Obr. 8 Demontáž okien, zaizolovanie a napojenie na objekt z interiéru | Obr. 9 Pohľad na novú fasádu |
Priebeh montáže
Montáž fasády na renováciu prebieha v niekoľkých krokoch:
- montáž tvarovaného profilu vrátane kotviacej konzoly na pôvodnú fasádu (obr. 2, 3),
- montáž okenných elementov na tvarovaný profil (obr. 4),
- izolovanie a zateplenie obvodového plášťa (obr. 5),
- montáž tieniacej techniky (obr. 6),
- montáž výplňových prvkov v studenej oblasti fasády (obr. 7),
- demontáž pôvodných okien a zaizolovania nových okenných otvorov z interiérovej strany (obr. 8, 9).
TEXT: spracované z podkladov firmy Schüco
FOTO: Schüco
Článok bol uverejnený v časopise Stavebné materiály.




















