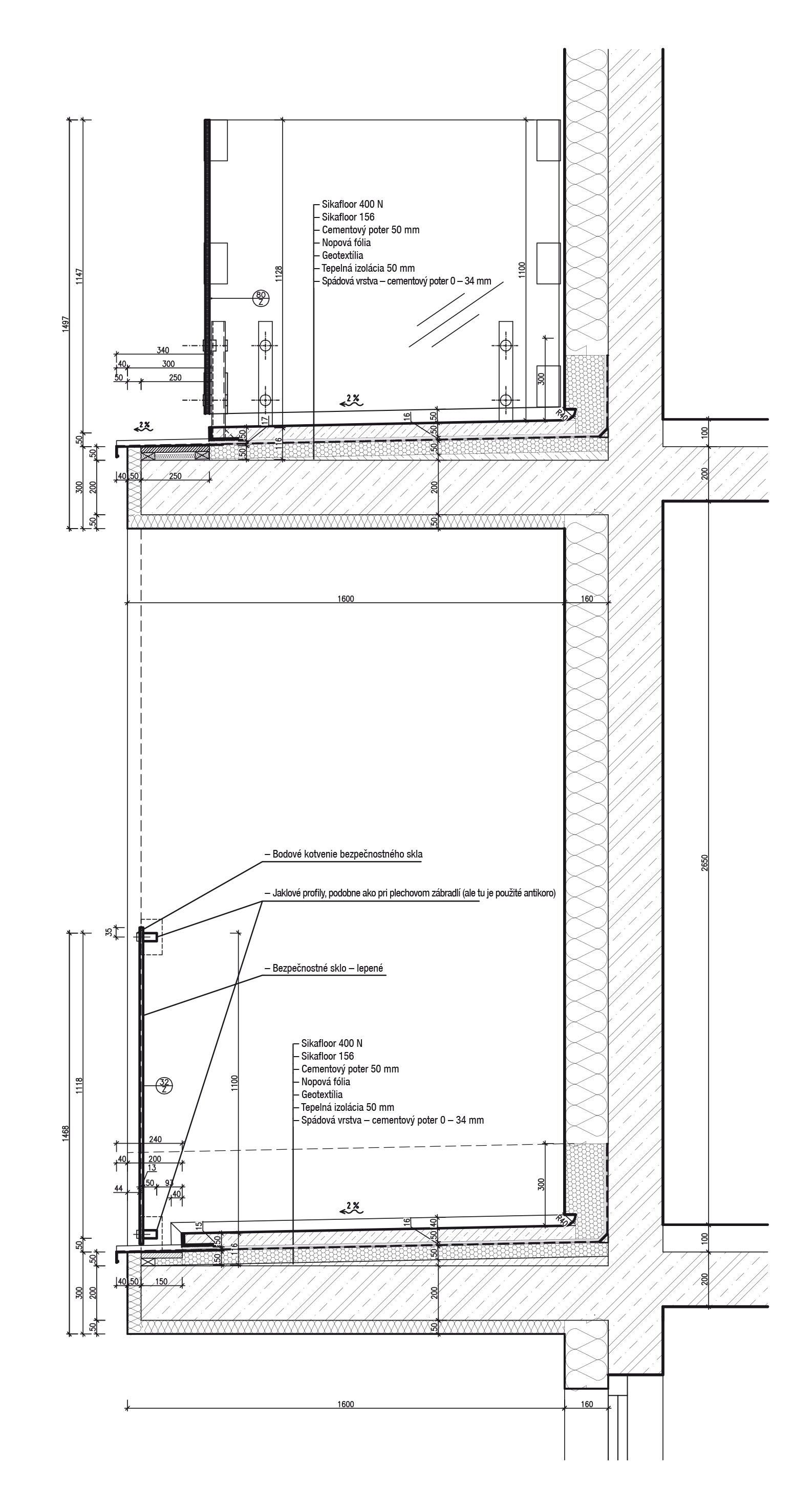
Konštrukčný detail lodžie a balkóna
Už z diaľky vidieť, že Nový háj prináša čosi, čo sa v prostredí neďalekých pravidelných panelákov a hranatých internátov vymyká očakávanej produkcii. Vďaka netradičnému konceptu návrhu sa dalo vyhovieť individuálnym požiadavkám klientov.
foto: Dano Veselský
dokumentácia: Architekti Šebo Lichý






