Komplex kancelárskych budov v Düsseldorfe
Výrazný dizajn a energetická efektivita sú charakteristickými znakmi tejto nedávno dokončenej stavby. Začiatkom tohto roka bola v Düsseldorfe dokončená stavba komplexu kancelárskych budov Bonneshof Office Center, ktorý rozširuje doterajší objekt z roku 2007. Členité objekty s geometrickou fasádou prepája zasklená hala. Nová päťposchodová budova s podzemným parkoviskom sa vyznačuje prepracovaným dizajnom aj vysokou energetickou efektivitou.
V mestskej štvrti Golzheim sa aj napriek centrálnej pozícii nachádza celý rad zelených plôch. Oblasť ponúka vysokokvalitné rezidenčné nehnuteľnosti a kancelárie. Novostavba Bonneshof Office Center (B. O. C.) vo vlastníctve Nordrheinische Ärzteversorgung má názov odvodený od ulice Am Bonneshof a nadväzuje na objekt z roku 2007 Tersteegen Office Center (T. O. C.). Na oboch objektoch sa podieľali architekti z RKW Architekten + Städtebau a stavebná firma Quantum Immobilien AG.
Ďalšie kancelárske objekty sa nachádzajú predovšetkým na južnej a západnej strane, zatiaľ čo rezidenčná výstavba je orientovaná severovýchodne. Z pohľadu urbanistického rozvoja do seba oba objekty zapadajú a tvoria jeden celok. Rozvetvená štruktúra budov ide ruka v ruke s heterogénnym prostredím. Vďaka tejto štruktúre budova získava rozsiahle fasádne plochy, ktoré sprostredkúvajú kontakt s okolím, čo bolo aj zámerom investora. Vnútorné nádvorie a výklenky so zeleňou zabezpečujú užívateľom objektu príjemné zázemie.
Centrálne zasklenie
Významný uzol predstavuje dvojpodlažná zasklená hala, ktorá spája nový objekt s pôvodným a predstavuje srdce celého komplexu, zázemie a centrálny vstup do kancelárskych prstencov. Nachádzajú sa tu recepcia, bistro zóna a konferenčné miestnosti s výhľadom do parku. Táto multifunkčná tepna sprostredkúva vstup do kancelárskych priestorov všetkých horných podlaží. V prstencových objektoch, ktoré priliehajú k centrálnej hale, sa nachádzajú skupinky kancelárií s tichým výhľadom do dvorov so zeleňou. Fasáda s vysokým stupňom transparentnosti zabezpečuje ideálny zdroj prirodzeného svetla, ktoré sa vďaka skleneným deliacim priečkam dostáva hlboko do budovy. Atmosféru kancelárií umocňujú povrchy v reflexnej čiernej, bielej a striebrosivej. V prístupových priestoroch kontrastuje žiarivá oranžová, ktorá dopĺňa prevažne modré tóny susediaceho objektu.
Geometrické opláštenie
Fasády oboch objektov charakterizujú geometrické tvary. Čiernobiely obdĺžnikový vzor na B. O. C. kontrastuje s metalickou čierno-modrou fasádou objektu T. O. C. s nápaditými kruhovými prvkami. Fasádny koncept nového objektu pozostáva z dvoch typov fasád v rozličnom vyhotovení. Hlavná časť fasády je založená na variáciách dvojitej fasády. Fotovoltické a tieniace panely vonkajšieho plášťa boli inštalované v závislosti od miery slnečného žiarenia a charakteru miestností. Druhý typ fasády sa týka centrálnej spojovacej haly a odsadeného vrchného podlažia. Na celozasklenú dvojpodlažnú konštrukciu vstupnej haly sa použil stĺpovo-priečkový fasádny systém, opláštenie pri vrchnom podlaží dopĺňajú nepriehľadné panely.
Elementová konštrukcia fasády
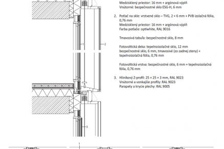
Zaujímavú reliéfnu štruktúru získala fasáda vďaka striedaniu sklenených okenných prvkov s predsadenými fotovoltickými panelmi v čiernej farbe a tieniacimi panelmi s bielou potlačou. Okná majú elegantný vzhľad bez priznaných vonkajších krídel (tzv. skryté krídlo). Súčiniteľ prechodu tepla U dosahuje pri fasáde ako celku hodnotu 1,3 W/(m2 . K), pri sklenených častiach potom 1,0 W/(m2 . K). Významný podiel prefabrikácie fasádnych dielcov pomohol k rýchlej kompletizácii na mieste, a to vrátane inštalácie fotovoltických modulov.
Základný fasádny element (s rozmermi 3,5 × 2,7 m) sa od podlahy k stropu skladá z dvoch okenných jednotiek s dovnútra otváranými krídlami s obmedzovačom otvorenia, z vonkajšej strany s predsadeným tieniacim panelom proti slnku alebo fotovoltickým modulom. Dodatočné zatienenie objektu zabezpečujú vonkajšie žalúzie. Na objekte sa použilo vrstvené bezpečnostné sklo. Vonkajšia strana tieniacich panelov má podľa zadania architekta digitálnu potlač s bielym vzorom. Druhý typ panelov vychádza zo štruktúry fotovoltických článkov a dominantného tmavosivého skla. Aj napriek tomu, že z vonkajšej strany pôsobia fotovoltické panely ako nepriehľadné, denné svetlo sa do miestnosti dostáva nepriamo, akoby cez slnečné okuliare.
Energeticky aktívny prístup
Energetický koncept budovy B. O. C. je založený na pasívnych a aktívnych komponentoch. Okrem pasívnych opatrení v podobe cielenej regulácie denného svetla a tepla zo slnečného žiarenia cez vonkajšie žalúzie a tieniace panely hrá pri udržiavaní optimálnej teploty v budove významnú úlohu aj energeticky efektívny nízkonákladový rezervoár na chladenie a ohrievanie. Použité tu boli aj ďalšie environmentálne systémy a systémy šetrné k zdrojom. Tepelná energia sa v zásade dodáva prostredníctvom kogeneračnej CHP jednotky s kombinovanou výrobou tepla a elektriny. Ochladzovanie budovy v letných mesiacoch prebieha cez absorpčné chladiace zariadenie s hybridnou chladiacou vežou.
Teplota v kancelárskych priestoroch sa reguluje cez podlahový vykurovací pás umiestnený pozdĺžne okolo stien. Nechýba vysokoúčinný ventilačný systém s rekuperáciou tepla. Dodatočné požiadavky na vykurovanie či chladenie sa riešia prostredníctvom energetického centra vedľajšieho objektu T. O. C. Do plášťa B. O. C. sa nainštalovalo spolu 114 monokryštalických fotovoltických modulov s plochou asi 500 m2. S výkonom 63 kWp dopĺňa fasáda fotovoltickú elektráreň na streche objektu s výkonom približne 108 kWp. Administratívna budova produkuje v súčasnosti významný podiel elektriny spotrebovávanej na mieste. Celková energetická koncepcia vychádza z projektu spoločnosti EGC, ktorá komplexne zastrešuje vykurovanie a klimatizáciu v oboch objektoch a prevádzkuje fotovoltické systémy.
Bonneshof Office Center
Miesto: Düsseldorf, Nemecko
Investor: Nordrheinische Ärzteversorgung
Architekt: RKW Rhode Kellermann Wawrowski Architektur + Städtebau
Hlavný dodávateľ, projektový manažment: Quantum Immobilien
Technické zariadenia budovy: ITG Hans Pitz & Co.
Stavebná technológia: YIT Germany
Energetický koncept: EGC Energie- und Gebäudetechnik Control & Co.
Krajinárska architektúra: Ziegler Grünkonzepte
Fasáda – konzultácie: IFF Ingenieurgesellschaft für Fenster- und Fassadentechnik
Fasáda – dizajn a výroba: Haskamp GmbH & Co. Metall- und Elementbau
Typ fasády: Schüco AWS 75 BS.HI ako konštrukcia s rôznymi systémovými špecifikáciami
Fotovoltika: do fasády integrované fotovoltické panely Schüco (BIPV), monokryštalické, čierne
Text: Ing. Petr Herynek
Autor pôsobí na marketingovom oddelení spoločnosti Schüco CZ.
Foto: www.rehfeld-fotografie.de
Článok bol uverejnený v časopise TZB HAUSTECHNIK.








