Elementárna fasáda na budove Lakeside parku
Administratívny objekt Lakeside Park pri Kuchajde v Bratislave, ktorý sa dokončil v tomto roku, je budovou, ktorá sa môže popýšiť zaujímavou fasádou. Ide totiž o elementárnu fasádu. Jej montáž výrazne šetrí čas a nevyžaduje lešenie. Okrem toho sa pri tejto budove vyvíjali niektoré detaily fasády tak, aby architekti a projektanti dosiahli ľahký a elegantný vzhľad budovy. Šaty robia človeka, fasáda zas budovu – a fasáda na Lakeside Parku je šitá budove na mieru. Pozrime sa, ako.
Elementárna fasáda šetrí čas
Budova Lakeside Parku je konštrukčne železobetónovým skeletom s centrálne umiestneným zvislým nosným komunikačným jadrom. Vodorovné nosné konštrukcie tvoria stropné bezprievlakové dosky s hlavicami. Na budove sa použila elementárna fasáda, jeden z fasádnych systémov spoločnosti Wicona.
„Elementárna fasáda sa odlišuje od bežnej stĺpikovo-priečnikovej fasády v tom, že sa jednotlivé segmenty vyrábajú v dielenskej kvalite už v dielni a potom sa hotové – zasklené a vybavené všetkými tesniacimi prvkami a pripravenými kotvami – prevážajú na stavbu. Tam sú priamo v stavebných konštrukciách pripravené tzv. protikusy stavebných kotiev,“ vysvetľuje Július Čajda, technický konzultant spoločnosti Hydro Building Systems, ktorá dodáva hliníkový konštrukčný systém Wicona. Montáž fasády realizovala česká spoločnosť Mechanika Prostějov. Na budove sa použilo osem druhov novovyvinutých profilov, napríklad rohový a rámový a priečnikový profil či zasklievacia lišta.
Montážne firmy majú na montáž elementárnych fasád zvyčajne na mieru vyrobené dopravníky, ktorými sa jednotlivé elementy privážajú až na miesto inštalácie. Montážny dopravník sa skladá z horného žeriavu, ktorý je zvyčajne inštalovaný na dráhe (koľajniciach) umožňujúcej pohyb po obvode budovy. V dolnej časti sú vodiace koľajnice, ktore zaručujú presné vedenie elementov na miesto montáže.
„Výhodou elementárnych fasád je najmä to, že jej montáž je výrazne rýchlejšia, než sa dá dosiahnuť pri bežnej stĺpikovo-priečnikovej fasáde, a zároveň aj kvalita spracovania jednotlivých detailov fasády je omnoho vyššia – vďaka tomu, že sa väčšina prác na vyhotovení fasádnych dielov robí priamo v dielni. Do elementárnych fasád sa môžu hneď pri výrobe inštalovať aj ďalšie prvky, ako sú napríklad prvky tienenia či iné podružné systémy, to však nebol prípad Lakeside Parku,“ pokračuje Július Čajda.
Bez lešenia
Keďže prenášanie jednotlivých segmentov fasády prebieha prostredníctvom spomínaných dopravníkov, montážnici ich môžu uchytávať z vnútornej strany budovy. Okolo budovy sa tak nemusí stavať lešenie a navyše je takáto montáž vhodnejšia aj z bezpečnostného hľadiska. Z vonkajšej strany fasády netreba pri montáži elementárnej fasády urobiť takmer žiadne úkony – len stiahnuť ochranné fólie a poumývať presklenia. Vo fasade sú na zvýšenie bezpečnosti pracovníkov pri čistení a údržbe fasády inštalované horolezecké úchyty.
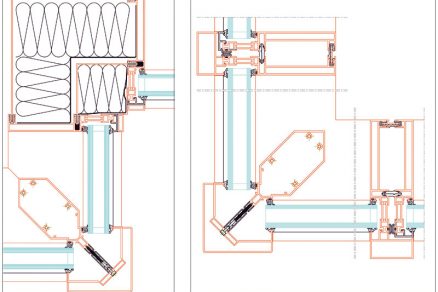
Riešenie rohových segmentov
Väčšina fasádnych prvkov je zo štandardného fasádneho systému, čo je však zaujímavé, pri budove Lakeside Park sa pre nárožia vyvíjali špeciálne vyvinuté objektové rohové profily. Klasická segmentová fasáda má zvyčajne pomerne mohutný rohový spoj, čomu chceli architekti na budove Lakeside Parku predísť. Nový vyvinutý rohový profil má skosenie pod 45-stupňovým uhlom a spojenie skiel zabezpečuje len tenká lišta, čím sa hrúbka rohového spojenia skiel zmenšila na menej než tretinu tej pôvodnej. Tieto objektové profily sa vyrábajú pre konkrétne projekty zvyčajne za účelom dosiahnutia požadovaného vzhľadu či tvaru fasády. Zvyčajne sa vyvíjajú v spolupráci s projektantom, ktorý schvaľuje či pripomienkuje navrhované riešenia fasády tak, aby dosiahol svoju predstavu o jej vzhľade.
Spodná časť fasády
Rýchlosť montáže a kvalita vyhotovenia sú veľkými devízami týchto segmentových fasád, treba však zároveň povedať, že elementárne fasády nie sú vždy dostatočne únosné. Preto je napríklad spodná časť fasády na prvých dvoch nadzemných podlažiach budovy Lakeside Parku zhotovená z klasickej stĺpikovo-priečnikovej fasády. Dolna fasada je umiestnená v časti parteru a jej časť je protipožiarna. Práve v spodnej časti sú trapézy, ktoré držia sklo, najviac namáhané. Kým výška bežného podlažia je 3 m, výška parteru je približne 5 m. Statická únosnosť profilov zodpovedá celej výške parteru. Aj keď je výška tejto fasády cez dve podlažia, fasáda sa musela vodorovne deliť aj s ohľadom na možnosti výroby sklených tabúľ. Pri tejto stĺpikovo-priečnikovej fasáde má projektant na výber viacero riešení s rôznymi hĺbkami profilov. Pri výbere sa zohľadňuje najmä veľkosť dielov a statické požiadavky, keďže väčšia hĺbka profilov sa negatívne prejavuje na vzhľade a napokon aj na výslednej cene fasády.
Použitý fasádny systém umožňuje bez zmeny pohľadovej šírky profilov doplniť fasádu o doplnkové prvky, ktoré konštrukciu obohatia o špecifické požiadavky – v tomto prípade zvýšili požiarnu odolnosť, dá sa však dosiahnuť ochrana proti prestreleniu, vlámaniu a pod.
![]() |
|
| Vodorovný rez vonkajším a vnútorným rohom Vodorovný rez vonkajším rohom | |
![]() |
|
| Vodorovný rez zvislým spojením elementov Zvislý rez vodorovným spojením elementov | |
| |
|
| Zvislý rez parapetnou časťou | Axonometria vodorovného spoja v uhle 90° |
Z podkladov spoločnosti Wicona spracovala Martina Jakušová








