Drevené fasády
Začiatkom 20. storočia sa začali do stavebnej praxe zavádzať zavesené fasády, ktorých konštrukcia je oddelená od nosných prvkov stien budov. Neskôr sa z tohto typu vyvinuli dvojité fasády s prúdením vzduchu v medzistojacej vzduchovej medzere. Ukázali sa ako výhodná alternatíva k existujúcim jednoplášťom. Výhodou dvojitých fasád je ich schopnosť spolupodieľať sa na vetraní a ohreve vnútorného vzduchu budovy, ako aj celého priestoru.
Fasádu všeobecne, nielen drevenú, možno charakterizovať ako vonkajšiu stenu budovy, ako jej obvodový plášť, ktorý predstavuje v štruktúre architektúry stavby dôležitý výrazový estetický prvok. Zároveň ide o funkčný obal, ktorý slúži ako bariéra na ochranu vnútorného prostredia pred nepriaznivými vplyvmi vonkajšieho prostredia. Fasáda je zvyčajne perforovaná otvormi, a to okennými, dvernými, prípadne vetracími.Jednou z najdôležitejších zásad pri návrhu fasád a výbere vhodného materiálového riešenia je správne vnímať relevantné silné stránky daného materiálu. Zo spôsobu výroby jednotlivých materiálov, ich pôvodu, spôsobu zabudovania do budovy vyplývajú určité rozmerové a technologické obmedzenia. Ak má daný materiál nevýhodné vlastnosti v jednom smere, zvyčajne sa táto nepriaznivá situácia kompenzuje priaznivými vlastnosťami v inej oblasti. Pri realizácii netreba podceňovať hodnotu dobrej remeselnej práce – jasných riešení jednotlivých spojov konštrukcií.
Z hľadiska funkčných nárokov musí fasáda plniť tieto požiadavky:
- tepelná ochrana budovy – v zimnom období proti tepelným stratám, v letnom období proti nežiaducim tepelným ziskom;
 - ochrana proti hluku, prípadne vibráciám;
 - vodotesnosť konštrukcie;
 - mechanická odolnosť;
 - požiarna bezpečnosť a bezpečnosť počas užívania;
 - osvetlenie a insolácia, najmä pri transparentných fasádach, a samozrejme zabezpečenie prirodzeného vetrania.
 
Funkčné vlastnosti fasády primárne závisia od samotného materiálového riešenia fasády, no nezanedbateľnú úlohu zohráva aj podklad fasády, to znamená stena a spôsob pripojenia konštrukcie fasády k nej. Mnohokrát je priznaný nosný systém budovy, ktorý vytvára aj fasádu. S týmto riešením sa možno stretnúť pri drevostavbách. V prípade drevených zrubových stavieb je funkcia nosného systému kumulovaná s priznaným horizontálnym rastrom nosných drevených trámov na exteriérovej strane budovy.
Fasády možno deliť podľa viacerých dôležitých kritérií:
- materiálová báza – kovové, sklené, betónové, murované, plastové, drevené a špecifickým druhom sú zelené fasády;
 - priehľadnosť – transparentné a netransparentné;
 - členenie – horizontálne a vertikálne;
 - vzduchová medzera – prevetrávané (odvetrané) a neprevetrávané (uzavreté);
 - orientácia – priečelné, nádvorné a záhradné.
 
Vlastnosti dreva, ktoré zohrávajú významnú úlohu pri jeho integrácií do stavebných konštrukcií (najmä pevnosť, estetika, prirodzená trvanlivosť, vlhkosť a iné), najmä pri ich použití v exteriéri, vzbudzujú rešpekt. Práve drevo a materiály na báze dreva sú však žiadanou a v prípade znalostí jednotlivých vlastností aj výhodnou alternatívou mnohých stavieb.
Pri drevených fasádach treba rozlišovať, či ide o chránené expozície (napríklad chránené presahom strechy), alebo nechránené – úplne vystavené vonkajším vplyvom, najmä počasia. Najvýhodnejšou a najmenej rizikovou alternatívou je použiť drevenú fasádu do chránenej zóny a vyriešiť ju ako prevetrávanú konštrukciu. Obklad môže byť teoreticky (v určitých podmienkach) priamo pripevnený na podklade (na obvodovej stene), trvanlivejšie a bezpečnejšie riešenie však predstavuje jeho upevnenie na nosnú konštrukciu pomocou kotiev či pomocného roštu so vzduchovou medzerou.
Spájanie jednotlivých kusov fasádnych obkladov predstavuje významnú úlohu pri komplexnom prístupe k riešeniu drevených fasád. Materiály možno spájať dvoma základnými spôsobmi – uzavretými a otvorenými škárami. V prípade uzavretých škár je tesnenie umiestnené zvyčajne z vonkajšej strany, väčšinou ho tvorí presah platní, prípadne styková škára, ktorá sa utesňuje tesniacim pásikom. Pri otvorených škárach môže malé množstvo dažďovej vody prenikať cez vonkajšiu škáru – permanentne otvorenú, no následne je zaistené jej bezpečné odvedenie von cez vzduchovú medzeru. Zvolený spôsob spájania a výber druhu obkladu výrazne ovplyvňujú klimatické podmienky v danej lokalite. Ochrana proti biologickému napadnutiu vzhľadom na organický pôvod materiálu je samozrejmosťou. Väčšinou ide o konštrukčnú (mechanickú) alebo chemickú ochranu. Významnú úlohu týkajúcu sa životnosti exteriérovej drevenej fasády plní výber dreva s vyššou prirodzenou trvanlivosťou a konštrukčná ochrana proti vlhkosti s doplnením paropriepustnej povrchovej úpravy dreva na prirodzenej (oleje, vosky) alebo chemickej báze.

Druhy dreva a materiály na báze dreva 
Masívne drevo
Vo všeobecnosti sú najznámejším stavebným sortimentom stavebné dosky. Ich povrch možno nechať v pôvodnom stave bez dodatočnej úpravy, prípadne ho upraviť ochranným náterom alebo impregnáciou, napríklad vodoodpudivým priehľadným, prípadne farebným náterom či moridlom. Náter môže byť na báze oleja, akrylu. Základné prostriedky na ochranu dreva sú väčšinou číre a vsiaknu bez toho, aby podstatne zmenili jeho vzhľad. Ďalšie vrstvy obmedzujú vsakovanie vlhkosti a aktivitu drevokazných húb. Nezabránia však zmenám farby a vyblednutiu dreva pôsobením klimatických vplyvov a UV žiarenia. Drevo časom nadobúda napríklad striebrosivú farbu, respektíve sa na jeho povrchu dejú iné farebné zmeny v závislosti od použitej povrchovej úpravy. Za týmto procesom zmeny vzhľadu netreba vidieť problém. Vzniknutú situáciu skôr treba chápať v pozitívnom zmysle – drevo získava svoju patinu. To platí, samozrejme, v prípade, ak nie je poškodená konštrukcia a funkcia fasády.
Priemerná hodnota vlhkosti zabudovaných drevených konštrukcií na použitie v exteriéri je 12 až 19 %, najväčšiu priemernú hodnotu možno presiahnuť najviac o 3 %. Hodnoty sú v súlade so všeobecnými európskymi požiadavkami.
Druhovosť vhodných drevín
Za vhodné na drevené obklady do exteriéru sa považujú predovšetkým tvrdé, odolné, trvanlivé dreviny. Z domácich sa preferuje dub, agát, ktorý časom dostáva zelenú patinu, z exotických drevín sú dostupné napríklad céder a bangkirai. Svojich fanúšikov si u nás začína nachádzať cumaru, tzv. brazílsky orech.
Problematické môže byť riešenie ich povrchových úprav. Medzi atraktívne patrili (v súčasnosti už v menšej miere) paronepriepustné lazúry, ktoré však vytvárajú nepriedušnú bariéru proti vonkajšej vlhkosti. To sa na prvý pohľad môže javiť ako výhoda. No v prípade, že sa vlhkosť z dreva nemôže ľahko vypariť, dochádza k porušovaniu povrchovej úpravy a môžu sa vytvárať aj vhodné podmienky na hnilobné procesy. Tým sa životnosť takto ošetreného dreveného prvku paradoxne zníži. Drevo je organický materiál, ktorý potrebuje dýchať, reaguje na zmenu vlhkosti okolitého prostredia. Túto vlastnosť treba rešpektovať.
Tlakovo impregnované drevo
Ochranné prostriedky vnikajú pod tlakom do prierezu prvku. Takto upravené drevo by malo byť prakticky bezúdržbové a mimoriadne trvanlivé
Modifikované drevo 
Modifikácia dreva sa realizuje jeho chemickou úpravou, pri ktorej sa hydroxylová skupina –OH nahrádza inou. Výrazne sa ňou znižuje nasiakavosť a následné nevítané objemové zmeny, zvyšuje sa jeho trvanlivosť a biologická odolnosť. Najčastejším spôsobom modifikácie je acetylácia. Objemové zmeny dreva sa znížia použitím tejto metódy až o 80 % (v závislosti od konkrétneho druhu). Veľmi častou úpravou, ktorá sa používa v súčasnosti, je proces tepelnej modifikácie. Prostredníctvom zvýšenej teploty sa z dreva odstráni hydroxylová skupina. Vďaka tomu môže nasiakavosť poklesnúť až približne o 40 %. Trvanlivosť takto vzniknutého termodreva je vyššia vďaka rozpadu hemicelulózy. Termodrevo je trvanlivé drevo novej generácie. Vplyvom teploty nastávajú aj zmeny optických vlastností takéhoto dreva, hmota stmavne. Rovnako ako prírodné drevo nie je stabilné pri vplyve UV žiarenia, časom získava sivý odtieň.

Ide o kombináciu dreva s inými materiálmi. Zámerom je spojiť vynikajúce vlastnosti dreva s kvalitami iných materiálov. V ostatnom čase sa možno stretnúť najčastejšie s kombináciou drevo – plast. Drevu príbuzné materiály ako cementovláknité a cementotrieskové dosky sú v exteriéri odolnejšie ako produkty vyhotovené kombináciou dreva a lepidla. Kombinácia silikátovej a drevnej bázy je klasickým príkladom využitia dobrých vlastností oboch materiálov. Dosky sú nehorľavé, silikátová báza ochraňuje materiál proti hnilobe, plesniam a rôznym škodcom. 
Zvláštnym druhom sú rôzne vytláčané vláknité profily. Obsahujú 90 a viac percent drevených vlákien, ktoré sa kombinujú s termoplastom. Táto kombinácia prináša odolnosť materiálu proti nepriaznivým poveternostným vplyvom a absorpcii vody. Povrch sa upravuje lakovaním, fóliovaním a pod.
Veľmi atraktívnou alternatívou je kombinovanie drevenej nosnej časti fasády s inými materiálmi. Vo väčšine prípadov sa kombinujú drevené stĺpiky a priečniky so sklenenými tabuľami (obr. 2). To dodáva drevu modernejší vzhľad.
Výhodou fasády zhotovenej zo stĺpikov a priečnikov je predovšetkým do veľkej miery možná prefabrikácia a s tým úzko spojená rýchla montáž a včasné užívanie stavby. V tomto prípade sa stĺpiky a priečniky spájajú do súvislej konštrukcie fasády na stavenisku, celkovú kvalitu fasády určuje jej konštrukcia, spôsob realizácie a proporčné rozdelenie samotného rastra. Stĺpiky a priečniky z dreva sa spájajú rôznymi spájacími prostriedkami, ktoré sú vhodné na drevené konštrukcie (obr. 3 až 7).
![]()  | 
![]()  | 
![]()  | 
| Obr. 3 Čapový spoj s vlepenými kolíkmi (z bukového dreva) [1] | Obr. 4 Spoj s rybinovým čapom [1] | Obr. 5 Excentrický spoj [1] | 
![]()  | 
![]()  | 
|
| Obr. 6 Spoj s napínacou kotvou [1] | Obr. 7 Spoj s plochým oceľovým prvkom v rovine zasklenia [1] | 
Ochrana proti požiaru
Nenosné obvodové steny by sa mali navrhovať z nehorľavých materiálov, zaradených do skupiny A – nehorľavé – podľa platnej normy. Fasáda by mala odolať ohňu počas 30 minút. Každá drevostavba musí mať samostatnú projektovú dokumentáciu vyhotovenú autorizovaným projektantom. 
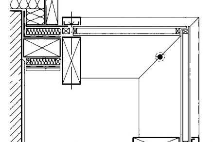
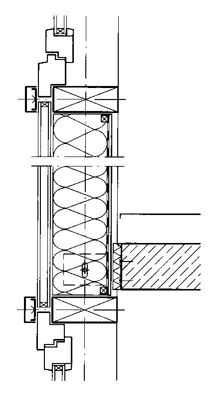
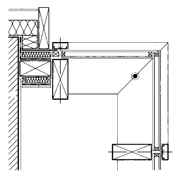
Dôležité je aj riešenie spôsobu napojenia jednotlivých konštrukcií medzi sebou, napríklad spojenia stropnej konštrukcie s fasádou budovy (obr. 8), napojenia fasády na obvodovú konštrukciu (obr. 9), prípadne napojenia deliacich stien, ako aj riešenie kúta obvodovej konštrukcie.
![]()  | 
![]()  | 
| Obr. 8 Princíp napojenia fasády na nadväzujúcu konštrukciu, obvodová konštrukcia a strop [1] | Obr. 9 Príklad možného princípu napojenia drevenej fasády na obvodovú stenu [1] | 
Obr. 10  Petting Farm, Holandsko, 2008 [2]

Množstvo architektonicky zaujímavých príkladov riešenia drevených fasád možno nájsť po celom svete, najmä v krajinách s tradíciou drevených stavieb. Patria medzi ne najmä severské krajiny, v ktorých pomerne veľké percento architektonických ateliérov sústreďuje svoj záujem na túto materiálovú bázu. 
Zaujímavosťou projektu Petting Farm (obr. 10) je rozpohybovanie drevenej fasády. Jej pohybom sa môže počas dňa výrazne meniť optická charakteristika stavby. Veľká časť fasády je trvalo tienená.
Významným reprezentantom stavieb s drevenou fasádou je Nemecko. Drevo sa tu uplatňuje aj na verejných budovách. Diagonálne a čiastočne nepravidelné členenie fasády Martinsriedskeho kampusu univerzity Ludwig-Maximilians (obr. 11) korešponduje s okolitým prostredím. Samotní architekti ju definovali ako koncept voľne stojacej štruktúry, ktorý sa integruje do otvoreného priestoru.
Wisa wooden design hotel je experimenovanie s konštrukciu a drevom ako takým. Vidieť tu snahu ukázať možnosti práce s drevom a integrovanie drevenej konštrukcie do terénu (obr. 12).
Príkladom kompaktne riešeného dreveného objektu priamo v mestskej zástavbe je The Sleder House, ktorý sa nachádza v Nemecku (obr. 13). Za povšimnutie stojí farebné kontrastné riešenie exteriéru a interiéru.
Obr. 11  Central Facilities, Martinsried campus, Ludwig-Maximilians University, Nemecko, 2004 až 2009 [2]
Obr. 12  Wisa wooden design hotel, Fínsko, 2009 [2]
TEXT: Ing. Dominika Búryová, PhD.
FOTO: archív autorky, literatúra
Ing. Dominika Búryová, PhD., pôsobí na Katedre nábytku a drevárskych výrobkov Drevárskej fakulty Technickej univerzity vo Zvolene.
Recenzoval Ing. Stanislav Jochim, PhD., ktorý pôsobí na Oddelení drevených konštrukcií Technickej univerzity vo Zvolene.
Literatúra
1.    Neumann, D. – Weinbrenner, U. – Hestermann, 
U. – Rongen, L.: Stavebné konštrukcie II. 
Bratislava: JAGA GROUP, 2006.
2.    Jodidio, P.: Wood architecture now! 
Taschen Italy, 2011.
3.    Watts, A.: Moderné fasády. 
Bratislava: JAGA GROUP, 2007.
4.    Svoboda, L. a kol.: Stavební hmoty. 
Bratislava: JAGA GROUP, 2004.
Článok bol uverejnený v časopise Stavebné materiály.
													
								                            

















						
						
						


