Detail konzoly, Cassovar
Ukončenie strechy na severnej a južnej fasáde S8Náter proti UV žiareniu Conipur TC 459 RAL 9006Hydroizolačná membránaDoska OSB s hrúbkou 18 mmOceľový pozinkovaný plech s hrúbkou 0,8 mm, výška vlny […]
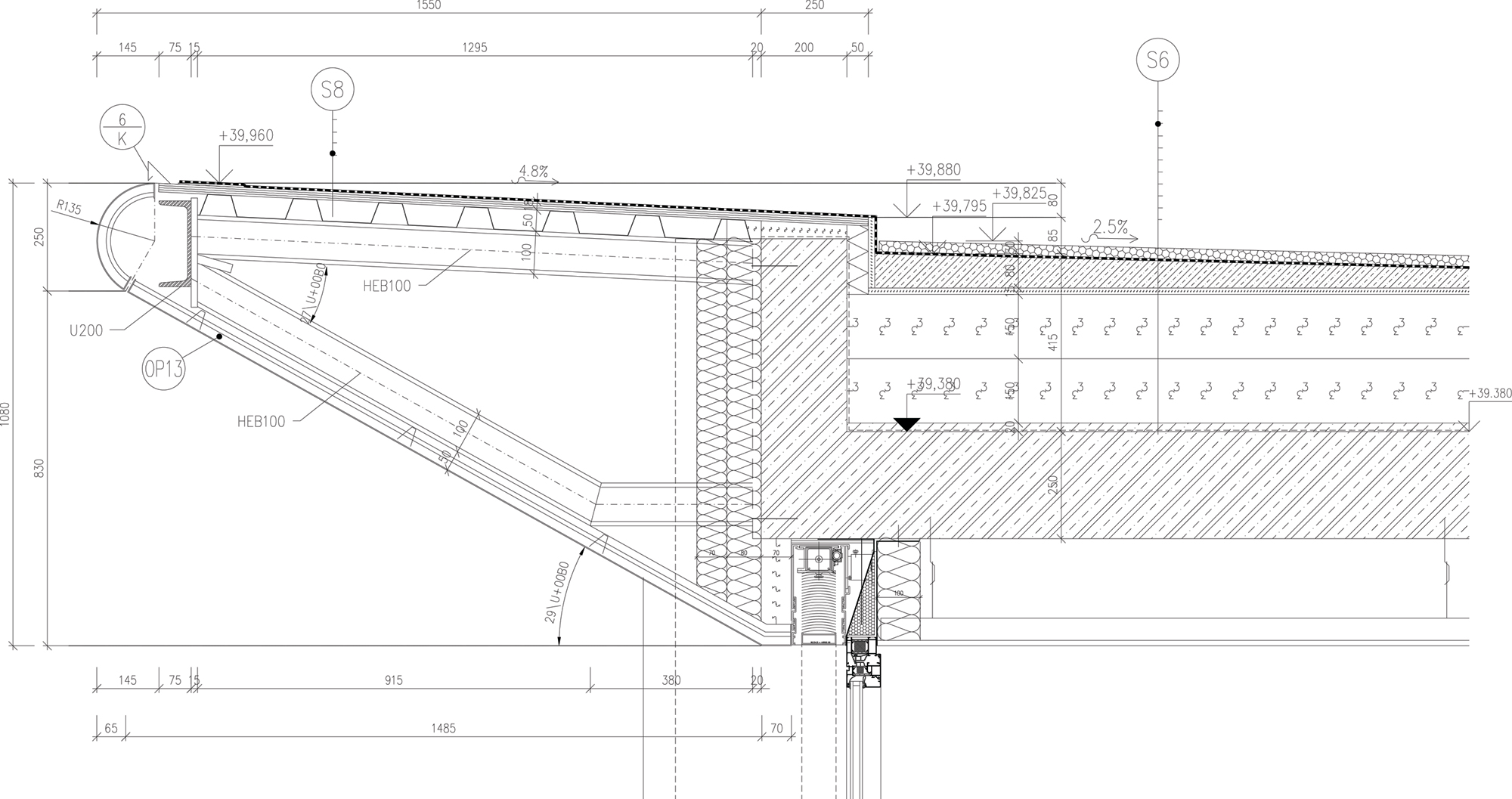
Ukončenie strechy na severnej a južnej fasáde
S8
Náter proti UV žiareniu Conipur TC 459 RAL 9006
Hydroizolačná membrána
Doska OSB s hrúbkou 18 mm
Oceľový pozinkovaný plech s hrúbkou 0,8 mm, výška vlny 50 mm
S6
Ochranná drenážna vrstva Ecostone 8/16 s hrúbkou 30 mm
Hydroizolačná membrána
Pečatiaca vrstva Elastopave
Spádová betónová mazanina s hrúbkou 40 – 80 mm
Tepelná izolácia s hrúbkou 15 mm
Prídavná spádová tepelná izolácia s hrúbkou 50 – 150 mm
Tepelná izolácia s hrúbkou 150 mm
Zrovnávací posyp s hrúbkou maximálne 20 mm
Parozábrana Mastertop P605/617
Železobetónová stropná doska









