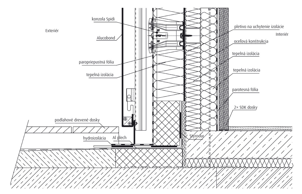
Detail fasády alucobond knižnice Katolíckej univerzity
Vonkajší plášť univerzitnej knižnice v Ružomberku je kombináciou zasklených plôch a prevetrávaného metalického obkladu (kazety alucobond) v sivej farbe.
Vodorovný rez fasádou Alucobond
Zvislý rez fasádou Alucobond
Foto: Dano Veselský
Dokumentácia: A02 ATELIÉR, A-PROJEKT











