Celozasklená fasádna konštrukcia administratívnej budovy Gas&Oil
Administratívna budova Gas&Oil je reprezentačným sídlom spoločnosti GasOil Engineering, a. s. Nachádza sa v obci Spišská Teplica, ktorá leží na južnom okraji Popradskej kotliny. Architektonický výraz budovy korešponduje s hlavným predmetom činnosti tejto firmy zameranej na komplexné služby v odvetví energetiky a petrochémie so špecializáciou na sektor ropy a plynu.
Dominujúcim prvkom fasády sú veľké zasklené plochy, v ktorých sa zrkadlí okolie. Dialóg medzi živou a neživou hmotou, ktorý sa tu odohráva na scéne dotváranej tatranskou prírodou je výsledkom komunikácie investora s architektom. Peter C. Abónyi mal od začiatku jasnú predstavu o tom, akú tvár by malo reprezentačné sídlo spoločnosti GasOil mať. Túto predstavu preniesol do architektonického a technického riešenia nielen obvodového plášťa, ale aj budovy ako takej.Obvodový plášť
Obvodový plášť budovy tvorí prevažne kombinácia celozasklenej fasádnej konštrukcie, metalického a dreveného obkladu. Na vytvorenie celozasklenej fasády sa použil hliníkový systém typu stĺplik-priečka so štrukturálnou škárou. Rohové styky fasády sa riešili ako maximálne transparentné. Transparentnosť sa dosiahla rohovým celoskleneným spojom zasklenia bez použitia zasklievacieho profilu.
Napriek štrukturálnemu zasklievaciehmu systému, pri ktorom je z hľadiska požiadaviek tepelnej techniky eliminácia tepelných mostom vyriešená horšie, sa podarilo dosiahnuť súčiniteľ prechodu tepla celej konštrukcie na úrovni asi Uw = 1,4 (W/(m2 . K)). Tepelný most spôsobuje tmelený spoj v oblasti tepelnoizolačnej roviny zasklenia. Na jeho elimináciu sa používa PU prerušenie, ktoré zároveň tvorí podklad na aplikovanie tmelu a zachovanie jeho pružnosti počas životnosti konštrukcie.
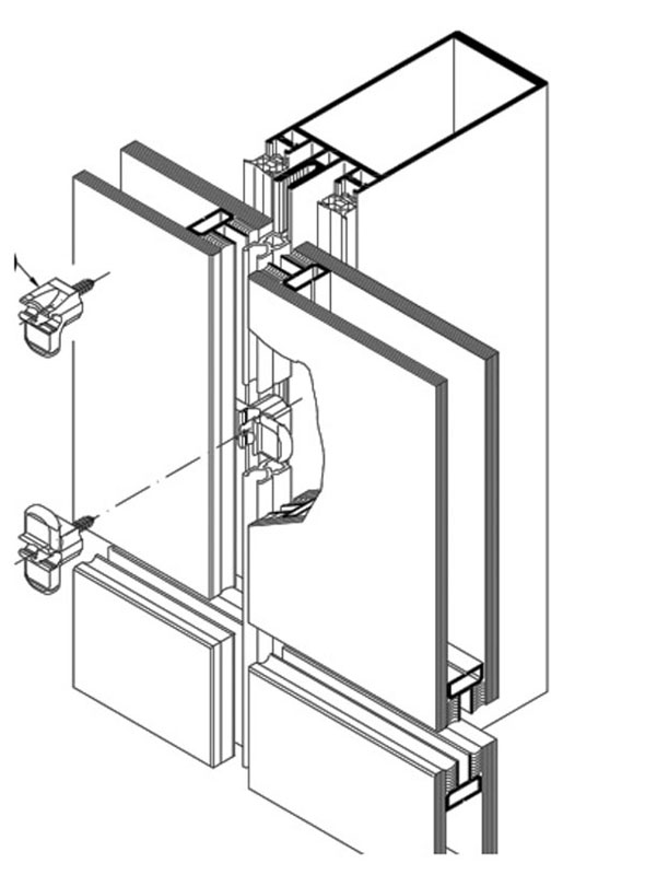
Pri tomto spôsobe zasklenia sa sklenené výplne kotvia pomocou antikorových kotviacich prvkov. Kotviace klipy sa skrutkujú do hliníkového systému a zasklenie držia pomocou špeciálneho dištančného rámčeka alebo vložených antikorových U-profilov (obr. 1).
![]() |
![]() |
| Obr. 1 Prerušenie tepelného mosta a kotvenie fasády 1 – pretmelenie škáry, 2 – PU prerušenie tepelného mosta, 3 – lokálne kotviace prvky zasklenia, 4 – antikorový dištančný rámček zasklenia |
|
Otváravé časti tvoria von výklopné okná s nalepeným zasklením (obr. 2 a 3), tak aby z exteriérovej strany nebol viditeľný hliníkový zasklievací systém a fasáda pôsobila ako čistá zasklená plocha. Týmto systémom sa riešili aj nepriehľadné časti v oblasti atiky a stropných konštrukcií.
![]() |
![]() |
| Obr. 2, 3 Von výklopné okná s nalepeným zasklením | |
Zaujímavým technickým detailom bolo osadenie fasádnej konštrukcie do systému C-kaziet. Z hľadiska požiadaviek maximálneho priehybu konštrukcie na kotvenie výplní otvorov a vyriešenia tepelného mosta v oblasti bežného vystuženia C-kaziet v oblasti parapetu a nadpražia nebolo možné použiť systémovú výstuhu. Systémová výstuha sa umiestňuje vo vnútri C-kazety. Navrhnuté riešenie spočíva v umiestnení nosnej konštrukcie za úroveň C-kaziet. Kotvila sa priamo do nosných oceľových stĺpov objektu.
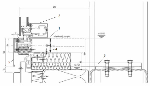
Hliníková fasáda je osadená a kotvená systémom takzvaného pásového okna na plastový priebežný podkladový profil. Podkladový profil zabezpečuje prerušenie tepelného mosta a zároveň slúži na odvod kondenzátu z odvodňovacej drážky fasády. Okrem zabezpečenia bezpečného odvedenia kondenzátu sa týmto spôsobom osadenia zároveň minimalizuje priestor potrebný pre detail osadenia (obr. 4).
Obr. 4 Detail osadenia hliníkovej fasády na podkladový profil
1 – hliníkový fasádny profil, 2 – hliníkové von výklopné okno, 3 – kotvenie hliníkovej steny, 4 – plastový podkladový profil, 5 – oplechovanie vo farbe fasády
![]() |
![]() |
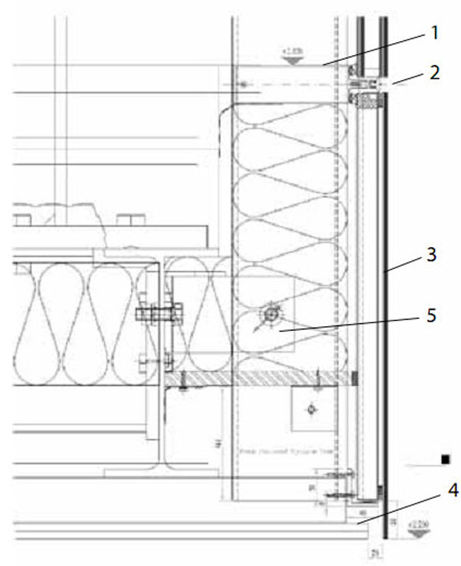
| Obr. 5 Detail štrukturálnej fasády kombinovanej so vstupnými automatickými dverami 1 – hliníkový fasádny profil, 2 – oplechovanie zateplenia hliníkového profilu, 3 – tmelená škára, 4 – automatické dvere |
Obr. 6 Detail nadväzujúceho lepeného skleneného podhľadu na zasklenú stenu 1 – hliníkový fasádny profil, 2 – tmelená škára, 3 – nepriehľadné zasklenie – prekrytie stropnej konštrukcie, 4 – sklený lepený podhľad, 5 – kotvenie hliníkovej steny |

Zaujímavým architektonickým prvkom sú celosklené dvere integrované do vstupnej fasády. Pri tomto riešení zo strany exteriéru nie je viditeľný hliníkový rám a krídlo dverí. Keďže išlo o nesystémové riešenie čo do veľkosti a spôsobu otvárania dverí, najväčšia výzva bola zladiť olepenie sklom vo väzbe na funkčnosť a eliminovať riziko prasknutia pri otváraní (obr. 7, 8).
Konštrukčné riešenie
Sídlo spoločnosti je rozdelené na dva samostatné objekty (obr. 11). Jedáleň a administratívna budova sú navzájom prepojené celoskleneným spojovacím mostom (obr. 12).
Aby sa maximalizovali rozpätia, zvýraznil otvorený priestor a aby sa budova prepojila s okolitým prostredím, zvolil sa oceľový nosný systém. Jeho použitím sa zároveň zvýraznil technický ráz budovy ako celku.
Oceľový nosný systém a väzníky s rozpätím viac ako 7 metrov kládli nároky na vyriešenie problémov s priehybom konštrukcií, dilatačnými pohybmi nosnej konštrukcie a v neposlednom rade aj na vyriešenie problémov s kapotážou oceľových prvkov potrebných na kotvenie fasády, tak aby nepredstavovali rušivý element v interiéri (obr. 13).
![]() |
![]() |
| Obr. 8 Detail osadenia celosklenených dverí do fasády | Obr. 9, 10 Sklenený podhľad |
![]() |
![]() |
| Obr. 10 | Obr. 11 Dva samostatné objekty prepojené celoskleneným spojovacím mostom |
![]() |
![]() |
| Obr. 12 Sedenie umiestnené v spojovacom moste | Obr. 13 Kapotáž oceľových prvkov |
Záver
Administratívna budova Gas&Oil je dôkazom toho, že vhodnou kombináciou moderných a tradičných stavebných materiálov možno vytvoriť architektonické dielo, ktoré aj napriek modernému vzhľadu dobre zapadá do kontextu obce. A zároveň aj dôkazom toho, že vďaka v súčasnosti dostupným technickým riešeniam možno realizovať objekty s celozasklenou fasádou vyhovujúce tepelnotechnickým požiadavkám stanovených v normatívnych predpisoch.
TEXT: Ing. Marek Rura
OBRÁZKY a FOTO: Vladimir Yurkovic, FENESTRA SK
Ing. Marek Rura je obchodníkom firmy FENESTRA SK, spol. s r. o.
Článok bol uverejnený v časopise Stavebné materiály.
























