Capricornhaus – fasáda s inteligenciou
Pri návrhu budovy Capricornhaus, ktorú sme vám už predstavili, architekti budovu znova rozložili a hľadali nadbytočnosti. Pre ekonomiku a vyššiu kvalitu stavania definovali čo možno najviac rovnakých elementov budovy. Potom až do posledného detailu spracovali fasádny modul v mierke 1 : 1. Zaujímavosťou je, že takéto digitálne stavanie slúži ako nástroj jednoduchšej prevádzky budovy. Kedže je všetko dôsledne uložené v počítači, môže sa pokaziť napr. aj teplotný senzor. Teoreticky sa dá celá budova spravovať počítačom aj z opačného konca zemegule. Pozrime sa preto bližšie na detaily fasády, ktorá oplýva inteligenciou.
Tento objekt sa od ostatných stavieb líši aj v technickom module, ktorý architekti veľmi dôsledne integrovali do fasády. Ide o prístroj, ktorý vie vykurovať, ochladzovať, vetrať, absorbovať hluk a čistiť vzduch. Takisto je veľkou výhodou aj spätné získavanie tepla a technický stav s mimoriadne vysokým stupňom účinnosti, čiastočne až do 90 %, čím sa ušetrí veľa energie.
Z celého roka, ktorý má 8 760 hodín, pokrýva prevádzka kancelárskej budovy maximálne 25 %. Vo zvyšnom čase je potrebné, aby budova rozumne hospodárila – napr. v piatok, keď zamestnanci odchádzajú domov okolo 14.00 hod., môže vonkajšia teplota vystúpiť cez víkend aj na 40 °C. V pondelok ráno sa zamestnanci vracajú do práce a chcú mať vychladenú kanceláriu. Budova by mala vedieť, ako sa správať, keď je prázdna. Dobre naprogramovaný softvér spustí tienenie, budova sa hermeticky uzavrie a len v určitý nočný čas vpustí dovnútra vzduch. V Nemecku sa na tému možnosti priameho vetrania vedú búrlivé diskusie. Architekt Elmar Schossig zastáva názor, že ten, kto sedí vnútri budovy, nemôže pri vonkajšej teplote 40 °C otvoriť okno a počúvať cvrlikanie vtáčika.
![]() |
|
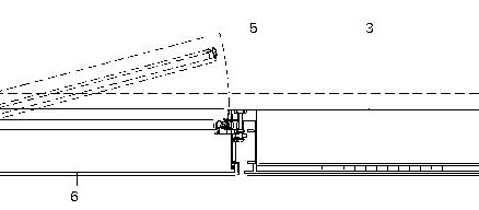
| Pozdĺžny rez | |
![]() |
|
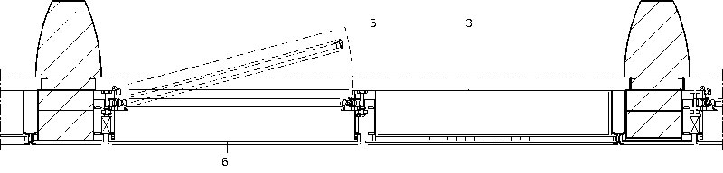
| Vodorovný rez Detail M 1:25 Legenda: 1 – Iteligentná ochrana proti slnečnému žiareniu, 2 – Odvetrávanie, 3 – Svetlá hĺbka – vetracia jednotka, 4 – Prívod vzduchu, 5 – Izolačné zasklenie otváravého krídla, 6 – Bezpečnostné zasklenie (proti vypadnutiu) |

Miesto stavby: Düsseldorf, Nemecko
Investor: Capricorn Development GmbHCo. KG
Architekti: Dörte Gatermann, Elmar Schossig
Vedúci projektu: Alfred Schelenz
Partneri: Winfried Hausler, Schüco International KG
Ingenieurbüro Rache-Willms, konzultácie fasád
IBT Ingenieurbüro AG H. Zimmerling, statika
HIT Huber Ingenieurtechnik GmbH (TGA)
Termín dokončenia: máj 2006
(ha)
Spracované z podkladov spoločnosti Schüco International KG
Foto: Schüco International KG, Gatermann+Schossig
Vizualizácia: Gatermann+Schossig














