Ako vybrať správnu fasádu
Keď sa povie „tá budova sa mi páči“, málokto si uvedomí, že v podstate hovorí o fasáde.
Fasáda okrem dizajnového výrazu tvorí prirodzenú ochranu pred poveternostnými vplyvmi, spolu so strechou chráni budovu pred dažďom, snehom, slnečným žiarením, vetrom či mrazom. Pomáha k energetickej stálosti budovy, má vplyv na akustiku vnútorného priestoru. Preto by mal byť správny výber obalovej konštrukcie jednou z hlavných priorít každého investora či architekta.
Veľa muziky za…
Najznámejším architektom posledného obdobia je Ing. arch. Hospodárska Kríza, čo sa odzrkadľuje pri porovnaní prvej vizualizácie s fotografiou po dokončení stavby. Pompézne návrhy skončia často na smetisku a sú nahrádzané jednoduchými „nálepkami“ namiesto vkusnej fasády. Ideálna fasáda je tá, čo sa hodí do prostredia, kde sa nachádza, a taká, čo trochu provokuje. Je vhodné, aby bola funkčná a spĺňala primárne požiadavky stavebnej fyziky. Pre nás je v tomto zaujímavý pohľad na malé a stredné objekty.
Výber fasády
Trendom súčasnosti sú sklo-hliníkové fasády, okná, dvere, prevetrávané fasády. Sú moderné, pekné a štýlové. S ich výberom to už také jednoduché nie je. Je pomerne dosť predajcov sklo-hliníkových systémov a je na architektovi a investorovi, pre aký sa rozhodne. Rovnako ako pri všetkom, parametrom č. 1 je cena. A to je chyba. Tak ako nie je všetko zlato, čo sa blyští, tak nie do každej hliníkovej fasády neprší, nie každé okno dobre tesní. Nedovolíme si hodnotiť kvalitu u nás používaných hliníkových systémov, ale sú parametre, ktoré je dobré preveriť. Napríklad typ zliatiny hliníka, ktorý daný systém používa. Samozrejme, kvalitnejšia zliatina znamená aj kvalitnejší výrobok. Aj školský príbor z roku 1987 bol hliník, ale fasádu z neho nechcete. Ďalej treba zistiť, či má systém vlastné certifikované kovania, aby sa nestalo, že spracovateľ ich zamení za lacnú náhradu. Kovanie predsa tvorí srdce každého otvoru. Zaujímavým ukazovateľom je hrúbka steny hliníkových profilov. Väčšia hrúbka zabezpečuje väčšie rozmery otvorových konštrukcií bez deformácií, s malou hrúbkou veľký otvor nevyriešite. Na posledné voľne nadväzuje aj bimetalový efekt, pri ktorom pri vysokej exteriérovej a nízkej interiérovej teplote taktiež nastáva deformácia profilu.
Ďalej sú to napríklad hrúbka nanesenej povrchovej úpravy, jej kvalita a podobne. Vyberať sklo-hliníkovú fasádu podľa vzhľadu nie je ideálne, keďže väčšina systémov vyzerá podobne, t. j. pohľadová šírka je zväčša 50 mm a hĺbka profilu sa určuje na základe statiky. Iné je to však pri hliníkových oknách a dverách, kde sa pohľadové šírky a stavebné hĺbky menia od systému k systému. Dobrý systém sa vyznačuje tým, že má malú pohľadovú šírku a hĺbku, a pritom dobré tepelnoizolačné vlastnosti. Netreba sa báť žiadneho na Slovensku ponúkaného systému, každý má svoje prednosti, treba si skôr uvedomiť, kde sa dané výrobky budú používať. Vhodný výber je teda súbor správne položených otázok na správnom mieste, treba trochu pátrať a výsledok sa určite dostaví. Pri „hliníkoch“ to určite odporúčame.
Prevetrávané fasády
Podobne je to pri prevetrávaných fasádach, tu je však potrebné zdôrazniť, že záleží na tom, o aký druh prevetrávanej fasády ide. V princípe sa delia podľa druhu použitého pohľadového materiálu. Môže ísť o keramické prevetrávané fasády, cementovláknité prevetrávané fasády, dosky HPL alebo o obľúbené kompozitné, teda bondové fasády. Je ich, pochopiteľne, viac, napríklad drevené alebo betónové, no tie sa používajú menej. Kritérium pri výbere je v tomto prípade vzhľad a kvalita.
Fungujú podobne, vyzerajú inak. Veľmi obľúbené a moderne vyzerajúce sú prevetrávané fasády z dosiek HPL a takzvané bondové. V prvom prípade ide o vysokotlakový laminát, v druhom o kompozitnú dosku, čiže o dosku zloženú z viac ako jedného materiálu, v tomto prípade so štruktúrou hliník – plast – hliník. Pri oboch je určujúcim parametrom pevnosť, čo je v princípe zvládnuté, a následne farebná stálosť povrchovej vrstvy, t. j., či vám výrobca zabezpečí nezmenenú farbu na dlhé obdobie. Treba si dať pozor na menej kvalitné náhrady, kde je rozdiel v cene viditeľný s odstupom času.
Návrh od architekta
Pri dohadovaní sa s investorom často počuť vetu: „Veď ja už projekt na fasádu mám, čo tam chcete riešiť?“ Odpoveď: „Hádam všetko.“
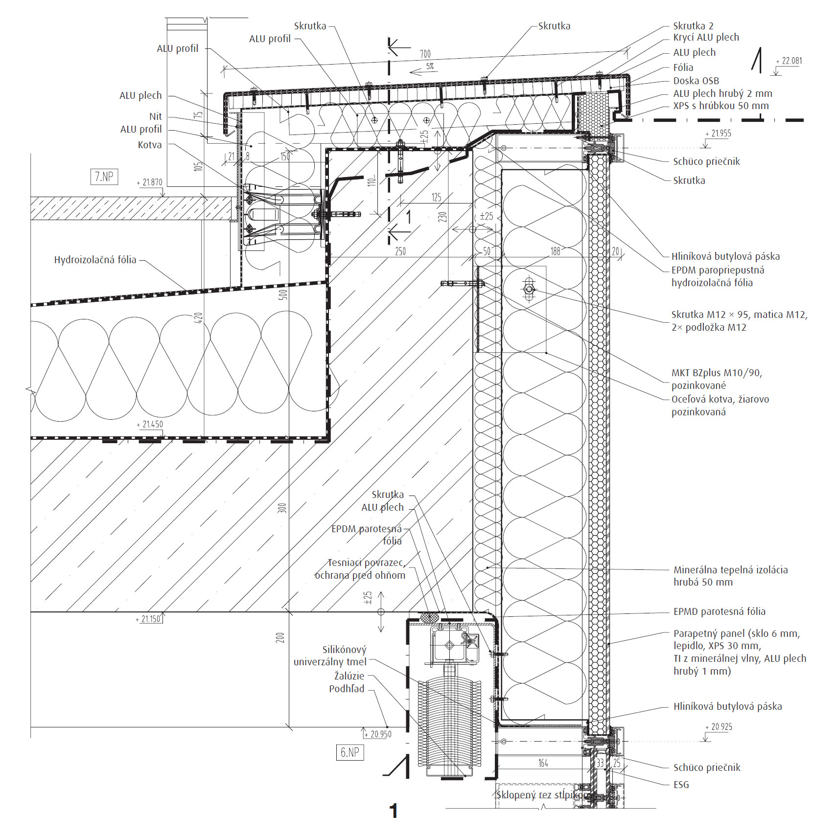
Architekt zvolil dizajn. Zvolil raster, farbu, štruktúru, tvar, veľkosť. To však je len vhodný podklad pre špecialistu na fasády, ktorý do úvodného návrhu vloží všetky drobné súčiastky, aby daná fasáda fungovala, ako má. Špecialista je tu na to, aby upozornil, čo sa zrealizovať dá a čo už nie. I keď vo všeobecnosti odpoveď NIE neexistuje, veď všetko je vecou peňazí. Žiadny investor však nemá rád, keď sa pred realizáciou zistí, že je nutné fasádu pozmeniť, lebo reálne technické riešenie vlastne technickým riešením nie je, respektíve stojí zbytočne veľa peňazí. Ďalším problémom v poradí je, že každá realizačná firma pochopí, teda aj nacení danú fasádu inak. Ideálne riešenie je, keď sa k podkladu na nacenenie spraví tendrová dokumentácia, ktorá zaväzuje každého naceniť rovnaké riešenie. Stačí dať vypracovať dokumentáciu špecialistovi alebo od začiatku s ním spolupracovať. Stojí vás to nejaké tie investície, no optimalizuje to náklady na výstavbu.
Výber dodávateľa
Na začiatku je dôležité prejsť si s realizátorom všetky riešenia a žiadať pred realizáciou kompletnú výkresovú dokumentáciu, ktorú by mali pred samotnou realizáciou podpísať obe strany. Treba si však dať pozor na to, že tendrová dokumentácia nie je realizačná. Aký je medzi nimi rozdiel? Tendrová určila hranice toho, ako chcete, aby v princípe fasáda vyzerala, a zhotovuje ju zväčša nezávislá osoba. Realizačnú dokumentáciu by mal tvoriť zhotovovateľ alebo ním poverený špecialista. Mala by obsahovať všetky detaily a napojenia fasády na stavbu, popis materiálov, izolácií, oplechovaní a ostatných prvkov. Taktiež je to jediný nástroj, podľa ktorého môže investor zhotovovateľa počas výstavby kontrolovať. Je to tiež signál, že zhotovovateľ vie, čo ide robiť, a nebude vymýšľať riešenia počas výstavby.
TEXT: Článok vznikol v spolupráci so spoočnosťami ALMON, S. R. O. A ALURYS S. R. O.
Foto: ALMON, S. R. O., ALURYS, S. R. O.
Článok bol uverejnený v časopise ASB.








