Využitie montovaného železobetónového skeletu v drevostavbe
Slovné spojenie kompozitná stavba, prípadne kompozitná stavebná konštrukcia, sa používa na označenie stavby, na ktorej realizáciu sa použije kombinácia dvoch (alebo viacerých) odlišných technológií alebo spôsobov výstavby.
Najčastejšie ide o stavby, pri ktorých sa jedným typom konštrukcie vytvára nosná kostra stavby a uplatnením úplne inej technológie a iných typov stavebných materiálov sa realizujú napríklad výplňové konštrukcie. Typickým príkladom je drevostavba, pri ktorej nosnú funkciu zabezpečuje montovaný železobetónový skelet.
Kompozitná stavba – výhody skeletovej konštrukcie a drevostavby
Obľuba drevostavieb v ostatných rokoch stále rastie predovšetkým vďaka rýchlosti ich výstavby, vhodnosti využitia na zhotovenie energeticky úsporných objektov a v prípade objektov s menšou rozlohou aj vďaka primeranej cene. Drevostavby sa stali takmer synonymom pre montovaný dom. Drevostavba v konečnom vyhotovení, teda od základov až po strešnú konštrukciu, má však aj svoje nevýhody. Medzi ne patria napríklad obmedzené konštrukčné a mechanické vlastnosti dreva a jeho nevhodnosť na zhotovenie staticky náročných častí stavby a zároveň aj ich nižšia životnosť (30 rokov).

![]() |
![]() |
| Obr. 2 Nosný železobetónový skeletový systém vo viacpodlažnom objekte a rez objektom | |

Keďže sa drevené konštrukčné prvky nepoužívajú na zhotovenie nosných častí stavby, odstraňuje sa tým nevýhoda nižšej životnosti drevostavby. To navyše umožňuje riešenie aj takých konštrukcií, ktoré by v prípade klasickej drevostavby boli vzhľadom na statickú náročnosť technicky komplikované a neúmerne finančne nákladné. Využitím montovaného železobetónového skeletu na zhotovenie nosných častí drevostavby sa táto nevýhoda eliminuje a životnosť kompozitnej stavby zodpovedá doposiaľ prevládajúcim murovaným konštrukciám. Zároveň si tento spôsob výstavby zachováva cenovú dostupnosť.
Výhoda použitia skeletu ako nosnej konštrukcie drevostavby je zjavná predovšetkým pri viacpodlažných stavbách, pri ktorých sú nároky na statiku nosnej konštrukcie výrazne vyššie (obr. 2). Použitie celej konštrukčnej sústavy železobetónového skeletu vrátane stropných panelov navyše rieši aj problém krokového hluku, ktorý je pre drevostavby charakteristický.
Nízkoenergetický a pasívny štandard
Koncept kombinácie montovaného železobetónového skeletu s ľahkou výplňovou konštrukciou obvodových stien, prípadne konštrukciou podkrovia a strechy sa uplatňuje v stavebnej praxi od roku 2010. Odborníci sa už od vzniku tejto konštrukčnej sústavy zaoberajú rozličnými kombináciami ťažkého montovaného železobetónového skeletu s ľahkým výplňovým materiálom s cieľom zistiť, či je tento systém vhodný na realizáciu budov v nízkoenergetickom a pasívnom štandarde. V európskej energetickej koncepcii je dokonca stanovené, že od roku 2020 sa všetky novostavby bytových a rodinných domov musia v rámci krajín EÚ realizovať v pasívnom štandarde. Budúcnosť technológie výstavby možno preto vidieť v jasnom rozlíšení nosnej konštrukcie a tepelnoizolačného obvodového plášťa. Kľúčom je využitie vhodných stavebných materiálov a technológií na miestach v rámci jednotlivých konštrukčných častiach stavby, na ktorých vzhľadom na ich vlastnosti optimálne plnia svoju funkciu. Ideálne sa javí použitie čo najtenšej, avšak maximálne trvanlivej a odolnej nosnej konštrukcie, doplnenej tepelnou izoláciou navrhnutou v závislosti od energetickej náročnosti konkrétnej budovy.
Jedným z riešení, ktorými možno dosiahnuť dobré výsledky v oblasti tepelnotechnických parametrov, je kombinácia železobetónového skeletu a predsadeného dreveného obvodového plášťa.
Tepelnotechnické parametre
Návrh skladby predsadeného dreveného plášťa sa vyhotovil tak, aby bolo možné stavbu realizovať aj v nízkoenergetickom štandarde (tab. 1 a 2). Pri takto navrhnutej skladbe obvodového plášťa sa súčiniteľ prechodu tepla konštrukcie U-hodnota nachádza na úrovni 0,15 W/(m2 . K), čo s veľkou rezervou spĺňa súčasnú požiadavku STN 730540-2: 2002 (Tepelnotechnické vlastnosti stavebných konštrukcií a budov. Tepelná ochrana budov. Časť 2: Funkčné požiadavky). V tejto norme sa pre ľahké konštrukcie uvádza maximálna hodnota U < 0,3 W/(m2 . K). Výpočtové hodnoty sa overili aj termovíznym meraním na doposiaľ realizovaných stavbách (obr. 4 až 6).
Obr. 4 Detail sokla objektu
a) rez, b) izotermy, c) pole teplôt
Obr. 5 Detail napojenia stĺpa a päty objektu
a) rez, b) izotermy, c) pole teplôt
Obr. 6 Detail stĺpa objektu
a) rez, b) izotermy, c) pole teplôt
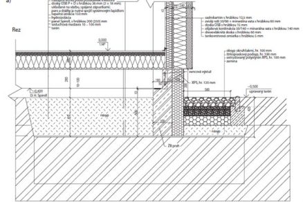
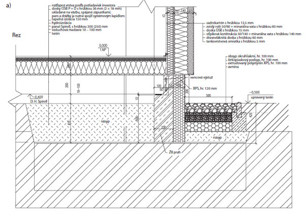
Najkritickejším miestom z hľadiska tepelnej techniky je v prípade kompozitných stavieb s využitím montovaného železobetónového skeletu detail napojenia stĺpa a pätky (obr. 5). V tomto mieste je nutné stĺp zatepliť z vonkajšej strany extrudovaným polystyrénom s hrúbkou 120 mm, a to minimálne do výšky 0,3 m nad úroveň terénu a 0,5 m pod úroveň terénu. Tento detail a minimalizáciu tepelného mosta možno vyriešiť optimálnym návrhom opláštenia.
TEXT: Ing. Pavel Trtík, Ing. Zdeněk Blažek
OBRÁZKY a VIZUALIZÁCIE: GOLDBECK Prefabeton
Ing. Pavel Trtík je technikom oddelenia Technického rozvoja spoločnosti GOLDBECK Prefabetón, s. r. o.
Ing. Zdeněk Blažek je obchodným riaditeľom spoločnosti GOLDBECK Prefabetón, s. r. o.
Článok bol uverejnený v časopise Stavebné materiály.
–>–>




















