Ako premeniť starú školu na nové byty?
Projekt Dornyk na Ivanskej ceste sme predstavili už na jeseň minulého roku. Rekonštrukcia pôvodného objektu učebných priestorov učilišťa so zmenou využitia na malometrážne byty a nadstavba ďalších troch podlaží sa v tomto čase preklápa do finálnej fázy.
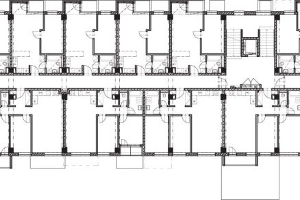
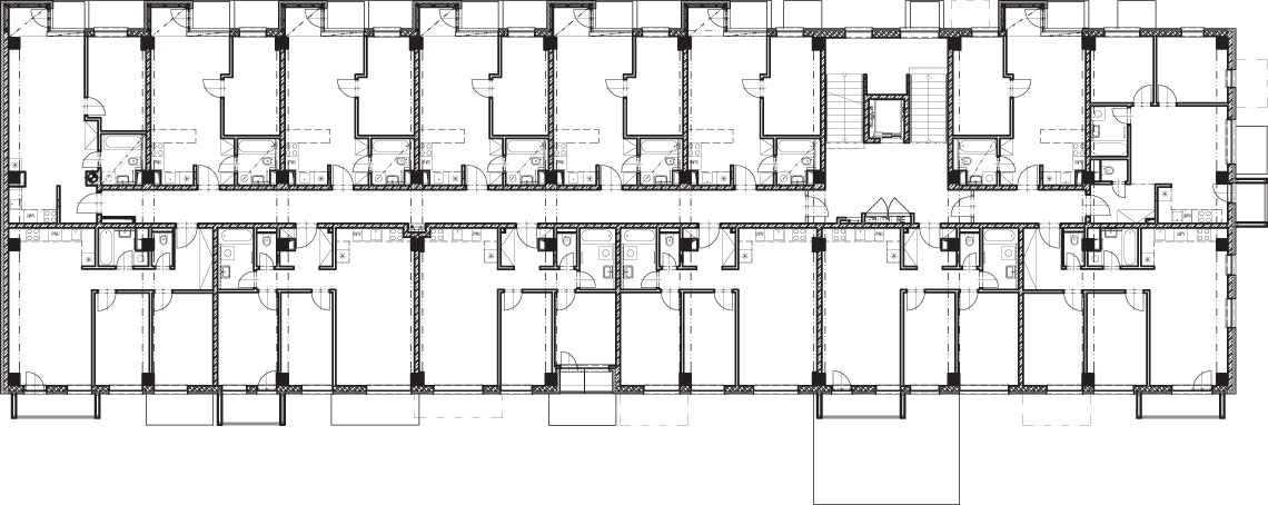
Vzhľadom na to, že pôvodnú konštrukciu budovy nebolo možné zaťažiť, pre nadstavbu bol vymyslený nový nosný systém. Konštrukciu staršej školskej budovy tvorí montovaný skelet Priemstav s modulovou osnovou 6,0 m × 3,0 m × 6,0 m v priečnom smere a 9,0 m × 6,0 m v pozdĺžnom smere. Je to priečny nosný systém s konzolovými rámovými priečľami stykovanými uprostred 3-metrového stredného modulu. Rámové priečle majú pozdĺžne konzoly na uloženie dutinových stropných panelov s výškou 250 mm a šírkou 1 200 mm, respektíve 600 mm. Na krátke 250-milimetrové konzoly rámových priečlí sú na pozdĺžnych stranách uložené stužidlové nosníky s prierezom 250 mm × 500 mm. Stĺpy majú rozmery 500 mm × 500 mm, sú montované prechodom rohových výstuží cez rámové priečle.
Tlačené steny medzi bytmi
Projekt prestavby mení účel využitia objektu na bytový dom. S tým súviseli dispozičné zmeny pri realizácii, napríklad použitie ťažkých deliacich stien z dôvodu zvukovej nepriezvučnosti medzi jednotlivými bytmi. Medzibytové steny nebolo možné položiť na existujúce stropné panely, keďže na to neboli dimenzované. Rekonštrukcia v nadväznosti na nadstavbu riešila prechod týchto stien cez existujúce stropy a ich využitie ako nosného systému nadstavby. Prechody nových stien cez dutinové stropné panely sa zrealizovali vybúraním prierazov cez dutiny alebo vyrezaním a odstránením celých pásov prefa dosiek, osadením prechodových výstužných vložiek a prebetónovaním na tlačené steny systémom Doka.
Pôvodný obojsmerný skeletový konštrukčný systém je doplnený pozdĺžnymi a priečnymi stužujúcimi stenami hrubými 200 mm, ktoré sú osadené v starej, ale aj novej modulovej osnove, čím sa architektom otvorilo nové dispozičné riešenie. Pod stužujúce steny boli dobetónované nové základové pásy a pätky, čím sa dosiahlo len prípustné priťaženie pôvodných základových pätiek, takže ich nebolo treba zosilňovať. Vzhľadom na to, že úroveň základovej škáry nových základových prvkov bola približne rovnaká ako úroveň základovej škáry pôvodných pätiek, nové základy bolo nutné realizovať na etapy, pretože pri obnažení pätiek zo všetkých strán by mohla byť prekročená únosnosť základovej pôdy aj pri nezaťaženej „holej“ konštrukcii. Pôvodné pätky boli prisypané zhutneným materiálom vždy minimálne z dvoch strán.
Zaujímavosťou rekonštruovanej spodnej časti bytového domu je výška stropov 3,32 m. Budúcim obyvateľom poskytne neobvyklé možnosti riešenia úložných priestorov alebo vyvýšeného spania a tým aj lepšie využitie podlahovej plochy bytu.
Arkiere kvôli svetlu
Trojpodlažná nadstavba je nad celým pôdorysom existujúcej spodnej stavby. Konštrukčne nadväzuje na pripravený stenový nosný systém s horizontálnym oddilatovaním od pôvodných obvodových konštrukcií polystyrénom s hrúbkou 20 mm. Dosky nadstavby sú krížom armované, hrubé 150 mm a 180 mm s využitím uloženia na všetky nosné steny. Z dôvodu veľkej nepravidelnosti okenných a dverných otvorov a malej statickej výšky nadokenných častí sú aj pozdĺžne obvodové steny riešené ako železobetónové, monolitické, pôsobia teda ako celok siahajúci do výšky všetkých troch nadstavovaných podlaží. Všetky steny sú hrubé 200 mm. Na spodných podlažiach sú obvodové steny murované z tehál s hrúbkou 300 mm.
Sústava arkierov na železobetónových konzolách na fasáde vytvára nielen charakteristický architektonický vzhľad bytového domu, ale pomohla aj zaujímavo vyriešiť presvetlenie vnútorných priestorov bytov a tak splniť hygienické požiadavky na trvalé bývanie. Staršia rekonštruovaná časť objektu je zateplená polystyrénom, zateplenie nových podlaží zabezpečuje minerálna vlna.
| Dornyk Miesto: Ivanská cesta, Bratislava-Trnávka Investor: Ivanská cesta, s. r. o. Projektový manažér: IURIS INVEST, s. r. o. Hlavný zhotovovateľ: ise, s. r. o. Architekt: Architekti Šebo – Lichý, s. r. o. Začiatok výstavby: 10/2012 Ukončenie výstavby: 02/2014 Počet bytov: 103 bytov |
TEXT: Mária Nováková a ise, s. r. o.
Foto a dokumentácia: ise, s. r. o.
Článok bol uverejnený v časopise ASB.










