Zmeny v objekte stavebnej sústavy T16
V príspevku sa zameriame na postup pri posudzovaní stavebných zmien v objekte jedného z bratislavských variantov stavebnej sústavy T16 na sídlisku Krasňany v Bratislave. U správcu, majiteľa bytu, ani v známych projekčných strediskách sa nenašla projektová dokumentácia s podstatnejšími údajmi, preto sme zvolili cestu jednoduchých sond do omietok rozhodujúcich stavebných prvkov.
Stavebná sústava T16 sa aplikovala v celom bývalom Československu, preto môžu získané poznatky v prípade chýbajúcej technickej dokumentácie poslúžiť nielen projektantom, správcom bytových domov, ale aj stavebným úradom.Doterajšie negatívne vplyvy na posudzovanú časť stavby
Pred začatím stavebných úprav ktorejkoľvek časti objektu je nutné posúdiť nosnú konštrukciu predmetného objektu z hľadiska:
- negatívnych vplyvov prostredia,
- doterajších stavebných úprav,
- doterajších poškodení.
Negatívne vplyvy prostredia
Majiteľ posudzovaného bytu, v ktorom sa pripravuje odstránenie vyznačených priečok, ako ani správca objektu, nás neinformovali o žiadnych negatívnych vplyvoch prostredia v priebehu doterajšieho užívania stavby. Keďže sme ani vlastnou kontrolou, ani na základe vlastných poznatkov a iných údajov nezistili doterajšie negatívne vplyvy na nosné konštrukcie posudzovaného bytu, možno konštatovať, že v posudzovanej časti stavby nie sú doteraz badateľné poškodenia vyvolané výraznými negatívnymi vplyvmi prostredia. 
Doterajšie stavebné úpravy
Keďže majiteľ bytu nevedel o nijakých stavebných úpravách nosných prvkov, správca nás takisto o žiadnych neinformoval a pri našej vizuálnej prehliadke dňa 4. 9. 2008 sme v nadzemnej časti schodiskového priestoru a v posudzovanom byte nespozorovali nijaké stavebné úpravy nosných prvkov, skonštatovali sme, že do dňa vizuálnej prehliadky neboli zistené žiadne stavebné úpravy. 
Doterajšie poškodenia
Podobne sme postupovali aj pri skúmaní doterajších poškodení – pri vizuálnej prehliadke sme nezistili nijaké stavebné poškodenia nosných prvkov, viditeľné je však opotrebovanie omietky obvodových múrov. 
Vyhodnotenie doterajších negatívnych vplyvov na posudzovanú časť stavby
V posudzovanej časti stavby nie sú doteraz viditeľné poškodenia
- vyvolané negatívnymi vplyvmi prostredia,
- užívaním stavby,
- doterajšími stavebnými úpravami,
- ani doterajšími poškodeniami,
preto možno k pripravovaným stavebným úpravám pristupovať bez nutného zosilnenia pôvodných nosných a samonosných prvkov stavby.
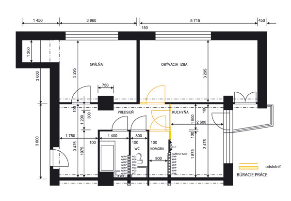
Pripravované stavebné zmeny v posudzovanej časti bytového domu
Pripravované stavebné zmeny sú lokalizované vo vnútornom priestore posudzovaného bytu na 7. NP. Ich účinky nezasahujú mimo priestor tohto bytu, preto predpokladáme, že posudzovaná časť stavby je totožná s jeho priestorom. Vlastník bytu pripravuje niekoľko stavebných úprav:
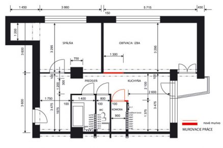
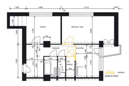
- odstránenie deliaceho stenového prvku v dĺžke asia 2,00 m medzi predsieňou a kuchyňou,
- odstránenie deliaceho stenového prvku v dĺžke asi 1,00 m medzi predsieňou a komorou,
- zväčšenie dverného otvoru, teda odstránene deliaceho stenového prvku v dĺžke asi 0,5 m medzi obývacou izbou a predsieňou,
- vytvorenie novej priečky s dverami medzi predsieňou a komorou.
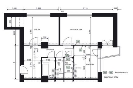
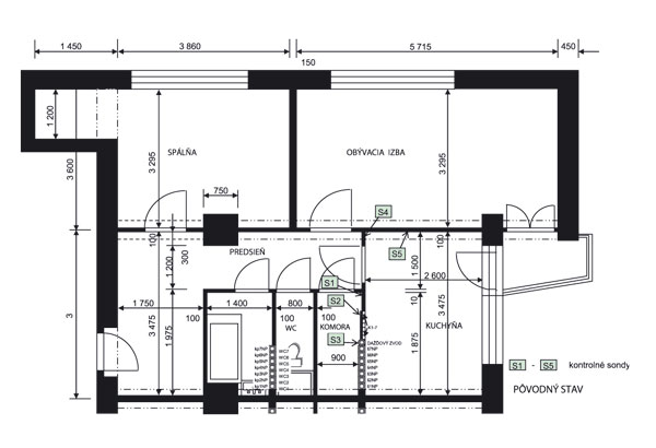
Keďže výkresová dokumentácia stavebnej sústavy objektu ani skladobný výkres aspoň niektorého podlažia nie sú k dispozícii, je potrebné vykonať prieskumné sondy do príslušných stavebných prvkov. Pomocou nich sa preukáže, či sú tieto deliace prvky časťou nosných stien alebo časťou deliacich nenosných priečok.
Kontrolné sondy
Kontrolná sonda 1

Kontrolná sonda 2
Sondou 2 sa preukázalo vyhotovenie prvku z tehlového muriva. Hrúbka muriva je väčšia ako hrúbka v mieste sondy 1, čo naznačuje že v tejto časti sú z druhej strany prvku pravdepodobne vložené vetracie prieduchy kuchýň. Táto časť muriva medzi komorou a kuchyňou by sa dala kvalifikovať ako deliaca, nenosná priečka, teda by sa dala odstrániť bez zasahovania do nosných prvkov objektu. Na základe vedľa zabudovaného pravdepodobne vetracieho potrubia do kuchýň bytov však treba upozorniť, že ju nemožno odstrániť bez narušenia vlastností bytu, ktoré predpokladal projektant. 
Kontrolná sonda 3
Sondou 3 sa preukázalo zabudovanie azbestocementového potrubia slúžiaceho pravdepodobne ako dažďový zvod strechy. Vedľa sú podľa podobných riešení stavebnej sústavy T16 zabudované pravdepodobne vetracie azbestocementové tvárnice hrúbky 150 mm pre komory. Na základe sondy treba upozorniť, že túto časť priečky medzi komorou a kuchyňou možno kvalifikovať ako deliacu, nenosnú priečku a mohla by sa odstrániť bez zasahovania do nosných prvkov objektu. Nemožno ju však odstrániť bez narušenia projektantom predpokladaných vlastností bytu. 
Kontrolná sonda 4

Kontrolná sonda 5
Kontrolná sonda 5 ukázala ukončenie výšky pozdĺžneho oceľobetónového nosníka v mieste radikálneho zníženia hrúbky steny a pokračujúce delenie kuchyne a obývacej izby priečkou z tehlového muriva hrúbky 100 mm, aké sa používalo a používa v bytových domoch len na deliace nenosné priečky. Túto časť priečky medzi komorou a kuchyňou možno kvalifikovať ako deliacu, nenosnú priečku a odstrániť sa môže bez zasahovania do nosných prvkov objektu. 
Posúdenie pripravovaných stavebných úprav
Pripravované stavebné práce – odstránenie častí deliacich tehlových priečok v posudzovanom byte – zachovávajú vonkajšie pôdorysné aj výškové ohraničenia stavby, preto ich možno podľa § 139 b ods. 5 stavebného zákona č. 50/1976 Z. z. podľa platných predpisov kvalifikovať ako stavebné úpravy. 

Pripravované stavebné úpravy znamenajú zníženie zvislého zaťaženia stropných dielcov nad 6. NP a zníženie zaťaženia oceľobetónových nosníkov. Dajú sa teda vykonať bez úpravy únosnosti niektorého nosného prvku. 
Byt, v ktorom sa pripravujú posudzované stavebné úpravy, je situovaný na najvyššom podlaží – 7. NP, preto odstránením časti nenosných deliacich murovaných priečok nemôžu v murive nadložených bytov vzniknúť nijaké trhliny.
Kontrolnými sondami sa potvrdila reálnosť pripravovaných stavebných úprav, ale nevylúčila sa možnosť vzniku horizontálnych vlasových trhlín medzi murivami priečok v byte na 6. NP a stropnými dielcami bytu nad 6. NP. Trhliny môžu vzniknúť menším zaťažením priečok v byte na 7. NP a následným znížením priehybu stropných dielcov bytu nad 6. NP. Tieto vlasové trhliny neznamenajú poškodenie nosnej konštrukcie stavby, sú len štandardnou reakciou na zníženie zaťaženia stropu nad 6. NP od priečok 7. NP.
Pôdorys – pôvodný stav
Pôdorys – búracie práce
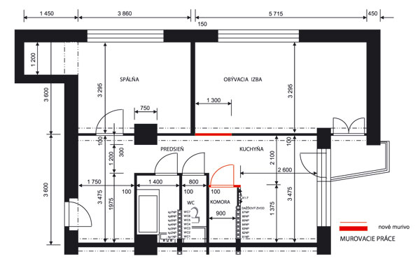
Pôdorys – murovacie práce
Záver posúdenia
Pripravované stavebné úpravy pri odbornej realizácii nespôsobia:
- ohrozenie záujmov spoločnosti,
- zmeny v prenose zaťaženia do základov stavby,
- zmeny vzhľadu objektu,
- zmeny spôsobu užívania posudzovanej časti budovy,
- nutnosť riešenia z hľadiska PPO,
- zmeny v trvalom a bezpečnom odolávaní stavbou zaťažením vyvolaným stavbou, jej užívaním a vonkajšími vplyvmi,
čo znamená, že  v posudzovanom byte môže odborná stavebná firma realizovať odstránenie vyznačených častí deliacich priečok a zabudovanie časti novej priečky. Keďže sme konštatovali priťaženie priečok stropnými dielcami posudzovaného bytu, vyvolané ich asi 40-ročným priehybom, odstraňovanie určeného priečkového muriva si vyžaduje odborný a opatrný postup. Pripravovaná stavebná zmena bude mať za následok vznik ťažkého stavebného odpadu asi 0,8 m3, treba sa preto pripraviť na jeho odstránenie.

V súčasnosti sa majitelia často orientujú na prestavby, úpravy, modernizácie bytov, zatepľovanie, nadstavovanie a riešenie nových striech v bytových domoch stavaných najmä v rámci hromadnej bytovej výstavby. Je to objektívny smer vyplývajúci hlavne zo stáleho narastania veku stavieb a opotrebovania jednotlivých stavebných prvkov. Samotná údržba už nestačí, je potrebné vymieňať a upravovať aj prvky, ktoré nie sú jednoducho prístupné, ktoré nie sú priamo viditeľné, prípadne ktoré už morálne zastarali. 
Pri takýchto stavebných úpravách všetci konštatujeme jednoznačnú potrebu odbornej projektovej dokumentácie konkrétnych objektov, pôdorysov, rezov, pohľadov, výkresov tvaru stropných konštrukcií, výkresov výstuže a výkresov spojov, stykov a detailov, ktoré umožňujú odborné stavebné práce.
Veľmi často sa u našich správcov a spoločenstiev vlastníkov bytov stretávame s chýbajúcou časťou alebo dokonca aj s chýbajúcou celou projektovou dokumentáciou, čo znamená problémy pri odbornej realizácii jednotlivých stavebných úprav a logické zvyšovanie ich nákladov. Objekt z nášho príspevku je jedým z tých, ktorého majitelia ani správca nemajú žiadne technické výkresy, len pôdorysné škice jednotlivých bytov s nedostatočným zachytením rozmerov. Pri riešení stavebných úprav je potrebné podstatne viac. Tento problém sa snažíme riešiť oživovaním chýbajúcej projektovej dokumentácie v Poradenskej kancelárii pre statické poruchy pôsobiacej pri Slovenskej komore stavebných inžinierov. Správcom a spoločenstvám vlastníkov bytov i jednotlivým vlastníkom Poradenská kancelária pre statické poruchy ponúka doteraz získané oživené výkresy architektúry a statiky bytových domov riešené v digitálnej forme, teda čitateľné i schopné tlače na štandardných počítačoch.
Odporúčame správcom, spoločenstvám, vlastníkom a projektantom, aby sa na Poradenskú kanceláriu obracali, keď sa pripravujú na stavebné úpravy akýchkoľvek objektov a v ktorýchkoľvek mestách, najmä ak im chýbajú niektoré stavebné výkresy. Možno im už budeme môcť niektoré poskytnúť.
Ing. Milan Čaprnda, Ing. Marián Dragúň
Foto: archív SKSI
Autori sú statikmi stavebných konštrukcií. Pracujú v Slovenskej komore stavebných inžinierov.
Článok bol uverejnený v magazíne Správa budov.
 
													










 
						



 
					 
					 
					 
					 
					 
					 
					 
					 
					 
					 
					 
					 
					 
					 
					 
					 
					 
					 
					 
								 
								 
								 
								 
								