Okenné konštrukcie a ich význam pri obnove bytového fondu
Moderná okenná konštrukcia musí spĺňať tak úžitkové a estetické požiadavky súčasnej doby, ako aj požiadavky spĺňajúce fyzikálno-technické normy: koeficient prestupu tepla, vzduchovú nepriezvučnosť, vodotesnosť a odolnosť pri zaťažení vetrom. Konečná kvalita okien a požadovaný efekt sa dosiahne iba pri zabezpečení kvalitnej montáže.
Základným pravidlom na riešenie obnovy bytového fondu, ktorý sa väčšinou realizoval v 50. až 80. rokoch, je zvýšenie úžitkovej hodnoty objektov a vytvorenie podmienok na predĺženie ich životnosti. Bytový fond vznikal v úplne odlišných ekonomických podmienkach, s iným postojom ku kvalite a normám. Väčšinou išlo o riešenie, ktoré malo urýchlene zabezpečiť dostatok bytov pre vtedajších užívateľov, a pritom bol obmedzený výber stavebných materiálov, technologických možností a financií. To sa výrazne podpísalo na stave týchto objektov dnes.Tieto domy však aj naďalej potrebujeme využívať na bývanie a nezostáva nám nič iné, ako ich uviesť do stavu, ktorý umožní nielen ich plnohodnotné užívanie, ale posunie aj kvalitu bývania na súčasné moderné štandardy. Pre splnenie tohto cieľa je dôležité, aby už samotné komponenty použité pri rekonštrukciách vyhovovali súčasným náročným technickým požiadavkám. Významnou mierou to platí aj pre okná, ktoré hlavne v oblasti ochrany tepla, môžu prispieť až k 30-percentnému zníženiu strát energií.
Životnosť a údržba

Výhodou plastových okien je hladký povrch rámovej konštrukcie s ľahko umývateľnými kontúrami, na ktorých sa neudržujú nečistoty a s jednoduchým a spoľahlivým spôsobom ovládania. V praxi sa osvedčili systémy s dvojitým tesnením, samozrejme, ak vyhovujú aj v technickej oblasti. Základnou estetickou požiadavkou pri pohľade na okná zvonku je pohľadová výška zloženia rámu a krídla. Tá by mala byť čo najužšia, pretože pôvodné drevené okná mali rámy pomerne úzke. Pritom sa nesmie zabudnúť na zateplenie, ktoré sa zvyčajne pri výmene okien robí a ktoré vždy sčasti rám okna prekrýva.
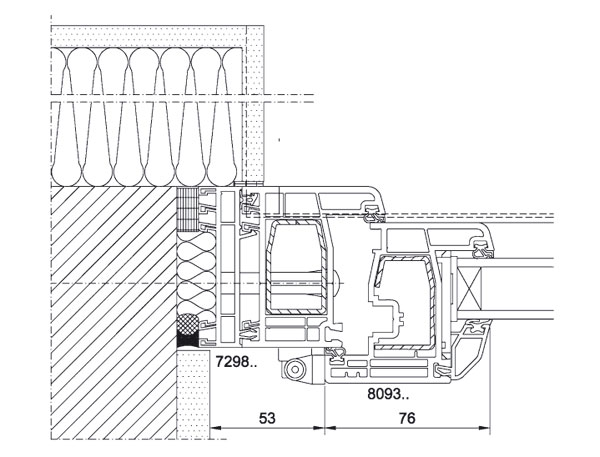
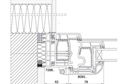
Pri zatepľovaní objektov treba často rozmer okien o niečo zmenšiť a potom je voľba pohľadovo úzkych rámov veľmi dôležitá. Na druhej strane stavebná situácia často vyžaduje opak, aby boli rámy z vnútornej strany, podobne ako pôvodné drevené, široké. Moderné okenné systémy dokážu túto požiadavku riešiť buď pomocou rozširovacích profilov, alebo spojením profilov s rozdielnou výškou do jedného okenného rámu.
Okrem toho v systémoch zvyčajne možno vyberať profily s rozličnou stavebnou hĺbkou. Skôr veľmi rozšírená stavebná hĺbka profilov okolo 60 mm sa už dnes nepoužíva, najmä pre horšie tepelnotechnické parametre. Štandardom je hĺbka 70 až 76 mm, ale postupne sa prechádza na hĺbku 80 až 90 mm.

Základom použitia systému pre bytové domy je okrem iného aj to, či systém umožňuje konštruovať okná v tej veľkosti, aká bola v bytových domoch použitá. Výrobca okien má väčšinou od svojich dodávateľov k dispozícii okrem tzv. ľahkých krídel aj profily stredné či profily pre tzv. ťažké krídla, všetky s možnosťou potrebného vystuženia. Statika okien je založená na momente zotrvačnosti oceľových výstuží v hlavnej komore profilu. 
Dodávateľ systému predpisuje maximálne veľkosti krídel, preto je potrebné zvoliť taký typ krídla a výstuže, aby umožňoval požadovaný rozmer realizovať. Rovnako výrobca okien musí prihliadať na požiadavky statiky pre spoje a hlavne nesmie podceniť tepelnú dilatáciu profilov. Tento jav je dôležité podchytiť predovšetkým pri zostavách alebo stenách. Tepelná rozťažnosť bieleho PVC v rozsahu teplôt, ktorým je okno vystavené, je pomerne veľká, až 1,6 mm/m, a tak pri niekoľkých spojených oknách, napríklad pri balkónovej zostave, musí dilatačné spojenie túto rozťažnosť umožniť, inak hrozí deformácia.
Zatiaľ čo parametre uvádzané v predchádzajúcej časti vychádzali z osobného posudzovania úžitkovej a estetickej úrovne okien, tak nasledujúce parametre sú dané normami a v každom prípade musia byť dodržané.
|  |  | 
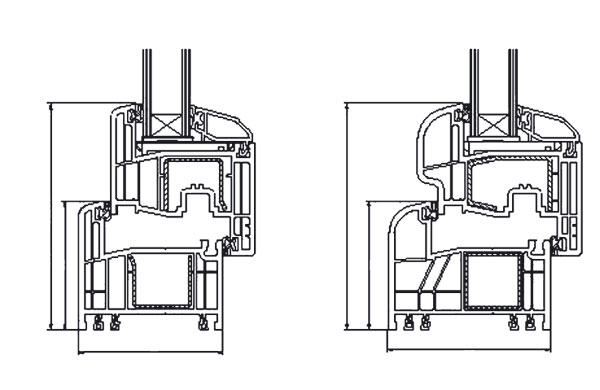
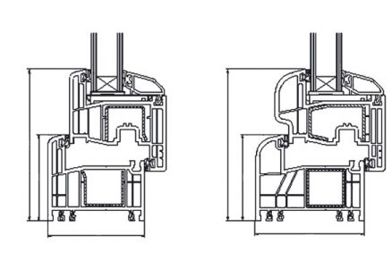
| Spoje s riešením dilatácie bez statického vystuženia a s ním | |
Stavebnofyzikálne požiadavky
Ide predovšetkým o tepelné a zvukovoizolačné vlastnosti okien, vodotesnosť, odolnosť proti namáhaniu vetrom a mechanické vlastnosti krídel.
Tepelnoizolačné vlastnosti okien sú dané normou STN 73 0540, ktorá požaduje, aby súčasné okná mali koeficient prestupu tepla Uw menší ako 1,7 W/(m2 . K); odporúčaná hodnota je Uw = 1,2 W/(m2 . K). Na dosiahnutie týchto hodnôt musí mať profilový systém aspoň 5 komôr a stavebnú hĺbku väčšiu ako 70 mm.
Súčasne je vhodné použiť zasklenie s dobrým koeficientom prestupu tepla (Ug). Dnes sa najčastejšie používa Ug = 1,1 W/(m2 . K) a tzv. teplý rámik, t. j. spojovací rámik medzi sklami z iného materiálu, ako je tepelne veľmi vodivý hliník, napríklad plast, nehrdzavejúca oceľ a podobne. Takto konštruované okno má koeficient prestupu tepla približne Uw = 1,2 W/(m2 . K) podľa veľkosti okna, pomeru skla a plochy profilov. Dnes však v okenných systémoch nie je problém použiť aj trojsklá s Ug ≤ 0,8 W/(m2 . K) a potom možno očakávať celkové Uw < 0,92 W/(m2 . K).
Pri bežnom dvojskle s Ug = 1,1 W/(m2 . K) možno pri bytovom dome napríklad s tridsiatimi bytovými jednotkami s celkovou plochou zasklenia asi 450 m2 dosiahnuť ročné zníženie strát tepla oknami, napríklad v miernej oblasti obce Skalica až o 68 823 kWh, t. j. približne 3 883,69 eur (117 000 Sk) v cene plynu, alebo v oblasti Kežmarku asi 91 690 kWh, čo je až 5 178 eur (156 000 Sk).
Výpočet energetických a ekonomických úspor
Zvukovoizolačné vlastnosti – výrazným efektom výmeny plastových okien je tiež zlepšenie zvukovoizolačných vlastností. Opísané okenné konštrukcie okrem tepelnoizolačných vlastností podstatne prispievajú aj k zníženiu hladiny vonkajšieho hluku. Štandardne sa dosahuje koeficient vzduchovej nepriezvučnosti 32 až 34 dB, čo výrazne prispieva ku komfortu bývania.
Vodotesnosť je ďalšou dôležitou vlastnosťou okien, ktorá ovplyvňuje ich použiteľnosť z hľadiska inštalovanej výšky. V zásade by mali dosahovať minimálne triedu 9A (600 Pa). Vo vyšších polohách by mala byť aj vyššia. 
Odolnosť proti zaťaženiu vetrom je parameter založený na podobných vlastnostiach ako v prípade vodotesnosti. Výsledok je daný kvalitou konštrukcie a kvalitou tesnenia. 

Takéto požiadavky už nemôže spĺňať samotné okno, ale iba okno s určitým dodatočným zariadením alebo celkom iný samostatný vetrací systém. Skutočné problémy nastanú v prípade, ak v rámci zatepľovania dôjde k zrušeniu vetracích otvorov s veľkosťou 7 × 10 cm, ktoré boli pôvodne v komorách bytov a slúžili okrem iného na vetranie a prívod vzduchu pre prípadné plynové spotrebiče. Infiltráciou vzduchu štrbinou medzi rámom a krídlom okna nie je možné takýto prietok vzduchu nahradiť. Dodávateľ okien môže zvýšiť infiltráciu len úpravou tesnenia alebo použitím vetracích jednotiek. Odberové plynové zariadenia v budovách musia mať v miestnosti so spotrebičmi typu A zaistenú minimálne jednonásobnú výmenu vzduchu, a to aj pri zatvorených oknách a dverách. Preto sa musí vetranie riešiť iným spôsobom ako oknami.
Komplexnosť
Na dosiahnutie optimálneho výsledku je dôležité, aby okná komplexne spĺňali nielen všetky uvedené požiadavky, ale aby boli aj správne namontované. Chybne zhotovená montáž môže efekt z novo inštalovaných okien čiastočne alebo úplne znehodnotiť.
V súvislosti s montážou je vždy výhodnejšie, ak sa výmena okien realizuje súčasne so zateplením. Samotná výmena okien bez zateplenia môže priniesť len čiastočný úžitok a je spojená s rizikom nesprávneho doriešenia montážnej štrbiny a napojenia, rovnako ako opačný postup realizácie, najskôr zateplenie a potom výmena okien. Stavebné napojenie a riešenie montážnej štrbiny sa nesmie podceniť.
Záver
Na dosiahnutie optimálneho výsledku pri obnove bytového fondu je dôležité skĺbenie použitia moderných stavebných materiálov, ako aj ich aplikácia v súlade s požiadavkami súčasných stavebných noriem a predpisov. 
Ing. Vladimír Horák, Dipl. Designer Michal Longauer
Foto: IQ Service, s. r. o., GEALAN
Vladimír Horák je manažérom technickej podpory v spoločnosti IQ Service, s. r. o., v Českej republike a Michal Longauer má na starosti zákaznícku podporu IQ Service, s. r. o., v Slovenskej republike.
Článok bol uverejnený v magazíne Správa budov.
 
													







 
						



 
					 
					 
					 
					 
					 
					 
					 
					 
					 
					 
					 
					 
					 
					 
					 
					 
					 
					 
					 
								 
								 
								 
								 
								