Estetizácia spoločných priestorov panelových bytových domov
K anonymnému vzhľadu mnohých panelových bytových domov prispieva aj ich monotónne architektonické stvárnenie na úrovni parteru, často s minimálnym plastickým členením, bez charakteristických identifikačných znakov. Uniformita parteru bytových domov neprináša možnosť identifikácie užívateľov s obytným prostredím – miestom ich bydliska. Na kvalitu prostredia v parteri domu má z psychologického hľadiska vplyv súbor činiteľov: estetická kvalita a úžitková hodnota architektonického riešenia, použité materiály a povrchy, proporcie, farebnosť a osvetlenie.
Význam kontaktných zón parteru panelových bytových domov bol a aj v súčasnosti je stále podceňovaný. Spoločenský kontakt je obmedzený na priestor domových vstupov a neprívetivý schodiskový priestor. Súčasťou architektonickej obnovy a humanizácie bytových domov by sa preto mal stať aj komplexný návrh zvýšenia úrovne priestorov na úrovni parteru. Pocit domova, identifikácia obyvateľov s miestom ich bydliska a zároveň reprezentatívnosť priestorov sú súčasťou komplexu činiteľov ovplyvniteľných kvalitou architektonického návrhu obnovy parteru bytového domu.Prístup k obnove panelových domov je v Európe rozdielny. Vo Francúzsku sa výrazne prihliada na sociologickú stránku regenerácie – napríklad vložením nových funkcií do parteru (vytvorením aktivít na zlepšenie sociálneho života obyvateľov na sídliskách), v Dánsku sa pri obnove prihliada najmä na šetrenie energiou. Pre nemecké mestá je zase pri obnove bytových domov typická výmena pôvodných balkónov a lodžií za nové progresívne konštrukcie, staticky nezávislé od samotného domu [4], prípadne radikálne odstránenie najvyšších podlaží budov s ohľadom na adekvátnu mierku obytného prostredia.
Súčasná obnova panelových bytových domov u nás vo veľkej miere spočíva najmä v úprave poddimenzovaných tepelnotechnických vlastností obvodových stien a následnej farebnej štylizácii fasád, často bez koncepčného riešenia urbanistického prostredia ako celku. S ohľadom na situovanie bytových domov v rôznych polohách sídla vznikali viaceré možnosti architektonického tvarovania ich parteru: od jednoúrovňových monofunkčných zón (prízemie bytových domov venované domovej vybavenosti a komunikáciám) cez „obchodné uličky“ až po oddelenie motorovej (parkovanie) a pešej zóny tak, aby boli vo dvoch horizontálnych rovinách nad sebou.
Výklady jednotlivých obchodov sú často komponované do stavebných otvorov vzniknutých odstránením čelnej nenosnej steny, majú nejednotné konštrukcie a dizajn vstupov a nadpisov. Kompaktnosť a prívetivosť parteru (obr. 1) rušia aj dodatočne aplikované nápisy na stenách, rôzne plastické reklamné symboly či nápisy vysunuté kolmo na priečelie nad chodníkom.
V monofunkčných budovách obnova na úrovni parteru často spočíva len vo výmene pôvodných okenných konštrukcií za nové plastové a v plošnom farebnom riešení fasády.
Medzi činitele ovplyvňujúce architektonickú tvorbu pri obnove priestorov na úrovni parteru panelového bytového domu patrí aj:
- pôsobenie prostredia na psychiku (negatíva ako monotónnosť, neosobnosť, funkčne nedostatočne vybavený priestor, neatraktívnosť môžu viesť až k deprivácii alebo vandalizmu); usporiadanie a dispozičné členenie spoločných priestorov môže ovplyvniť správanie užívateľov a ich vzťah k týmto priestorom;
- sociálny pocit domova (vhodná mierka priestorov, eliminácia neosobných priestorov v parteri, potreba sociálnych kontaktov rešpektovaná v návrhu);
- možnosť sociálnej interakcie (príliš veľa: psychické preťaženie; nedostatok: môže mať účinok na spomalený vývoj detí); napríklad vytvoriť príležitosti na hru detí, záujmové činnosti, športové či rekreačné činnosti;
- kontakt s prírodou (priamo prístupné prírodné prvky, zeleň aj na viacúrovňovom parteri); v spoločných priestoroch uprednostňovať menej náročné druhy zelene, odolné druhy – rešpektovať rôzne ročné obdobia) často tzv. prenosná zeleň – využívajú sa nádoby s rôznym dizajnom, v súčasnosti aj zastarané druhy kvetináčov (napríklad betónové kvetináče – riešenie: nové koncepcie využitia betónu s progresívnou povrchovou úpravou, kovu a vodeodolných drevín); zeleň neškodná pre zdravie deti;
- bezpečnosť a pohodlie (bezbariérovosť v spoločných priestoroch, krátke dochádzkové vzdialenosti); ľahká orientácia v priestore (jednotné vizuálne informácie: orientačné tabule, tabuľky s menami, piktogramy);
- estetické pôsobenie prostredia (harmonické pôsobenie farieb, svetla a tvarov; pôsobenie výtvarného diela v architektúre – najmä trvalého charakteru); emocionálne pôsobenie; súlad výtvarného diela s obytným prostredím aj s ohľadom na mierku a štýl návrhu (abstraktné kompozície);
- možnosť participácie obyvateľov na tvorbe priestorov (v zahraničí je bežná spolupráca projektantov s užívateľmi ešte pred začatím projektových úprav).
Dispozično-prevádzkové riešenie
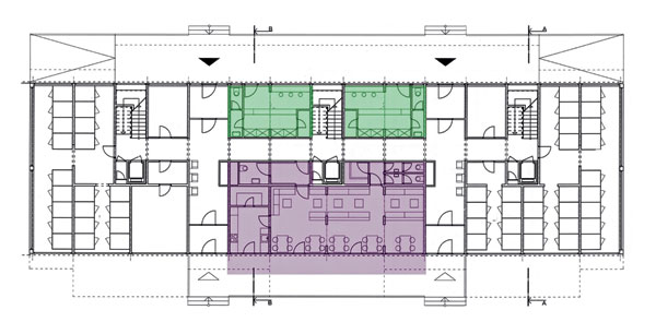
Dispozično-prevádzkové riešenie panelového bytového domu na úrovni parteru v minulosti záviselo od konkrétnych typových riešení danej stavebnej sústavy. Často sa na prízemí situovali okrem vstupných priestorov len základné priestory domového vybavenia – miestnosti na uloženie bicyklov a kočíkov a komory na uskladňovanie predmetov. V súčasnosti s ohľadom na nároky a požiadavky obyvateľov a určité možnosti úpravy obvodových a nosných konštrukcií panelových bytových domov (vo väčšine sústav sa obvodový plášť nepodieľa na statickom spolupôsobení s nosnou konštrukciou) môže prispieť k zvýšeniu kvality bývania integrácia nových funkcií. Priestory na voľnočasové aktivity vytvárajú možnosti spoločenských kontaktov a pocit spolupatričnosti obyvateľov. Klubovne, herne detí, alternatívne príležitosti na relax a šport (napríklad sauna, stolný tenis, fitnes), vytvorené zmenou usporiadania a dispozičného členenia priestorov na úrovni parteru, môžu pozitívne ovplyvniť správanie užívateľov a ich vzťah k spoločným priestorom (obr. 2).
Obr. 2 Návrh pôdorysu prízemia panelového bytového domu po obnove (autori: A. Bacová, B. Puškár, 2006). Integrácia nových funkcií: dve obchodné prevádzky a klub seniorov so zasklenými fasádami [5]
Pri adícii miestností na voľnočasové aktivity, ako aj drobných obchodných prevádzok a služieb na úrovni prízemia panelového bytového domu sa veľmi málo využíva možnosť prepojenia týchto priestorov s priľahlým exteriérom či s priamo dostupnými prírodnými prvkami. V praxi možno nájsť značné množstvo architektonicky nedôsledných realizácii, pričom obnova parteru panelového bytového domu sa chápe len ako výmena okenných konštrukcii v pôvodných otvoroch. Nezohľadňuje sa skutočnosť, že efektívne využitie denného osvetlenia redukuje náklady na doplňujúce umelé osvetlenie, väčšie plochy zasklenia zároveň môžu prispieť k atraktivite často neosobných interiérových priestorov parteru domu (obr. 3). Zasklenie s integrovanými vstupnými dverami zväčší plochy aktivít o obytný exteriér v letných mesiacoch. Pri navrhovaní nových zasklených stien je nevyhnutné reagovať na orientáciu budovy z hľadiska svetových strán. V letnom období treba počítať s aplikáciou slnečných clôn na oslnené fasády parteru, čo môže architektonicky výrazne ovplyvniť celkový vzhľad bytového domu.
Obr. 3 Zasklená fasáda na úrovni parteru renovovaného panelového bytového domu v Berlíne [6]
Bezpečnosť a pohodlie
Bezpečnosť a pohodlie obyvateľov bytového domu patria medzi najdôležitejšie ukazovatele spokojnosti užívateľov s miestom ich bydliska. Participácia obyvateľov na obnove bytových domov formou prezentácie ich názorov a požiadaviek by sa mala stať súčasťou plánovania už vo fáze projektovej prípravy.
Bezpečnosť obyvateľov ako nevyhnutnú podmienku plánovania obnovy panelových bytových domov, snahu o elimináciu osobných útokov, vandalizmu a sociálnych konfliktov možno zabezpečiť rôznymi formami, najmä:
- bezpečnostným zaitením technologického charakteru: zavádzanie bezpečnostných zariadení a systémov v rámci technického zabezpečenia budov (kontrolované personalizované vstupy do priestorov – napríklad dotykový elektronický kľúč s možnou identifikáciu jednotlivých užívateľov a regulovanou možnosťou pohybu v spoločných priestoroch), zabezpečenie kvalitného osvetlenia vonkajších a spoločných vnútorných priestorov, aplikácia kvalitných protipožiarnych systémov a alarmov;
- vytvorením možností sebarealizácie obyvateľov bytového domu (proces socializácie);
- stavebno-technickým riešením budovy (dlhé chodby a schodiská bez denného osvetlenia patria k najvýraznejším negatívnym determinantom socializácie a bezpečnosti v bytovom dome; podľa výskumnej štúdie Browna a Devlinovej [3] počet ubytovaných priamo úmerne súvisí so zvyšujúcim sa rizikom vandalizmu: v menších budovách je táto hrozba menšia).
V zahraničí sa dajú nájsť mnohé príklady výmeny plných častí obvodových konštrukcií za zasklené aj na úrovni priestorov vstupných hál a zvlášť schodísk, kde pozitívum využitia denného svetla a oživenia monotónnej prefabrikovanej fasády domu súčasne preukázateľne prináša obyvateľom viac bezpečnosti (obr. 4).
Obr. 4 Dodatočné zasklenie spoločných priestorov (vstupných hál, schodísk) počas obnovy bytového domu [11]
Vo všetkých spoločných priestoroch bytového domu – nielen vo vstupných halách a na schodiskách, ale aj na ostatných zhromažďovacích plochách a hlavných peších ťahoch v interiéri a exteriéri domu – by sa mali s ohľadom na bezpečnosť a pohodlie aplikovať trvácne materiály, nešmykľavé povrchy, ktoré sa ľahko udržiavajú. Ideálne podlahy v spoločných priestoroch sa dajú ľahko čistiť a sú z praktického materiálu bez škár [10]. Do menších miestností sa odporúčajú svetlé odtiene podlahovín, aby sa farebne presvetlili. Podlahová plocha väčších priestorov môže kombinovať aj rôzne farebné odtiene a vzory.
Estetické pôsobenie
Estetické pôsobenie architektonických prvkov v spoločných priestoroch bytového domu môže výrazne prispieť k emocionálnemu vnímaniu miesta bydliska obyvateľmi.
Humanizácia prostredia sa pri celkovej obnove domu odráža aj v harmonickom pôsobení farieb, svetla a tvarov, prípadne výtvarného diela (diela najmä s trvalým charakterom, často s abstraktnou kompozíciou v súlade s obytným prostredím) s ohľadom na mierku a štýl celého objektu.
Vhodne zvolená kompozícia farieb a materiálov exteriérových povrchov stien môže výrazne výtvarne ovplyvniť pocitové vnímanie priestoru: tmavšie farby na úrovni parteru môžu celú budovu opticky odľahčiť. Vhodný výber farby v parteri formou náterov, aplikácie farebných obkladov a rôznych odtieňov okenných aj dverných rámov je ovplyvnený pôsobením tvaru samotného bytového domu, ale aj jeho najbližším okolím. Z dôvodu vyšších nákladov je obklady vhodné používať najmä na úrovni parteru (kde môžu chrániť exponované steny vstupných a komunikačných priestorov) alebo najvyššieho podlažia.
Architektonické pôsobenie parteru pri obnove panelového bytového domu môže výrazne ovplyvniť aj aplikácia prvkov drobnej architektúry ako napríklad nové predstavené steny závetria, vyrovnávacie schodiská a rampy podriadené súčasným požiadavkám bezbariérového navrhovania, lavičky či prírodné prvky v kvetináčoch.
Pôvodné, príliš utilitárne vstupy do domov (s rozličnou formou: závetrie so strešnou doskou z betónu a stenovým krycím panelom v čelnej pozícii, predsadený vstup, predsadený vstup s priestorovou markízou, predsadený vstup s oblúkovou markízou prekrývajúcou predsadené vyrovnávacie schodisko) v súčasnosti nahrádzajú ľahké minimalistické konštrukcie markíz či závetria tenkých stenových sendvičových konštrukcií kombinované so zasklenými stenami (obr. 5).
S ohľadom na identifikačnú, ale aj reprezentatívnu funkciu vstupného portálu domu je nevyhnutné prihliadať na jeho architektonické riešenie, vyhnúť sa násilnej modernizácii – nesúladu s architektúrou celého bytového domu (napríklad oblúkové prístrešky nad vstupom predsadeného zádveria).
Obr. 5 Predstavené steny závetria chránia pred poveternostnými vplyvmi a zároveň zvýrazňujú orientačný význam hlavného vstupu. [8]
Kritériá bezbariérovosti
V exponovanom prostredí parteru by sa malo dbať na kritériá bezbariérovosti a pohodlia a ľahkú orientáciu v priestore (vizuálne informácie: orientačné tabule, tabuľky s menami, piktogramy, plagáty s informáciami). Nevyhnutnou podmienkou sociálnej integrácie osôb so zdravotným postihnutím a starších osôb je tvorba bývania v bezbariérovom prostredí, ktoré by sa malo stať súčasťou navrhovania aj pri obnove panelových bytových domov. Všetky spoločné priestory bytového domu (kočikárne, skladovacie priestory, spoločenské a relaxačné priestory) treba sprístupniť všetkým jeho obyvateľom. Ak sa nedá zabezpečiť vstup do obytnej budovy na úrovni komunikácie, musí sa vyrovnanie riešiť rampou, zvislou plošinou alebo exteriérovým výťahom. Na prekonanie malých výškových rozdielov na úrovni parteru (do 450 mm) sa môže použiť rampa. V každom priestore, v ktorom sa vykonáva nejaká činnosť, a v komunikačných priestoroch (napríklad zádverie, priestor pred výťahmi), ak to nosný konštrukčný systém umožňuje, sa žiada zabezpečiť voľný manipulačný priestor s priemerom 1 500 mm. Minimálny rozmer výťahovej kabíny pri dodatočnej debarierizácii – počas prestavby bytového domu, je 1 400 × 1 100 mm [10], avšak rozmerovo väčšie výťahy sú vhodnejšie, lebo umožňujú ľahšie sťahovať nábytok či prepravovať choré osoby.
Pri mnohých realizáciách obnovy budov najmä v zahraničí sa k pôvodnej budove pristavili zasklené objemy výťahových šácht prístupných aj z exteriéru (obr. 6).
Aj priestory doplnkových služieb situovaných v parteri bytového domu by mali byť bezbariérovo prístupné (napríklad kaderníctva, predajne, kaviarne).
Obr. 6 Dobudované zasklené výťahové šachty prístupné priamo z exteriéru [12]
Záver
Revitalizácia obytného prostredia panelových sídlisk je špecifickým problémom architektonického navrhovania nielen u nás. Modernizácia a skvalitnenie bytového fondu sa však nemôže realizovať len s ohľadom na technickú stránku. Mimoriadne dôležité je sledovať humanizačný aspekt tvorby – vytvoriť inšpiratívne, esteticky príťažlivé prostredie na život obyvateľov všetkých vekových kategórii.
TEXT: Ing. arch. Edita Vráblová, PhD.
obrázky a foto: archív autorky, použitá literatúra
Ing. arch. Edita Vráblová, PhD., pôsobí v Ústave architektúry obytných budov Fakulty architektúry STU v Bratislave.
Literatúra a zdroje obrázkov
1. Bacová, A. a kol.: Bytové domy na Slovensku. Bratislava: Eurostav, 2007.
2. Brath, J.: Urbanistický parter. Bratislava: STU, 1998.
3. Brown, G. – Devlin, A.: Vandalism: Environmental and social factors. Connecticut, 2003. In: Journal of College Student Development, Vol. 44, 2003, N. 4, s. 502 – 516.
4. Gattermayerová, H. – Karas, J.: Skutečný stav nosné konstrukce panelových budov a možnosti jejího využití. In: Stavba, 2000, č. 5, s. 47 – 51.
5. Kapeller, V.: Plattenbausiedlungen: Erneuerung des baukulturellen Erbes in Wien und Bratislava. Stuttgart: Fraunhofer IRB Verlag, 2009.
6. Müller, W.: Vom Plattenbau zum Öko-Haus. Focus, 2007. < http://www.focus.de/immobilien/energiesparen/energiesparen_aid_50409>, september 2011.
7. Samová, M. a kol.: Tvorba bezbariérového prostredia. Bratislava: Eurostav, 2008.
8. Ungers, O. M.: Märkisches Viertel. DAHM Architekten + Ingenieure, 2008. http://reskinningawards.com/winners/single/dahm-arch.-gesobau-ag, september 2011.
9. Vyhláška MZ SR č. 259/2008 Z. z. o podrobnostiach o požiadavkách na vnútorné prostredie budov a o minimálnych požiadavkách na byty nižšieho štandardu a na ubytovacie zariadenia.
10. Vyhláška MŽP SR č. 532/2002 Z. z., ktorou sa ustanovujú podrobnosti o všeobecných technických požiadavkách na výstavbu a o všeobecných technických požiadavkách na stavby užívané osobami s obmedzenou schopnosťou pohybu a orientácie.
11. Umbau Hochhaus Marschner Straße 15 – 27, Dresden (August 2011).
12. Barrierefreie Aufzugsnachrüstung. Agora, 2011. (September 2011). http://agoraplus.de/projekte/prenzlau-barrierefreie-aufzugsnachruestung
Článok bol uverejnený v časopise Stavebné materiály.
















