Detail osadenia okna v staršej panelovej výstavbe
Empirickou zásadou konštrukčnej tvorby stykov v detaile osadenia okien v starej panelovej výstavbe je skutočnosť, že z hľadiska hydrodynamiky išlo o styk s jedným štádiom tesnenia – tmel alebo tmel a tesniaci profil z mikroporéznej gumy. Kotviace prvky detailu osadenia okna neboli schopné vyvinúť požadovaný prítlak na gumenú vetrovú prekážku styku. Vznikali tak masívne tepelné mosty, ktoré umožňovali nielen únik tepla, ale zvyšovali aj riziko vzniku plesní a kondenzácie vodnej pary po obvode okna.
Umiestnenie okna v obvodovej stene do strednej alebo ešte lepšie vnútornej zóny homogénnej jednovrstvovej panelovej obvodovej steny bolo z hľadiska priaznivého vplyvu na tepelný tok z vykurovaného interiéru do chladného exteriéru – a teda aj na priebeh vnútorných povrchových teplôt – správne. Podobne aj umiestnenie okna do roviny tepelnej izolácie pri sendvičových paneloch [1], [2], [3]. Použitie konopných povrazcov ako tepelnej izolácie v strednej zóne styku okna s obvodovou stenou bolo však nevhodné a málo účinné. Konopné povrazce spôsobili vo výplni detailu v stykoch okna s ostením (obr. 1, 2) porušenie tepelno-technickej celistvosti obvodovej steny.Napriek tomu, že dodatočné vyplnenie stykovej škáry okna a steny modernou tepelno-izolačnou penou nie je náhradou vetrovej ani dažďovej prekážky z exteriérovej strany, tento materiál využíva popri izolovaní detailu veľa realizačných firiem. Vyskytli sa aj prípady, keď tepelnoizolačné peny mali plniť funkciu kotvenia otvorovej konštrukcie, čo je absolútne neprípustné. Pri prieniku vody z exteriéru (náporový dážď) alebo vlhkosti z vnútorného prostredia (kondenzát v detaile) stráca tepelnoizolačná pena svoje izolačné vlastnosti aj pri relatívne nízkej nasiakavosti. Degradáciu jej vlastností spôsobuje aj jej vystavenie slnečnému žiareniu. Postihnutý materiál peny má výraznú oranžovú až hnedo-oranžovú farbu, je sypký a aj pri jemnom dotyku sa drobí na prach.
![]() |
![]() |
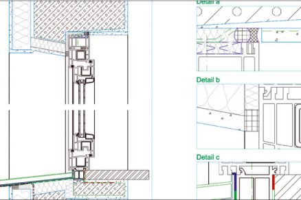
| Obr. 1: Vetrovú aj dažďovú prekážku styku predstavuje tmel 1 – výplňový povrazec, 2 – styk vonkajšej omietky a rámu |
Obr. 2 Vetrovú aj dažďovú prekážku styku predstavuje tmel a tesniaci profil z mikroporéznej gumy 1 – výplňový povrazec, 2 – oceľový uholník, 3 – trvalo pružný tmel, 4 – gumený tesniaci pás, 5 – prekryt |
Vnútorná povrchová teplota a kondenzácia vodnej pary
Vzduch dokáže pri určitej teplote absorbovať len ohraničené množstvo vody – teplý vzduch viac, studený menej. Pri teplote 20 °C a pri 100-percentnej relatívnej vlhkosti obsahuje vzduch 17,3 g vody na m3. Ak by objem vody stúpol nad túto hranicu, stúpla by aj relatívna vlhkosť vzduchu nad 100 percent, čo je viac ako môže vzduch prijať. Vlhkosť by sa zmenila na vodu, ktorá by sa vyzrážala na chladnom povrchu. Podobný efekt vidíme na chladných obkladoch po rannom sprchovaní horúcou vodou. Pri bežnom 50-percentnom nasýtení vnútorného vzduchu vodnou parou je kritická povrchová teplota na vznik plesní 12,6 °C zvýšená o bezpečnostnú prirážku 0,5 °C (v závislosti od typu vykurovania) na 13,1 °C. Táto vyššia hodnota bola stanovená pri 80-percentnom nasýtení vnútorného vzduchu v blízkosti chladných povrchov, pretože výskumom sa zistilo, že spóry plesní prežívajú už pri týchto hodnotách a môžu zamoriť vnútorné prostredie bez toho, aby si užívateľ vizuálne čokoľvek všimol. Samotná kondenzácia začína pri poklese teploty priľahlých vnútorných povrchov pod hodnotu 9,3 °C.
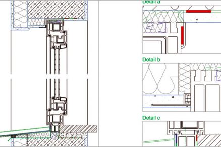
Obr. 3: Panelový systém P 1.15. – pohľad na detail osadenia. Šípka ukazuje na ponechanie pôvodného osadzovacieho oceľového L-profilu pre staré drevené okno. Uholník vytvára absolútne neprípustný tepelný most.
Vnútorná povrchová teplota okolitých konštrukcií okna je teda úzko spätá s hygienickým kritériom a prevenciou pred vznikom plesní. Pri okenných konštrukciách sú najviac postihnuté oblasti ostenia a nadokenného prekladu. Je to spôsobene tým, že v mieste osadenia okna nevznikajú len materiálové tepelné mosty (betónové nadokenné preklady s vyššou tepelnou vodivosťou pri obvodových stenách z kusových stavív), ale samotné napojenie okna a ukončenie obvodovej steny vytvára aj tzv. geometrický tepelný most. Z tohto hľadiska je preto výhodnejšie, ak:
- obvodová stena, obvodový panel má geometriu tzv. vonkajšieho zalomeného ostenia (pri rovných osteniach možno geometrické zalomenie vytvoriť fasádnym izolačným systémom alebo okno osadiť k vonkajšej hrane obvodovej steny a fasádnou izoláciou prekryť časti lícnych plôch okenných rámov). Takéto ostenie vytvára aj lepšie podmienky na chránenie osadzovacej škáry izolačnými materiálmi proti vetru a náporovému dažďu.
- konštrukcia okna má tzv. väčšiu stavebnú hĺbku, teda okenný rám je širší a geometrický skok od hrúbky steny k hrúbke rámu je menší.
Je úlohou projektanta a stavebného fyzika, aby už v projektovej fáze novostavby alebo návrhu sanácie okenných otvorov navrhli optimálne riešenie na detail osadenia okien a eliminovali tepelné mosty na minimum.
Najnižšia vnútorná povrchová teplota θsi sa zvyčajne určí výpočtom teplotného poľa pre kritické detaily konštrukcie, ktorými sú tepelné mosty, podľa STN EN ISO 10211 – 1 vhodnými špeciálnymi softvérmi. Na posúdenie sa uvažuje výpočtová teplota vonkajšieho vzduchu podľa STN 73 0540 – 3. Táto požiadavka sa nevzťahuje na zasklené výplne otvorových konštrukcií, teda kondenzáciu vodnej pary na zasklení [4], [7].
Vykurovanie vykurovacími telesami pod oknami vonkajších stien zvyšuje teplotu vnútorného vzduchu v blízkosti otvorových výplní, a tým aj vnútornú povrchovú teplotu výplne otvoru a znižuje relatívnu vlhkosť vnútorného vzduchu v blízkosti otvorovej konštrukcie, čím kladne prispieva k zabráneniu kondenzácie vodných pár.
Poruchy
Aby nedošlo k prieniku nasýtenej vodnej pary do škáry detailu osadenia, platí pravidlo: „Z vonku tesné, ako je len nutné, z vnútra tesné, ako je len možné“ [2]. Toto pravidlo sa jednoducho dosiahne modernými tesniacimi materiálmi (komprimované tesniace pásky, izolačné fólie), pričom treba mať na pamäti, že vonkajšia škára musí byť paropriepustná a vnútorná parotesná. Ak predsa dôjde k prieniku vodnej pary do škáry osadenia, para musí mať možnosť uniknúť vonkajšou paropriepustnou izoláciou do exteriéru. Ak nie je tepelná izolácia ostenia a nadpražia po celom obvode rámu okennej konštrukcie, pokles teploty vo vnútornej zóne styku okna s obvodovou stenou pod teplotu rosného bodu vedie ku kondenzácii. Následkom je vlhnutie vnútornej omietky, vznik fľakov, jej odúvanie, olamovanie, opadávanie. Bežný užívateľ pri zistení kvapiek vody na vnútornej strane väčšinou utesní práve vonkajšiu škáru v domnienke, že došlo k prieniku dažďa. Tým však situáciu iba zhorší, pretože vodné pary sa ešte intenzívnejšie hromadia v detaile osadenia [2].
Podobná situácia môže vzniknúť v detaile parapetu. Treba dbať na dostatočné tepelné zaizolovanie exteriérovej strany parapetu pod oplechovaním a zároveň zamedziť prieniku vodnej pary do detailu z interiéru. Nerešpektovanie zásad má podobný následok ako uvedený príklad. Oblasti rohov exteriérových strán parapetov musia byť utesnené hydroizoláciou v tvare vane, aby nedošlo k nasiaknutiu tepelnej izolácie pod oplechovaním parapetu. Hydroizolácia by mala byť voľne uložená pre paropriepustnosť detailu. Pri nedostatočnom vyvedení izolácie do výšky a prieniku náporového dažďa do detailu stráca tepelná izolácia svoje izolačné vlastnosti, nehovoriac o podmáčaní vonkajšej omietky pod otvorovou konštrukciou, či už okna alebo detailu prahu vonkajších vstupných dverí alebo terasových dverí.
Obr. 4: Plastové okno v pórobetónovom obvodovom paneli s rovným ostením a fasádnym izolačným systémom
Obr. 5: Plastové okno v pórobetónovom obvodovom paneli so zalomeným ostením a fasádnym izolačným systémom
Ing. Robert Žúdel
Foto: archív autora
Autor pracuje ako produktový manažér v spoločnosti aluplast Slovakia, s. r. o.
Literatúra:
1. Bielek, M., Rojík, V.: Konštrukcie pozemných stavieb IV. : Teória konštrukčnej tvorby budov. Bratislava : Vydavateľstvo ALFA, SNTL, 1987.
2. Jehl, W., Leuschner, I., Strasser, G.,: Leitfaden zur Montage. Der Einbau von Fenstern, Fassaden und Haustüren mit Qualitätskontrolle durch das RAL-Gütezeichen, RAL – Gütegemeinschaften Fenster und Haustüren, Frankfurt/M, 2002.
3. Puškár, A., Szomolányiová K., Fučila J.: Okná, dvere, zasklené steny Bratislava: JAGA GROUP, 2000.
4. STN 73 0540-1 až 4.
5. aluplast Slovakia: Spracovateľská príručka. Prehľadné plány. aluplast Slovakia, s. r. o., 2001 – 2007.
6. Vargová, A., Žúdel, R.,: Analýza osadenia okennej konštrukcie a návrh princípov rekonštrukcie okenných výplní. Almanach znalca, 1-2 2007 Bratislava: Edičné stredisko STU SvF, 2007.
7. Chmúrny, I.: Tepelná ochrana budov. Bratislava: JAGA GROUP, 2003.
8. Puškár, A., Žúdel, R., Snopko, P.: Smernica pre montáž okenných konštrukcií. Bratislava: Združenie Slovokno, 2007.
Článok bol uverejnený v magazíne Správa budov.














