Vinárstvo Krásná hora – luxfery a vidiecka architektúra
Čo sa stane, keď sa tradičného vidieckeho domu dotknú súčasné materiály a prvky? Pod taktovkou mladých a tvorivých architektov sa zrodila nadčasová architektúra ladiaca s krajinným rázom i lahodiaca oku mestského puritána.
VINÁRSTVO KRÁSNÁ HORA
Miesto: Starý Poddvorov, okres Hodonín
Investor: Vinárstvo Krásná hora, s. r. o.
Architekt: Tomáš Havlíček/Létajíci inženýri
Spolupráca: Lenka Mikulecká, Jiří Hořínek, Pavel Magnusek
Hlavný dodávateľ: Equispin, s. r. o.
Murovací a konštrukčný materiál: Ytong
Plocha: 370 m2
Zastavaný priestor: 2 100 m2
Projekt: 2007 – 2008
Realizácia: 2009 – 2010
Náklady: 14 mil. Kč vrátane technológií
Vinárstvo Krásná hora je stelesnením novodobého poňatia tradičnej vidieckej architektúry.
Keď sa malé rodinné vinárstvo Krásná hora v Starom Poddvorove neďaleko Hodonína rozrástlo o ďalšie vinice, jeho majiteľka Blanka Turečková sa rozhodla postaviť vedľa dvestoročnej pivnice novú modernú vinársku prevádzku. Mala sa tam vojsť úroda z piatich hektárov nových viníc, ako aj z ďalších desiatich hektárov pôvodných viníc z vínnej cesty Krásná hora. Obrátila sa teda na architektov so svojou víziou budúceho projektu.
Komplex vinárstva tvorí dvojpodlažný vstupný a výrobný trakt.
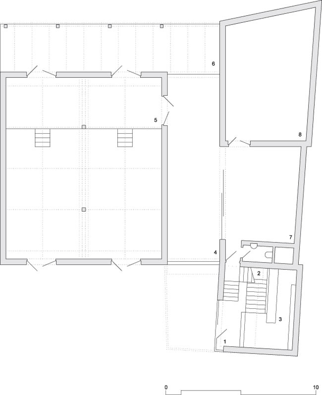
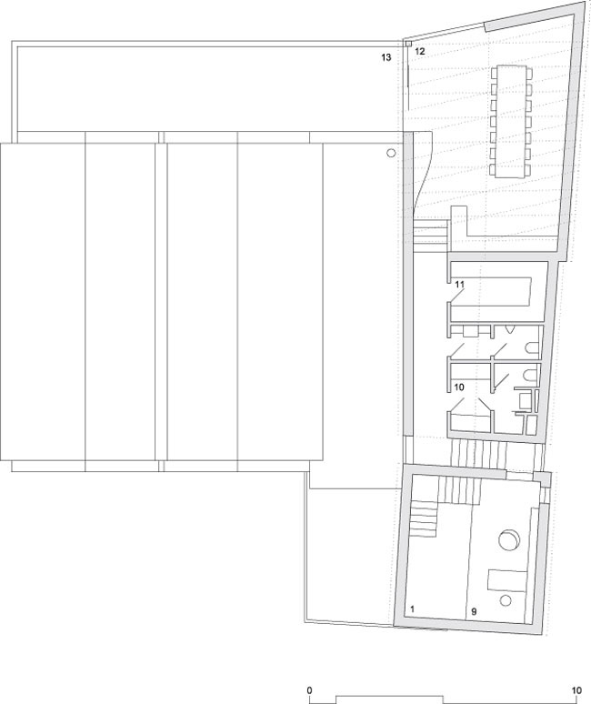
Pôdorys 1. nadzemného podlažia
1 –hlavný vstup
2 –vstup do starej pivnice
3 –predaj vína
4 –manipulačný priestor
5 –tanková hala
6 –krytý vonkajší pracovný priestor
7 –fľaškovanie, etiketovanie
8 –sklad
9 –office
10 –šatňa zamestnancov
11 –kuchyňa
12 –hodová sála
13 –vyhliadková terasa
14 –chamber séparé
Pôdorys 2. nadzemného podlažia
Neorustikálny výraz
„Investor mal jasnú predstavu o budúcej podobe objektu, prial si, aby stavba mala neorustikálny výraz,“ hovorí o svojom návrhu objektu Ing. arch. Tomáš Havlíček z ateliéru Létající inženýři. „Odpoveďou je biela omietka a farebné sklenené tvárnice – luxfery, tradičné korenie stavebnej kultúry nášho vidieka. Pri projektovaní som bral do úvahy aj veľkosť okolitých stavieb, preto je aj veľká tanková hala, ktorá slúži ako priestor na výrobu vína, riešená ako dvojlodie. Požadované vnútorné rozmery boli totiž približne 10 × 10 m.“
Vinárstvo Krásná hora je stelesnením novodobého poňatia tradičnej vidieckej architektúry. Neorustikálna podoba budovy vzdáva poctu ľudovým stavebným formám, a pritom spĺňa všetky súčasné požiadavky na komfortné miesto. Miesto, kde sa stretáva prevádzka na výrobu a dozrievanie vína s priestorom na spoločenské večery a gastronomické seansy.
Rez vstupnou časťou
Rez vstupnou časťou
Klasické drevené krovy s keramickou krytinou nadväzujú na murovaný systém Ytong, z ktorého bol inštalovaný aj strop.
Pracovňa na galérii
Cez luxfery preniká svetlo ako farebnými vitrážami v kaplnke.
Modelácia a konštrukcia
Komplex vinárstva tvorí dvojpodlažný vstupný a výrobný trakt. Bol postavený na starej vínnej pivnici, tanková hala je pre zmenu situovaná na mieste bývalého dvorčeka. Práve toto využitie historickej vinohradníckej pivnice predstavovalo pre architekta najnáročnejšiu časť stavby. Prezieravo si však poradil s umiestnením novostavby medzi objektmi a citlivo zakomponoval do svojho návrhu reštaurovaný historický vinársky dom s pivnicou. Ten bol postavený asi pred 200 rokmi a celému areálu dodáva historickú podobu. V budúcnosti by naň mala nadviazať ešte stavba penziónu.
Hoci samotná konštrukcia stavby pôsobí veľmi tradičným dojmom, predstavuje skutočný neoprístup v podobe použitia najmodernejších stavebných materiálov. Klasické drevené krovy s keramickou krytinou nadväzujú na murovaný systém Ytong, z ktorého bol inštalovaný aj strop. Tvárnice Ytong Lambda s výraznou hrúbkou 375 mm podporili tradičnú konštrukčnú silu steny, ktorá splýva s okolitou zástavbou.
Použitie týchto tvárnic zároveň potvrdilo investorov zámer postaviť taký objekt, ktorý bude mať adekvátne tepelnoizolačné vlastnosti aj bez následného zateplenia. Jednoliaty konštrukčný materiál bez dodatočnej izolácie je vhodným riešením na pohľadové styky materiálov a kotvenia konštrukcií. Homogénny vonkajší plášť budovy zaisťuje plnohodnotnú ochranu pred jeho poškodením vonkajšou prevádzkou. Použitie pórobetónu Ytong bolo nutnosťou v priestoroch vyžadujúcich si celoročné zabezpečenie regulovanej vnútornej teploty. Reaguje totiž na prírodné klimatické podmienky v okolí stavby a vytvára tak ideálnu mikroklímu.
Objekt vinárstva Krásná hora patrí podľa názoru významného českého historika architektúry profesora Rostislava Šváchu k tomu najlepšiemu, čo sa kedy na pôde Starého Poddvorova postavilo. Je odpoveďou na otázky o výraze regionalistickej architektúry dneška. I keď budova používa formy a materiály, ktoré sa podobajú vidieckemu staviteľstvu ešte predtým, než ho pokazili prvky mestskej výstavby, poskytuje svojim majiteľom dokonalý užívateľský komfort so stálou tepelnou pohodou po celý rok.
Text: Kateřina Kotalová, pet
Foto: Archív Xella
Dokumentácia: Létajíci inženýři
Článok bol uverejnený v časopise ASB
–>–>




















