Vidiecka architektúra bez sentimentu
Galéria(5)

Vidiecka architektúra bez sentimentu

Dve úspešne zrealizované diela, ktoré sú výsledkom spolupráce jedného architektonického ateliéru a stavebnej firmy, podnietili pokračovanie plodnej kooperácie. Tentoraz však obaja zúčastnení vyšli von z mesta, aby rozpracovali projekt vidieckeho bývania, oslobodený od prvkov sentimentálnej dedinskej architektúry. Ateliér Pokorny architekti sa po apartmánovom dome na Banskobystrickej ulici v Bratislave a administratíve Anasoft, ktorú postavili takisto v hlavnom meste, predstavuje s projektom kondomínií v Jablonovom.

Riešenie rodinných domov sa snaží vyhnúť najmä forme husto osídlených satelitov. V Jablonovom pôjde skôr o impulz k návratu prirodzeného rozvoja obce, v ktorej majú parcely jednotlivých domov veľkosť desať a viac árov. V bezprostrednom okolí budúcich kondomínií sa nachádza vilová zástavba s menším indexom zastavanosti. Pridanou hodnotou projektu má byť preto veľkorysosť plošných štandardov a intimita, ktorú prostredie vytvára. Kondomíniá v Jablonovom vedia podľa názoru architekta Pavla Pokorného osloviť rozličných klientov: „Môžu tu bývať bezdetné páry pracujúce v manažérskych pozíciách, ako aj rodiny s deťmi, ktoré uprednostnia pokojnejší život na vidieku pred hektickým veľkomestom. Domy predstavujú ideálne bývanie aj pre rodičov, ktorí pracujú doma.“

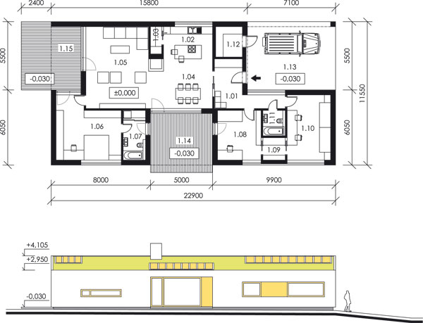
Objavujú sa tu dva základné typy objektov – bungalov a poschodový dom. Ich striedavým usporiadaním v rámci urbanistickej mikroštruktúry došlo medzi domami ku vzniku príjemných intímnych zón. Výrazové riešenie obidvoch typov stavieb reflektuje vidiecky charakter lokality. Očistili sa však od nánosov sentimentality a dekoratívnosti, ktorou sa často architektúra dedinských rodinných domov vyznačuje. Poschodové objekty sa svojím dizajnom prispôsobujú mierke prostredia cez tvaroslovie sedlovej strechy, rozdiel však spočíva v stavebnej technológii. Pri výstavbe sa má použiť moderná technológia liateho železobetónu. Vďaka nej bude mať podkrovný priestor ideálnu mikroklímu bez potreby dodatočného chladenia klimatizáciou. Podkrovia sa stanú plnohodnotným obytným priestorom s adekvátnou svetlou výškou. Dispozície dvojpodlažných domov sa členia štandardným spôsobom. Denná spoločenská časť sa nachádza na prízemí, nočná časť na poschodí.

Bonusom je možnosť zmeny funkcie garáže, ktorá je integrovanou súčasťou domu, na domácu kanceláriu. Bungalovy majú zelenú strechu a hierarchizované poloátriá, okolo ktorých sa vinie dispozičná prevádzka domu. Jej delenie na dennú a nočnú časť vychádza z ortogonálnej siete poloátrií, ktorá umožňuje nezávislé využívanie exteriéru jednotlivými členmi rodiny. „Prevádzkový komfort bývania v bungalove mal prednosť pred snahou tvarovo definovať stavebný objem prvoplánovými architektonickými znakmi,“ podotýka architekt. Stavebným materiálom, ktorý sa použije na výstavbu jednopodlažných bungalovov, budú keramické tvarovky.

Pre obidva typy domov sa počíta s omietanými fasádami. Poschodové objekty sa budú niesť v hnedom odtieni, bungalovy pokryje omietka bielej farby. Výrazným prvkom architektonického riešenia bude drevo. Uplatní sa v interiéri vo forme drevohliníkových okien, ale takisto v exteriéri na podlahách terás či na tieniacich lamelách poloátrií.

„Pri navrhovaní sme sa snažili nájsť kompromis medzi modernistickým výrazovým inštrumentáriom, ktorý náš ateliér bežne používa, a neodbytným pocitom, že v tomto konkrétnom prípade sa veci treba zhostiť trochu inak. Chceli sme navrhnúť domy, ktoré by organizmus dediny nevnímal ako násilný import povýšeneckého akademického architektonického výrazu, a súčasne sa vyhnúť romantizácii vidieka. Skrátka, aby sa prostredníctvom architektúry deklarovalo rovnakou mierou sebavedomie aj striedmosť, “ dodáva Pavol Pokorný.


Situácia


Bungalov: pôdorys a východný pohľad

Kondomínium Jablonové
Miesto: Jablonové, okres Malacky
Autori: Ing. arch. Pavol Pokorný, Ing. arch. Mária Šmilňáková
Klient: MexInvest, s. r. o.
Etapa: projekt pre stavebné povolenie
Začiatok výstavby: 3/2010
Ukončenie výstavby: 12/2010
Generálny dodávateľ: Bau3Mex, a. s.

Anna Salvová
Grafická časť: Pokorny architekti

Článok bol uverejnený v časopise ASB.