Rozruch v podhradí – dom na Beblavého ulici v Bratislave
V Bratislave je niekoľko výnimočne exponovaných lokalít, ktoré starostlivo sleduje nielen odborná architektonická a stavbárska obec. V médiách sa prepierajú rôzne kauzy, investori sa pasujú s úskaliami rozťahaných povoľovacích procesov, ale aj s nepriateľsky naladenou verejnou mienkou. Čo do rozmerov samotnej stavby najmenšia, ale v pomere búrlivých reakcií voči investorovi najväčšia, je kauza Fischerov dom na Beblavého ulici priamo pod Bratislavským hradom.
KonceptSúčasný investor architekt Dušan Fischer pozemok kúpil aj s projektom, ku ktorému bolo vydané územné rozhodnutie. Vzhľadom na predošlé súvislosti dostal ateliér Bogár Králik Urban objednávku aj na vyhotovenie projektovej dokumentácie na stavebné povolenie. S právoplatným povolením sa investor pustil do výstavby polyfunkčného objektu.
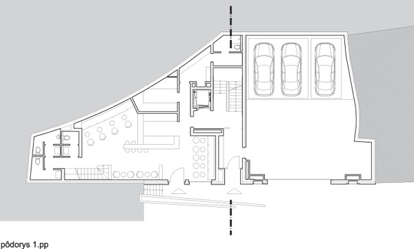
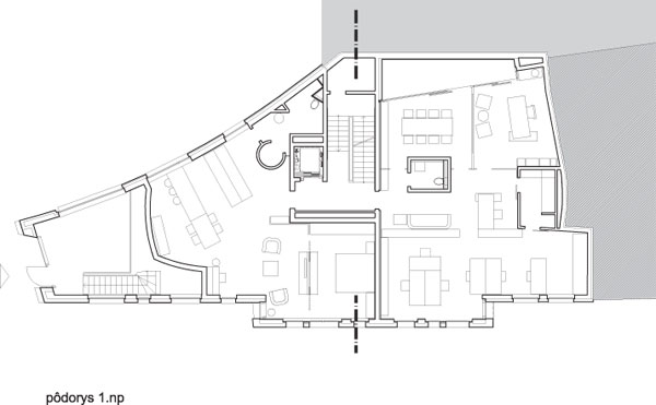
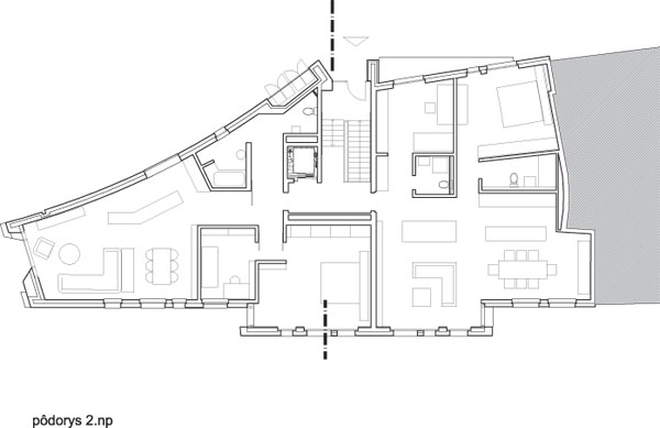
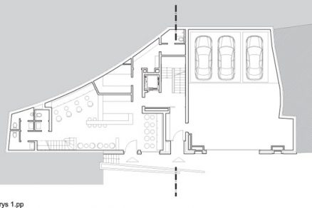
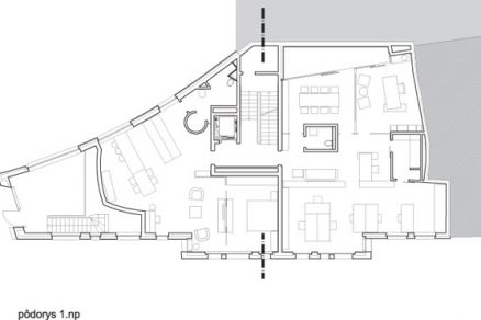
Zo strany Beblavého ulice je v parteri naplánovaná čiastočne dvojpodlažná kaviareň, na vyšších podlažiach sú tri byty, jeden z nich aj s ateliérom pre investora. Z tejto ulice je prístupná aj garáž pre šesť áut. Vstup do obytnej časti je z opačnej strany objektu. Tvaroslovie ani objem stavby sa oproti povolenému projektu v zásade nezmenili. „Na základe odporúčania pamiatkárov sme upustili od pôvodného a nimi odobreného obkladu zo zlatých plechových šablón ,“ vysvetlil Dušan Fischer a spresnil: „Členenie fasád však zachováva originálny koncept, rovnako sklon strechy. Len fasádne materiály sú trochu triezvejšie, kombinujeme omietku a plechový obklad.“
Chybná kóta
Pri vytyčovaní stavby sa prišlo na zásadnú chybu v územnom pláne zóny Podhradie. Výškové kóty v záväznej územnoplánovacej dokumentácii boli chybné, rozdiel oproti skutočnosti bol až 2,5 m. Na otázku: „Ako a kedy vznikla chyba pri výškových kótach v územnom pláne zóny Vydrica a ako nastane oprava?“, sme z magistrátu dostali odpoveď: „Formálna technická chyba jednoznačne vznikla na strane spracovateľa Územného plánu zóny Podhradie, ktorému boli poskytnuté správne mapové podklady. Predmetnú formálnu technickú chybu bude hlavné mesto SR Bratislava reklamovať u spracovateľa.“ Na to investor dodal: „Nejde len o chybné kóty terénu. Krajský stavebný úrad vo svojom vyjadrení konštatuje aj „zjavnú nekoordinovanosť viacerých regulatívov, ktoré pri konfrontácii s reálnym terénom neumožňujú zmysluplnú realizáciu stavby. Chyby v územnom pláne sú známe už viac ako rok a zatiaľ nikto opravu neinicioval.“ 
Otázkou je, ako sa má investor vysporiadať so vzniknutou situáciou? Na odpoveď z magistrátu, že ak investor zistil problémy, mal stavbu hneď zastaviť a požiadať príslušný úrad o zmenu stavby pred dokončením, architekt Fischer reagoval: „Súhlasím a tento postup sme uplatnili. Už pri začatí stavby sme podali žiadosť o zmenu stavby pred dokončením a podporili ju kladným vyjadrením pamiatkarov – KPÚ a Krajského stavebného úradu. Magistrát však tieto vyjadrenia neakceptoval a z tohto dôvodu stavebný úrad dodnes – viac ako rok – nevydal súhlas so zmenou stavby.“
Investor, tiež úspešný architekt, sa do úpravy projektu pustil sám tak, že z Beblavého ulice je objekt osadený na skutočnom teréne, a vstup zo zadnej strany tiež, avšak už s opravenými kótami, ktoré poskočili o 2,5 m, inak by sa musel vstup do domu zakopať pod úroveň terénu. Prípadné riešenie prístupu do objektu či osvetlenie miestností pomocou anglických dvorčekov by si vynútilo odkúpenie časti susedného pozemku na ich vybudovanie, čo by pre investora predstavovalo ďalšie vynútené náklady.
|  |  | 
| Rozruch v Podhradí Miesto: Beblavého ulica – Zámocké schody, Bratislava Investor: Ing. arch. Dušan Fischer Autori: Pôvodné riešenie Bogár Králik Urban architekti Upravené: Ing. arch. Dušan Fischer, Ing. arch. Richard Koseček, Ing. arch. Ján Jacko, Ing. arch. Katarína Fischerová Začiatok realizácie: 2011 Generálny dodávateľ: ise, spol. s r. o. Zastavaná plocha: 270 m2 Plánovaný objem (nadzemná časť) 2 450 m3 | 
|  |  | 
Nezávislý regulatív
Z logiky veci vyplýva, že keď opravené výšky terénu poskočili, mali by poskočiť na reálnu hodnotu aj regulatívy výšky ríms a hrebeňov striech. Magistrát nám o zaregulovanej výške objektu poskytol nasledovné vyjadrenie: „Maximálna povolená výška zástavby v regulačnej jednotke V22 je po výšku rímsy susedného objektu V23. Od tejto výšky rímsy sú priamo odvodené regulatívy – maximálna povolená výška zástavby a limit strešnej modelácie, ktoré sú stanovené v územnom pláne správne, nezávisle od kót terénu.“ 
Tento bod sa v celej kauze javí ako najspornejší, pretože ako hovorí investor: „Ak by to bola pravda, tak maximálna výška objektu v regulačnej jednotke 22, v jeho hornej časti by bola 2,8 m od skutočného terénu, pričom sa do tejto výšky má podľa ÚPN-Z zmestiť jedno plnohodnotné podlažie a podkrovie . Na tom istom regulačnom výkrese je však vzorový rez, ktorý umožňuje v tejto časti realizovať stavbu vysokú 11,2 m nad terénom. Z tejto výšky mienime využiť len 9,7 m nad reálnym terénom. Aj spracovatelia ÚPN-Z sa písomne vyjadrili, že navrhovaná zmena stavby je plne v súlade s koncepčným zámerom autorov,“ a dodal: „Jediným zmyslom uvádzania výškových kót v ÚPN-Z v absolútnych výškach je stanoviť limit, aký vysoký objekt môže na teréne stáť. Preto je tam vysvetľujúci rez. Nerozumiem, ako môže niekto povedať, že limity „sú nezávislé od kót terénu“? Akým právom úradník rozhodne, ktorá kóta (regulatív) v ÚPN-Z platí a ktorá nie?“
|  |  | 

„Komplikovaná situácia nahráva aktivistom, ktorí organizujú rôzne protesty a médiá v snahe o atraktívne témy im dávajú veľký priestor na traumatizovanie verejnosti. Tieto snahy však považujem len za zástupný problém, pokiaľ by išlo o skutočný záujem stavbu ovplyvniť, určite by sa ma niekto z nich pokúsil kontaktovať, ale to sa doteraz nestalo,“ skonštatoval investor.
Dúfame aspoň, že sa nám podarí otvoriť fundovanú diskusiu, ktorá by pomohla prípad uspokojivo vyriešiť pre obe strany.
Mária Nováková
Dokumentácia: Ing. arch. Dušan Fischer
Článok bol uverejnený v časopise ASB.
 
													







 
						 
						 
						 
						 
						



 
					 
					 
					 
					 
					 
					 
					 
					 
					 
					 
					 
					 
					 
					 
					 
					 
					 
					 
					 
								 
								 
								 
								 
								