Nádvorie Trnava
Historickú Trnavu poznáme ako mesto kostolov, teda Malý Rím, ale aj ako univerzitné mesto s automobilovým priemyslom. Oveľa menej vnímame pozitívne zmeny v jadre mesta a oživujúcu pešiu zónu. Pomerne rýchlo sa novým majákom mesta stáva projekt, za ktorým stojí rodina Trnkovcov. Práve ten sa podujal vniesť nový život do troch stredovekých nádvorí niekdajšieho kráľovského mesta.
Nádvorie vzniklo združením pôvodných historických parciel meštianskych domov a doplnením zástavby. Poloverejný charakter nádvoria je umocnený okolitými prevádzkami, ktoré ho aktivujú, či už denne formou terasy reštaurácie, alebo občasne formou eventov. Objekty sústreďujú viacero rozdielnych funkcií verejného i súkromného charakteru, pričom v podkroví sú prepojené.
Stretnutie rodáka a architektov s citom pre detail
Na samom začiatku vzniku projektu stál podnikateľ Miroslav Trnka, ktorý chcel investíciou podporiť svoje rodné mesto. Projekt Nádvoria nadviazal na dve etapy rekonštrukcie starších objektov na trnavskom Trojičnom námestí, v ktorých bola zriadená retrokaviareň Thalmeiner. Klient už mal dobré skúsenosti s ateliérom Vallo Sadovsky Architects počas druhej etapy rekonštrukcie budovy Thalmeineru, takže pre svoj dovtedy najnáročnejší projekt ich priamo oslovil. „Tento projekt vnímam ako životnú architektonickú príležitosť. Pre nás je to úžasne altruistický projekt z hľadiska klienta,“ dopĺňa architekt Matúš Vallo. Pôvodne malo ísť iba o rekonštrukciu domu na Štefánikovej 4, ale v procese prípravy projektu sa podarilo dokúpiť susedný dom, preto sa na novú situáciu adaptoval aj projekt a v podstate vznikla ucelená predstava Nádvoria Trnava.
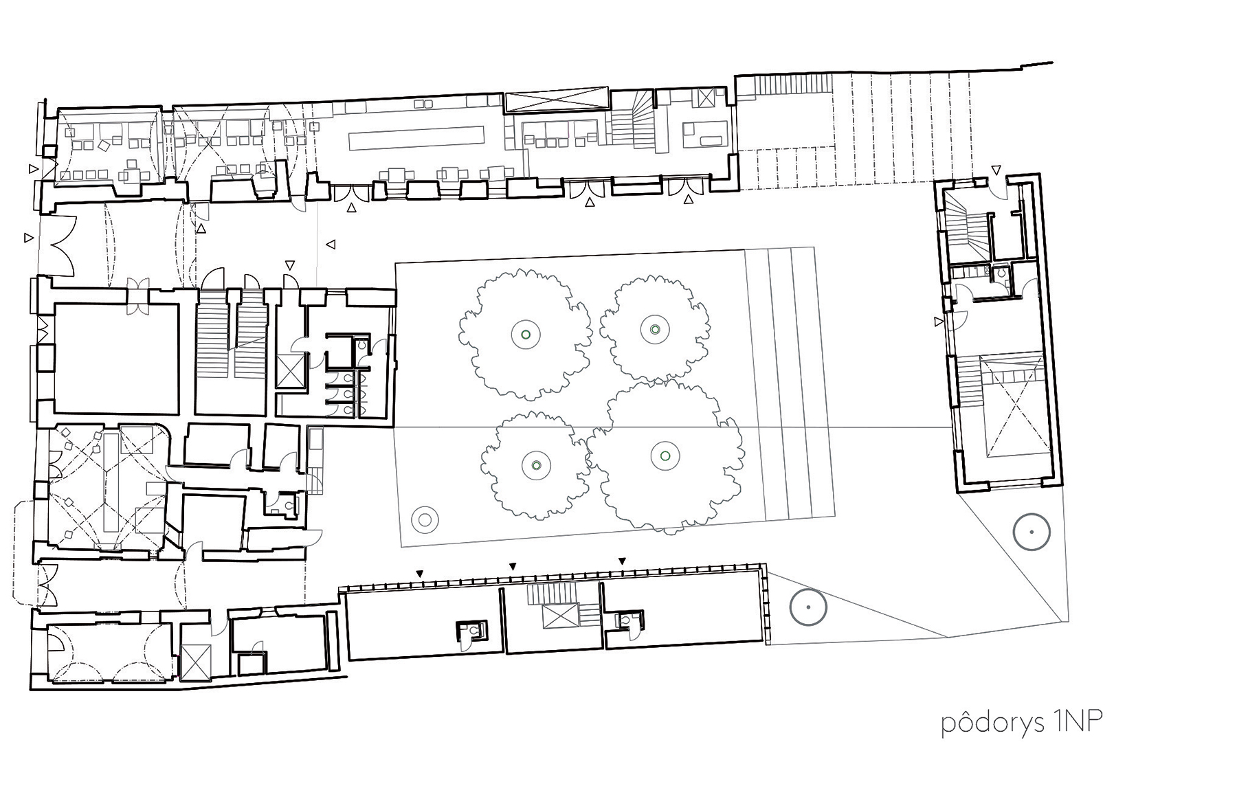
Pôdorys prvého podlažia celého komplexu.
Dobrá spolupráca s pamiatkarmi
Súčasťou areálu sú tri národné kultúrne pamiatky, pôvodne meštianske prejazdové domy, ktoré bolo treba rekonštruovať s mimoriadnym citom. Architekti si pochvaľujú aj spoluprácu s trnavským pamiatkovým úradom. Ako spomína Vallo: „Zadanie klienta bolo v maximálnej miere zachovať všetky pamiatkové prvky budovy, čo výrazne uľahčilo spoluprácu s pamiatkarmi. Pre nás to bola prvá väčšia skúsenosť s konverziou pamiatkovo chránených objektov.“ História objektov siaha do 14. storočia, so zmenami zo 16. – 20. storočia. Dom na Štefánikovej 3 je pôvodne gotický, s ranou barokovou úpravou, nadstavený v 30. rokoch 20. storočia a rozšírený o samostatné južné krídlo. V celej budove sa miesia tri princípy: rekonštrukcia, replika a novostavba. Napriek limitom pamiatkovej obnovy sa podarilo novšiu časť budovy vyriešiť v nízkoenergetickom štandarde so stropným chladeným a rekuperačným vetraním.
Pohľad na prechod medzi novou a pôvodnou časťou budovy spolu s vystaveným pranierom.
Gastronomický parter doplnia ďalšie predajne
Dôraz sa kládol najmä na funkčný parter budovy, preto boli budúci nájomcovia vyberaní už v procese výstavby, hoci časť priestorov je stále k dispozícii na prenájom. Keďže sa v blízkej budúcnosti počíta s predĺžením pešej zóny na Štefánikovu ulicu, do obchodných priestorov od ulice sa umiestnili dve gastroprevádzky, ktoré má pod palcom práve rodina Trnkovcov. Unikátny priestor s rekonštruovanou barokovou klenbou od talianskych štukatérov dnes patrí malej pekárni Chlieb Náš. V susednom priestore sa nachádza piváreň spojená s moderným lokálnym bistrom Akadémia, ktorá sa ťahá až do nádvoria a zaujme odhalenými pôvodnými stropmi a ľahkým retrodizajnom. Zjednocujúcim prvkom parteru na priečelí sú repliky pôvodných výkladcov zo začiatku 20. storočia. Krajný priestor od ulice bude patriť výrobe šperkov a za ním sa na nádvorí nachádza výstavná sieň a dizajnový obchod.
Piváreň s moderným bistrom Akadémia sa nachádza v unikátnych priestoroch s odhalenými stropmi.
Malý Berlín v Malom Ríme
Dom na Štefánikovej 4 už v minulosti slúžil ako tančiareň a telocvičňa, a preto nie je náhoda, že sa stal sídlom kultúrneho centra Malý Berlín, ktoré už od roku 2004 v Trnave pôsobilo a do spolupráce na príprave Nádvoria bolo prizvané investorom. Názov centra odkazuje na sprofanovanú prezývku Malý Rím, pričom zakladatelia chceli do mesta priniesť kultúrny život známy z Berlína. Priestor veľkej sály je poňatý komorne do odtieňov čiernej, čo zdôrazňuje aj posúvateľná čierna drapéria po obvode. Pokračovaním kultúrneho priestoru je malá sála od nádvoria, ktorá je konvertibilná aj ako priestor na diskusie, na ktorý nadväzuje otvorená terasa. V priestore s mezanínom sú umiestnené kancelárske priestory Malého Berlína.
Veľká sála kultúrneho centra Malý Berlín.
Kancelárie na coworking pod barokovým krovom
Priestor v podkroví priečelného krídla oboch budov je prepojený a slúži ako coworkingové centrum, ktoré sa skladá z hlavného priestoru Hot Desk, miestnosti Fix Desk, recepcie, lounge-u, zasadačky a kuchynky. Pozoruhodnosťou priestoru sú odkryté barokové krovy, a to napriek tomu, že nadstavba pod nimi je z medzivojnového obdobia. Pôvodný krov bol vtedy zrejme rozobratý a nanovo zložený na nadstavbu, čo sa opäť podarilo aj pri súčasnej rekonštrukcii. Zaujímavo pôsobí aj zachované pôvodné schodisko z tridsiatych rokov, ktoré bolo napriek statickému narušeniu zastabilizované a zrekonštruované.
Pekáreň Chlieb Náš v miestnosti s barokovou štukatúrou talianskych majstrov.
Byty pre talentovaných študentov
Filantropickým vkladom investora bola myšlienka doplniť areál dvoma zadnými krídlami s bytmi, ktoré budú v rámci štipendia od nadácie Nádvorie dostávať najnadanejší študenti. Tehlová dostavba dodržiava hmotu pôvodného krídla naznačením v oceľovej konštrukcii s napojením na východný objekt areálu. Dva mezonetové byty ponúkajú bývanie pre osem študentov a pracujú s mimoriadne vysokou efektivitou priestoru. Súčasťou komplexu je aj prenajímateľný apartmán a kancelárie v protiľahlom krídle.
Pohľad na trakt so študentskými bytmi od budúceho vchodu z Pekárskej.
Zelené nádvorie s históriou
Počas archeologického prieskumu oboch nádvorí bolo nájdených mnoho archeologických nálezov, ktoré sú dnes prezentované vo výstavnej sieni na prízemí budovy, a miesta ich nálezov sú v dlažbe vyznačené dizajnovými spotmi s popisom. Najvýznamnejší a najtajomnejší nález pranieru, ktorý bol zrejme v minulosti umiestnený na námestí pred budovou, je inštalovaný priamo na nádvorí. Aby sa umocnil dojem príjemne tieneného priestoru, boli sem zasadené štyri stromy veľkých rozmerov, pod ktorými je umiestnené sedenie. Plocha nádvoria tiež ponúka priestor pre organizáciu podujatí pod holým nebom.
Pokračovanie úspešného konceptu?
V objekte samotného nádvoria ešte stále prebieha rekonštrukcia traktu vinárskych pivníc pre hospodárske zázemie. V druhej časti pivníc bude sídliť komunitné centrum a slúžiť bude aj ako eventový priestor. Firma investora medzičasom zakúpila ďalší susedný objekt od Pekárskej ulice, ktorý v súčasnosti slúži ako zázemie objektu. V hre je však aj myšlienka rozšíriť úspešný projekt o nový objekt a prepojiť ho do nového verejného priestoru.
Nádvorie Trnava
Miesto: Trnava, Štefánikova 3 – 4
Investor a developer: Trnka Investments s. r. o.
Autori návrhu: Vallo Sadovsky Architects – Ing. arch. Matúš Vallo,
Ing. arch. Oliver Sadovský, Mgr. art. Marián Stanislav, Ing. arch. Viliam Zajíček,
Ing. arch. Mateja Vonkomerová,
Ing. arch. Marcel Vadík,
Ing. arch. Zuzana Krejčířová,
Ing. arch. Elena Šoltésová
Hlavný inžinier projektu: Orpis, s. r. o.
Výstavba: 06/2014 – 04/2018
Úžitková plocha: 3 393 m2
Zastavaná plocha: 1 030 m2
Plocha pozemku: 2 603 m2
Generálny dodávateľ: Texx s. r. o.
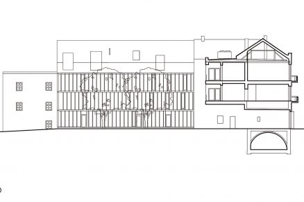
Severný rezopohľad objektu na Štefánikovej 4.
TEXT: Ivor Švihran
DOKUMENTÁCIA: Vallo Sadovsky Architects
FOTO: BoysPlayNice
Článok bol uverejnený v časopise ASB 6-7/2018.



















