Vidiecky rodinný dom
Blízko hraníc s Nemeckom na severe Českej republiky sa nachádza pekné malé mestečko Velký Šenov. Práve v prostredí malebnej krajiny vyrástol dom, ktorý v sebe spája tradičné a novodobé prvky a vytvára tak príjemné a pohodlné prostredie na rodinný život na hranici mesta a vidieka.
Objekt pochádza z dielne architektonického štúdia RG architects studio, autor Radomír Grafek na projekte spolupracoval so Zdeňkom Navrátilom.
Vidiecky dom s krížovým pôdorysom zaujme na prvý pohľad. Jednou z obrovských výhod lokality je pozemok, z ktorého sa núkajú nádherné výhľady do okolitých Lužických hôr. Vďaka umiestneniu stavby majú majitelia možnosť žiť život v meste, ktorý však oplýva výhodami života na vidieku. Nádherný kraj je výborným prostredím na zdravú výchovu potomkov. Krížová podstata domu sa tiahne v dvoch smeroch: sever – juh a západ – východ. Vstup na pozemok je umiestnený od severu, tu nájdeme aj dvojgaráž a kamennú prístupovú cestu.
Neprehliadnite
Želaním majiteľov bolo čo najväčšie a najprirodzenejšie prepojenie interiéru a exteriéru, prírody a interného kolobehu života v stavbe. Dom je teda rozdelený na niekoľko funkčných celkov, do ktorých spadajú aj externé obývacie priestory. Po vstupe do domu nájdeme smerom na západ (vpravo) časť obsahujúcu kuchyňu a jedáleň, smerom na východ (vľavo) vládne priestoru pracovňa.
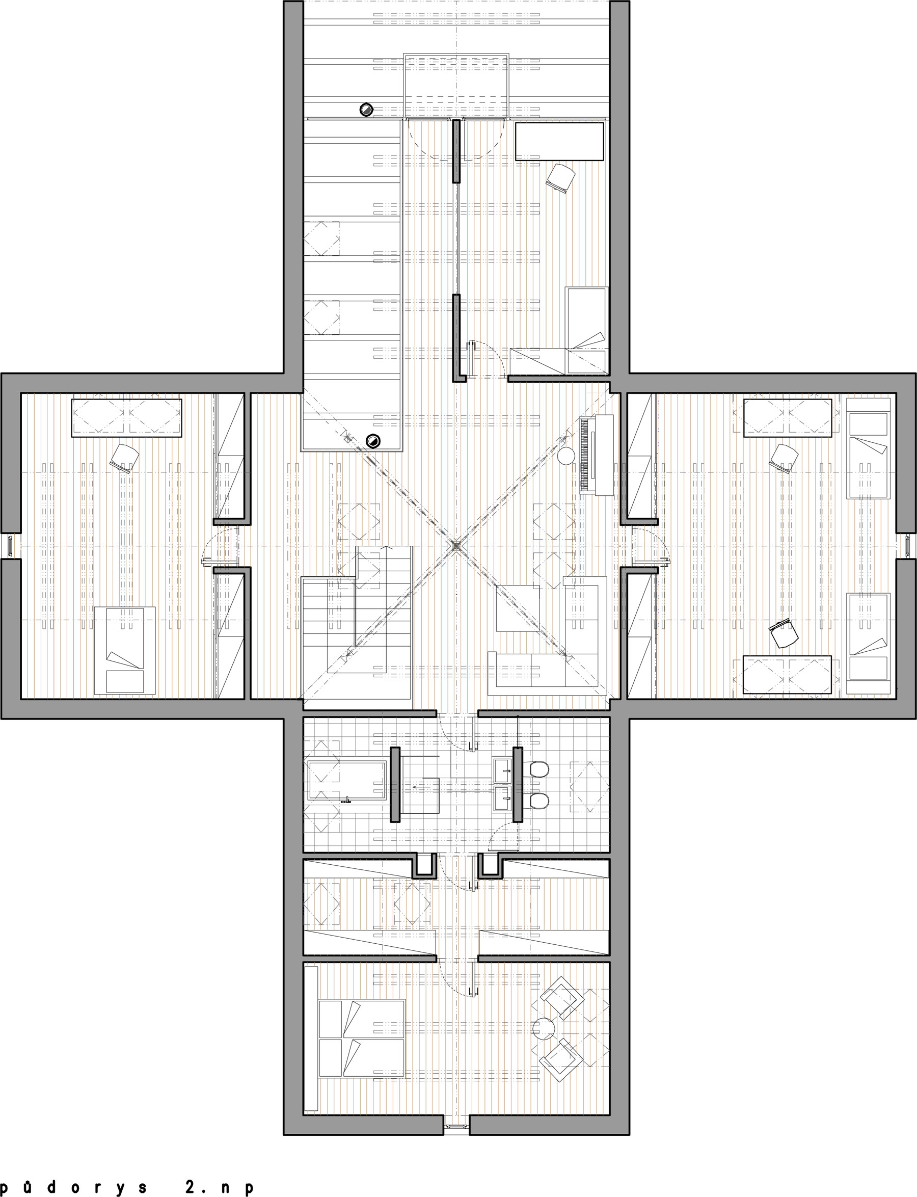
Pokračujúc smerom ďalej do domu, nájdeme stred, v ktorom sa všetky časti pretínajú, ďalej na juh sa pred nami otvára hlavný obývací priestor nasledovaný terasou s vonkajším kozubom, ktorá je zastrešená a vedie priamo na trávnik. Okrem týchto miestností na prízemí nájdeme ešte kúpeľňu s toaletou, technickú miestnosť, špajzu, práčovňu a schodisko vedúce na nadzemné podlažie. To má podobu útulného podkrovia, skrýva vstupnú halu, rodičovskú spálňu so šatníkom, kúpeľňu, toaletu a tri izby.
Materiálovo sa stavba opiera o spoľahlivú kombináciu dreva, skla a kameňa, ktorá je prítomná tak v exteriéri, ako aj v interiéri. Exteriér navyše dopĺňajú čisté biele fasády ladiace so sivou sedlovou strechou s 50° sklonom, ktorá je tvorená titánzinkovým falcovaným plechom. Moderný interiérový dizajn príjemne korešponduje s tradičným zovňajškom vidieckeho domu.
Neprehliadnite
VKUSNÝ DREVODOM ZA ROZUMNÚ CENU
Jednoduché minimalistické riešenia, rovné línie, čiernobiela farebná kombinatorika doplnená elegantným tíkovým drevom, kožou, prírodnými tkaninami a kameňom tvoria ucelený priestor, ktorý sa vyznačuje pohodlnosťou a útulnosťou na jednej strane, a zároveň noblesou, estetickosťou a nadčasovým dizajnom na strane druhej.
O ateliéri
Projektantský ateliér RG architects studio sa v roku 2013 sformoval v podobe voľného pokračovania pôvodného RG projektu, ktorý pod vedením Radomíra Grafka fungoval už od roku 1995, keď ho založil spolu so Zdeňkom Navrátilom. Ateliér sa zameriava na jednoduchú a funkčnú architektúru, ktorej hlavnými znakmi sú čistota, rovnováha a využitie svetla.
Autori sa snažia o plodný dialóg s investormi, pričom prihliadajú na osobitosť každej jednej lokality a vypracovanie projektu do najmenších detailov tak, aby výsledkom ich spoločného úsilia bola stavba, ktorá slúži klientovi podľa jeho predstáv a požiadaviek. V súčasnosti má ateliér na konte mnohé realizácie, projekty a rekonštrukcie viacerých druhov stavieb, medzi ktoré radíme napríklad rodinné domy, bytové domy, stavby občianskej vybavenosti a okrem toho aj dizajn ich interiérov.
Prehľad
Lokalita: Velký Šenov, Česká republika
Autor: Radomír Grafek, RG architects studio
Spolupráca: Zdeněk Navrátil
Rok štúdie: 2004
Projekt: 2005
Realizácia: 2005 – 2006
Zastavaná plocha: 307,3 m² 
Úžitková plocha: 360 m²
Plocha pozemku: 14 110 m²
Text: Anna Martausová v spolupráci s Radomírom Grafkom
Foto: RG architects studio
 
													




























 
					 
					 
					 
					 
					 
					 
					 
					 
					 
					 
					 
					 
					 
					 
					 
					 
					 
					 
					 
								 
								 
								 
								 
								