Ako európske hlavné mesto kultúry premenilo plaváreň na Kunsthalle
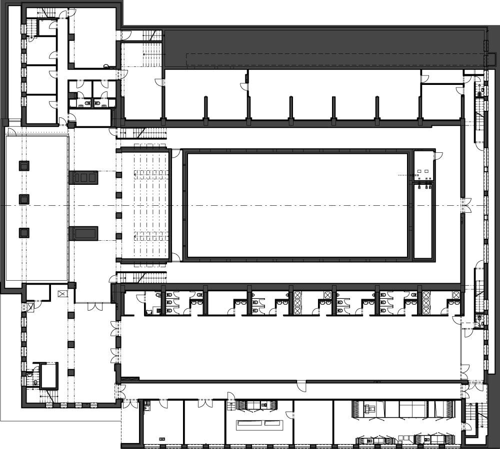
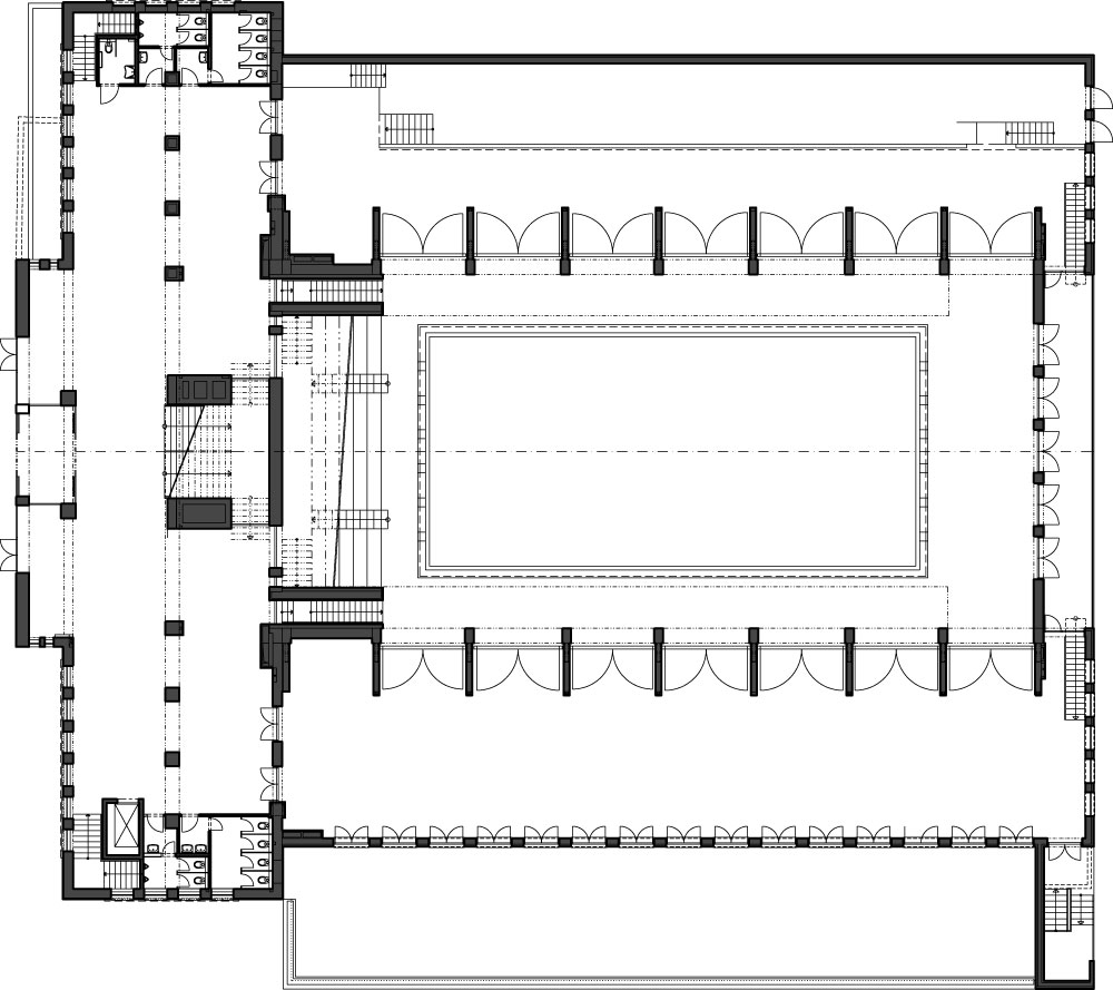
Projekt Košice 2013 – Európske hlavné mesto kultúry 2013 nemá trvácnosť len jeden rok. Hmatateľné výsledky posúvajú túto aktivitu na viaceré roky. Súčasťou projektu je aj multifunkčný priestor Kunsthalle v košickom Mestskom parku, ktorý slúži na organizovanie kultúrnych podujatí.
Tony Cragg, Gyula Kosice, Pocta Gyulovi Kosice (konštruktivistická tvorba českých a slovenských autorov), Constantin Brâncuşi – už mená umelcov či názov inauguračných výstav majú navodiť význam priestoru, ktorý má byť v budúcnosti využívaný najmä na prezentáciu vizuálneho umenia. „Máme v pláne zorganizovať minimálne dve dlhodobé akcie – jednou z nich je trienále súčasného obrazu, ktoré spustíme v septembri tohto roku. Medzitým budeme prezentovať výstavy umeleckých diel od skutočne významných osobností kultúrneho života. Na našej scéne sa budú konfrontovať domáci i zahraniční umelci,“ informuje umelecký riaditeľ projektu Košice 2013 – Európske hlavné mesto kultúry (EHMK) Vladimír Beskid. Zaostrime teda na túto scénu, ktorá si našla miesto v objekte starej plavárne.| STARÁ KRYTÁ PLAVÁREŇ – KUNSTHALLE Investor: mesto Košice Autori: Ing. arch. Juraj Furdík, PhD., Ing. arch. Ivor Mečiar, ArtD., Ing. arch. Peter Lovich, PhD., Ing. arch. Kristína Šťastná, Doc. Ing. arch. Juraj Koban, Ing. arch. Štefan Pacák, Ing. arch. Róbert Kolla Začiatok výstavby: 07/2012 Ukončenie výstavby: 05/2013 Generálny projektant: Banské Projekty, s. r. o. Generálny dodávateľ: OHL, a. s. Hlavný subdodávateľ: DUHA, a. s. Hlavný inžinier: Ing. Vlasta Martinická Realizácia a financovanie: Regionálny operačný program Európskej únie. Zastavaná plocha: 2 537 m2 Úžitková plocha: 5 117 m2 Hydroizolácie v spodnej časti stavby, izolácia – zateplenie striech: MP IZOL, s.r.o., Bratislava Rekonštrukcia bazénovej technológie: WELLNESS SYSTEMY, s. r. o. |
Zachovať pôvodné
Pôvodná krytá plaváreň bola postavená v rokoch 1957 až 1961 na okraji Mestského parku podľa projektov košického architekta Ladislava Greča. Výtvarná výzdoba interiéru je dielom výtvarníčky Herty Ondrušovej-Viktorínovej. Zrušenie Mlynského náhonu a prestavba jeho koryta na štvorprúdovú komunikáciu mali negatívny vplyv na túto stavbu. V 80. rokoch minulého storočia sa poškodil obvodový plášť budovy a prasklo bazénové teleso. Od roku 1992 bola budova uzatvorená a ďalej chátrala. Pred úplnou devastáciou ju zachránila myšlienka, že tento objekt má dobrú polohu a ide o priestor, ktorý by mohol byť využitý v prospech projektu Košice 2013 – Európske hlavné mesto kultúry. Podľa doc. Ing. arch. Juraja Kobana patrí budova bývalej krytej plavárne k architektonicky najzaujímavejším budovám v Košiciach. „Aj preto bolo hlavným cieľom celej rekonštrukcie v maximálnej možnej miere zachovať všetko, čo sa zachovať dá, a to v pôvodnej mierke i charaktere priestoru,“ hovorí doc. Ing. arch. Juraj Koban, jeden z autorov rekonštrukcie. „V ďalšom slede sme rešpektovali rukopis architekta tohto objektu, pričom sme premenili priestor na multifunkčné centrum – Kunsthalle. Dôležitým obsahom špecifických priestorov sa stane voda, ktorá bude využitá pri tanečnom, hudobnom a divadelnom umení, ako aj v nových médiách. Návštevníci sa tiež budú môcť zúčastniť na diskusiách, prednáškach a workshopoch s profesionálnymi umelcami a kurátormi.“
Škrupinová konštrukcia
Podľa slov Juraja Kobana bola stavba krytej plavárne natoľko dobrá, že pri rekonštrukcii neboli treba ďalšie veľké zásahy. Architekti sa snažili zachovať čisté línie pôvodného objektu a pri terajších zásahoch odstrániť čo najviac rušivých elementov. Nová stavba kopíruje obrysy pôvodného objektu, pričom najzachovalejšou pôvodnou časťou je škrupinová konštrukcia. Tá vznikala ako prefabrikát a bola v takom stave, že stačilo len repasovať povrchy. „V jednom bode mala dokonca vypadnutý klin z trojkĺbového nosníka, a napriek tomu konštrukcia nespadla,“ dodáva Juraj Koban. „Je až neuveriteľné, že taká subtílna konštrukcia bola v našich podmienkach realizovaná a že vydržala počas neprevádzkovania – teda vyše 30 rokov.“
Časti objektu, ktoré nezodpovedali statickým požiadavkám, museli byť zbúrané. K nim patrili aj bočné časti budovy, ktoré nahradili nové konštrukcie. Patrí k nim aj prístavba krídla smerom k Štefánikovej ulici, kde sa umiestnili technológie. Doplnila sa aj technológia na hlavný bazén v Kunsthalle, pretože ten sa dá napustiť do rôznych výšok podľa typu kultúrneho podujatia. Diváci môžu pri sledovaní koncertov sedieť na javisku i mimo neho a hudobné tóny či predstavenia si vychutnať z balkónov alebo terás. Dokopy poskytne Kunsthalle 750 miest… Kunsthalle má za sebou prvé dva mesiace svojej existencie. Dva mesiace, ktoré boli prísľubom pre tie ďalšie.
TEXT: ĽUDOVÍT PETRÁNSKY,
FOTO: DANO VESELSKÝ, TOMÁŠ ČIŽMÁRIK,
DOKUMENTÁCIA: RÓBERT KOLLA
Článok bol uverejnený v časopise ASB.


















