Zenový dom z Bělkovic
Boli sme na moravskom vidieku – tam, kde nechýbala odvaha k pokojnej a pokornej architektúre. Stojí tam dom bez pátosu, v „prízemnom štýle“ pod strechou zelenou od trávy a sklonenou podľa miestnych predpisov.
Nevyzeralo to nádejne. Domáci sa okúňali, že majú malé deti, dom už príliš zabývali a nábytok len postupne vymieňajú za nový tak, aby doladili interiér podľa návrhu architektiek Evy Eichlerovej a Mileny Galátovej. Ten dom však bol silným pokušením. Pozerala som na fotografie celkom jednoduchej stavby, ktorá sa ramenom oprela do záhrady. Okraj strechy na severnom priečelí nechal architekt stiahnuť až nad úroveň prízemia. Južná strana domu s miernejším sklonom strechy sa otvorila do záhrady výraznými zasklenými plochami. Dom sa mi zapáčil – moderný a pritom tradičný, neveľký, ale s dostatkom priestoru pre rodinu s malými deťmi, na pohľad jednoduchý, a pritom ostane v pamäti ako architektúra, o ktorej si naivná duša pomyslí, že už-už a na ten nápad by prišiel ktokoľvek.
Také jednoduché a samozrejmé; stačí cit pre proporcie a presný rytmus pri striedaní plôch na fasáde, navrhnúť textúry v správnom pomere, nájsť odvahu i profesionálnu zručnosť k funkčnej jednoduchosti, dodržať miestnymi úradmi predpísané regule vrátane sklonu sedlovej strechy. Je to také prosté a samozrejmé ako zásady tradičnej a modernej japonskej i českej architektúry v podmienkach severomoravského vidieka.

Príjemne rozložená hmota domu sa prirodzene usadila na neveľkej obdĺžnikovej parcele konča dediny. Rovina s lánmi polí a lúčinami postupne prechádza do lesnatej pahorkatiny. Len nedávno sa tu rozprúdil čulý stavebný ruch. Jeden po druhom, každý po svojom vyrástli na susedných pozemkoch rodinné domy a vilky. Ten ich druhý v poradí. Najprv sa zamyslel nad miestom, pozrel do doliny, ktorá sa ťahá smerom na východ, zahľadel sa na steblá trávy prehnuté vo vetre. Kým sa nový dom uvelebil na pozemku v ohybe miestnej komunikácie, nechal svojho architekta a budúceho majiteľa, aby sa vybrali po ďalšie vnemy k nepravidelne omietnutému gotickému kostolu v neďalekom Olomouci.
Od chvíle, keď si v mene svojej prírodne orientovanej rodiny stavebný inžinier pán Sadílek vygooglil svojho architekta s japonským pôvodom a českým životopisom, začali sa diať pre niektorých obyvateľov dediny nepochopiteľné veci. Namiesto zložitej a členitej stavby vytýčili v strede pozemku obrysy základov pre dva obdĺžnikové objekty, ktoré sa mali stretnúť v pravom uhle. Odlišné členenie fasády s mierne vysunutými kubusmi a plochy ručne upravenej omietky striedané s plochami s odvetranou drevenou fasádou kopírujú vnútornú skladbu a delenie interiéru.
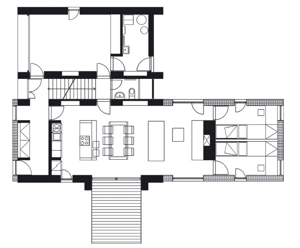
Hlavná murovaná časť domu mala poskytnúť priestor na nevyhnutné fungovanie štvorčlennej rodiny. Keď sa domurovalo z keramických tvaroviek, na stavbu priviezli drevo na ďalšiu konštrukciu. Pristavili veľkú drevenú zásuvku, ktorá sa rozbehla do záhrady a rozšírila obytnú zónu o presvetlený obývací priestor s jedálňou a dvomi menšími miestnosťami na samom konci dreveného ramena.
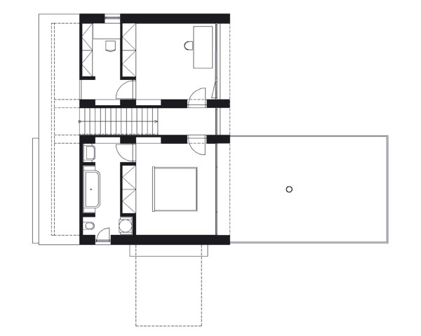
Teraz má rodina v jednej z nich pracovňu a v druhej herňu pre deti. Časom dietky obsadia obe izby a pracovňa sa presťahuje na poschodie pod sedlovú strechu. Podstrešie patrí nočnej zóne. Majú tu spálňu deti i rodičia. Tú rodičovskú prepojili zasklenými posuvnými dverami s terasou, ktorá sa usadila na streche zásuvky. Šťastné vysunutie drevenej časti domu z línie uličnej zástavby sa im odmenilo výhľadom do údolia. Strešná terasa bude aj miestom na príležitostné spanie pod šírym nebom. Od architekta Osamu Okamuru dostal zelený dom otvorený vzťah k okoliu. Zasklenie vo všetkých miestnostiach po celej výške stien pomohlo k plynulému prechodu medzi domom a záhradou rovnako ako otvorená dispozícia prízemia.
| Autor architektonického návrhu riešenia stavebnej časti: Ing. arch. Osamu Okamura (*1973, Tokio) ukončil Fakultu architektúry ČVUT v Prahe a neskôr študoval na Akadémii výtvarných umení v Prahe architektúru u prof. Emila Přikryla, ďalej školu intermediálneho umenia u prof. Milana Knížáka a konceptuálnu tvorbu u prof. Miloše Šejna. Absolvoval študijný pobyt na Ecole d`Architecture de Nantes ve Francii. Zdedil japonský cit pre estetiku a prakticky sa zblížil s témou japonskej architektúry, ktorú prednáša na Filozofickej fakulte Masarykovej univerzity v Brne. Nachádza mediálny priestor na propagáciu súčasnej architektúry, zaoberá sa sociálno-ekologickými projektmi a site-specific umením tvoreným pre konkrétne prostredie. Možno práve táto záľuba v umení, kde sa navzájom prestupujú prvky výtvarného umenia, divadla, hudby, architektúry a iných umeleckých druhov tak, aby vytvorili jedinečné umenie pre vybrané prostredie, mu nedovolí, aby pri svojich architektonických návrhoch zabudol na prostredie a jeho tradíciu. Realizácie architekta Osamu Okamuru: Salón českej scénografie – scenár a architektonické riešenie výstavy v Lobkovickom paláci na Pražskom hrade (2005), Shówa-en – scenár a architektonické riešenie výstavy v Západočeskom múzeu v Plzni (2004), Srdce Pražského quadriennale (2003) – realizácia hlavnej scény pre Scape/Massey University, New Zeland, 2003), Vstupná hala Českého centra v Berlíne (spolupráca Daniel Ziss, 2000), Japonská reštaurácia Koto v Prahe (1999), Vinotéka v Dobřochoviciach (spolupráca Daniel Ziss, 1998) a iné. |
Svojpomoc profesionála

„Inšpiratívny investor hecuje architektov k zaujímavej tvorbe. Pán Sadílek patrí k tým ľuďom, ktorí sa technickým veciam rozumejú. Vďaka svojmu vzdelaniu a skúsenostiam stavebného inžiniera vedel vyriešiť technické detaily napríklad aj v tenkej stene medzi nikou a kúpeľňou na prízemí alebo prepojenie omietnutého keramického muriva s drevenou odvetranou fasádou,“ pripomína architekt.
„Majitelia vedeli, že nechcú dokonale tesný dom. Naopak – mal to byť akýsi opak inkubátora. Dom, ktorý bude dýchať spolu s dolinou a lúkou. Ak by sa stavalo nízkoenergeticky, či dokonca pasívne, narástli by prvotné investície. Na ich návrat treba potom čakať niekoľko dlhých rokov. Kolega Okamura navrhol dom tak, aby jeho obyvatelia nemali pocit, že ich dvere, okná a steny uzatvárajú pred okolím. Záhradu chceli cítiť až do domu. My sme v tej myšlienke pokračovali, a tak si teraz chodia von a dnu, neprekáža im nábytok, voľne prechádzajú do záhrady a späť do obývačky. To, ako bývať, je vecou osobného presvedčenia,“ navzájom sa dopĺňajú architektky.
„Všetok nábytok sa robil atypicky na mieru. Musel sa účelne využiť každý štvorcový meter a zariadenie malo vyhovieť predstavám a potrebám teraz už päťčlennej rodiny. Domáci netrvali na estetike, funkčnosť bola pre nich primárna. Dnes sú spokojní, priestor im slúži, dom funguje. V rámci stavebného projektu sme navrhli vybavenie ník v štýle minimalistických domov s minimálnym množstvom nábytku. Vnútorný priestor takto zdanlivo narástol a plocha uprostred je reálne väčšia. Na dlážke môžu polihovať, deti sa tu hrajú a rodina dokonca odmieta sedačku. Možno sa raz zariadia zaujímavými sedacími objektami pred kozubom,“ dozvedáme sa od autoriek interiéru.

Dom si nasadil čapicu z lúčnej trávy, necháva ju rásť podľa ľubovôle. Zelený porast sa mu zavďačí vyrovnanou klímou v jeho útrobách a čo je preň a domácich rovnako dôležité: dom sa nemusí na nič hrať; on ku krajine, z ktorej vyrástol, patrí. Kto vojde do domu a zapozerá sa na architektonicky čistý priestor, ten môže zadefinovať štýl interiéru ako kombináciu minimalizmu, možno konštruktivizmu, purizmu či iného racionálneho izmu skombinovaného s výberom tradičných materiálov a veľkoplošnými priehľadmi do exteriéru.
V skutočnosti dom Sadílkových žije životom celkom normálnej rodinky, ktorá si na rozdiel od mnohých iných mohla vyladiť vlastný životný priestor spolu s architektom a potom dom dôsledne zabývať. Bolo im cudzie vyberanie dizajnových kúskov, apartných dekorov a túžba po samoúčelných efektoch. Vzhľad domu vyvstal z nárokov na funkčnosť a zabývateľnosť.

Oba symboly rodiny a tradície ukotvili dom k miestu a jeho obyvateľom vytvorili pevné rodinné zázemie pod dohľadom toho, kto sa pohybuje v kuchyni: „Už dva roky sa obzerajú za stoličkami, ktoré by im vyhovovali. Nie sú to ľudia, ktorí by boli z pohodlnosti prístupní kompromisom. Zo začiatku sa zdalo, že jediný, s kým sa porozprávame o zariadení domu, bude pán Sadílek. Prišlo však na kuchyňu, a tak sme sa chceli spoznať a porozumieť si aj s ženskou polovicou páru. Kuchynské vybavenie, súbežné rozmiestnenie pracovných plôch kuchynskej linky a najmä umiestnenie kuchyne tak, aby fungovala jednoduchá komunikácia s rodinou v dennej časti domu, vyplynuli z tejto spolupráce,“ dozvedáme sa od architektky Evy Eichlerovej.

Keď nás majiteľ pozval do domu, v kuchyni sa chystalo detské menu, na dlážke pred kozubom čakali hračky a prevaľovali sa tu mäkké farebné vankúše, steny zdobili detské výkresy, strop-konár, na ktorý si bežne vešajú posledné výtvarné počiny, v predizbe sa ešte pracovalo na dobudovaní vstavanej skrine. Domáca pohoda.
Inšpirácie podľa Osamu Okamuru:
|
Zamyslenie

Osamu Okamura spolu s architektkami Milenou Galátovou a Evou Eichlerovou navrhli „malý dom oblečený zvnútra i zvonku s ohľadom na každý centimeter, na konkrétne miesto a ľudí. Hľadal som spôsob, ako splniť všetky pravidlá územného plánu a pritom dať tomuto domu výnimočnosť, s ktorou mäkko zapadne do údolia bez výrazného gesta, ktoré by tu kričalo,“ doznáva architekt. Zenový pokoj minimálnemu domu nezobrala ani okolitá katalógová zástavba.
Architektúra objektu: Osamu Okamura
Interiér domu: Eva Eichlerová, Milena Galátová
Stavebná spolupráca: Martin Sadílek, Petr Kolář
Štúdie miesta a škice a návrhy domu: 2004
Projekt a technické výkresy: 2004 – 2005
Začiatok a koniec výstavby: 2005 – 2008
Obytný priestor: 594 m3
Zastavaný pozemok: 140 m2
Marína Ungerová
Foto: Dano Veselský











