Z reštaurácie rodinný dom
Z ruín bývalej reštaurácie v Modre-Harmónii, ktorá je už vyše storočie príjemným výletným miestom s výbornou klímou, sa zrodil obytný dom. Stavba pochádza zo začiatku 20. storočia. Neskôr tu bola prevádzka známeho Kača baru, kde sa pomestilo aj 400 ľudí. Na začiatku 90. rokov objekt vyhorel, ostal spustnutý a zanedbaný.
Podobný osud mali mnohé objekty v Harmónii. Služby v rámci cestovného ruchu ponúka v lokalite už len niekoľko prevádzok, predsa len, časy aj klientela sa zmenili a z víkendových návštevníkov sa dá uživiť len veľmi ťažko.
Genius loci v hlavnej úlohe
Objekt bývalého Kača baru kúpil v roku 2007 investor Radoslav Kolesár, ktorého očarila lokalita a aj samotná ruina. Napriek tomu, že pamiatkari na objekt nemali žiadne požiadavky a investor mohol zvyšky reštaurácie spolu s jej zašlou slávou zrovnať so zemou, neurobil to. „Nechal som sa viesť geniom loci a tým množstvom energie, ktoré sa tu za tie dlhé roky nahromadilo.“ Vrchná časť stavby bola kedysi z veľkej časti drevostavba, z ktorej po požiari veľa neostalo. Najviac zachovaného muriva je v polozapustenom suteréne, vstupné podlažie je takmer celé nové. Podstatné je však to, že investor plne rešpektoval pôvodný objem objektu. K spolupráci na projekte oslovil architektku Gabrielu Fukatchovú z Ateliéru Modulor.
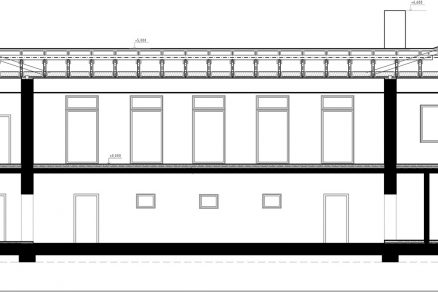
Zrekonštruovaná stavba kopíruje pôdorys bývalej reštaurácie, z uličnej strany ostáva jednopodlažná ako kedysi a jednoduchá sedlová strecha príjemne zapadá do lokality. V príbehu tohto domu nehrá hlavnú úlohu výnimočná architektúra. Možno by sa dala dokonca položiť otázka, čím je vlastne objekt zaujímavý, ak nie svojou architektúrou? Biela omietka na fasáde, jednoduchý raster okenných otvorov v kombinácii s modernými vstupnými dverami v tmavosivom odtieni a veľkými garážovými vrátami na prvý pohľad vyzerajú, akoby sa tandemu architektka–investor minula kreativita. Záhrada, ktorej dominuje na všetkých úrovniach len vysiaty trávnik a niekoľko zachovaných vysokých stromov, tento dojem ešte umocňuje. Obhliadku sme podnikli v krásny jesenný deň, keď októbrová príroda ukazuje v Harmónii celú svoju farebnú paletu, a všetky diely mozaiky odrazu zapadli do seba.
S obrazom v kuchyni
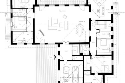
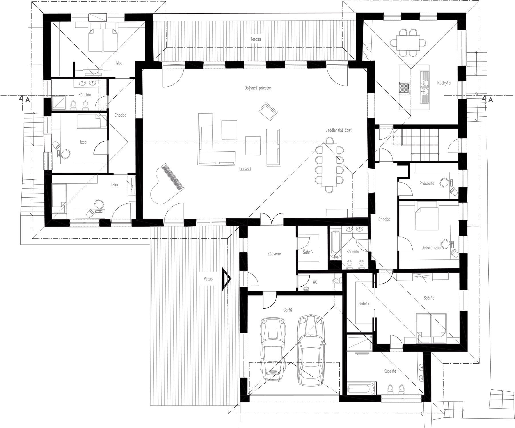
Aj v tomto prípade platí, že menej je viac. Zo zanedbaného objektu bývalej reštaurácie sa totiž investor rozhodol postaviť rezidenciu pre svoju rodinu. Rezidencia znie možno trochu nadnesene, obytné je len prízemie, pravdou však je, že priestory sú veľkorysé. Srdcom domu sa stal rozľahlý obývací priestor, kde kedysi bývala hlavná jedáleň reštaurácie. Rodine dnes poskytuje jedinečný priestorový aj vizuálny zážitok vďaka priamemu kontaktu s okolitou prírodou. Francúzske okná sa otvárajú smerom do malebného údolia a prepojenie funguje pomocou terasy po celej dĺžke stredného traktu. Terasa si zachovala pôvodnú výbornú polohu, pre rodinný život ideálnu. Ranné slnko ju v letných mesiacoch zalieva príjemným, ešte nie horúcim teplom a počas dňa sa terasa dostáva do tieňa domu. „Dom bol vlastne v dezolátnom stave. Historických fotografií sme našli málo, architektonicky nebolo veľmi na čo nadväzovať. V tesnom susedstve bola kedysi malá vilka Etelka, ale ani tú sa nepodarilo zachrániť.“ hovorí Radoslav Kolesár.
„Podarilo sa nám však zachovať a aj na pôvodné miesto uložiť kamennú časť pôvodného zábradlia.“ Časom aj klímou poznačený kameň je tak v zaujímavom kontraste k zvyšku exteriéru domu, ktorý je kompletne z nových materiálov. Na obývací priestor nadväzuje veľká kuchyňa. Zo zariadenia interiéru je jasné, že domáci pán má rád výtvarné umenie, ale najkrajšie obrazy má predsa len v kuchyni. Veľké okná, ktoré pri rannej kávičke ponúkajú nádherný výhľad do okolia, zatienia ostatné človekom vytvorené umelecké diela. V bočných traktoch domu má rodina svoje zázemie: spálne, kúpeľne, pracovne. Roky strávené na stavbe vnukli investorovi zaujímavú podnikateľskú myšlienku. Keďže v suteréne sa podarilo zachovať veľkú časť pôvodných priestorov vinárne, rozhodol sa ich v budúcnosti využiť na organizovanie rôznych akcií, svadieb či firemných večierkov. Napokon ešte možno vzkriesi bývalú slávu objektu v spojení príjemného s užitočným.
Rodinný dom (rekonštrukcia)
Miesto: Modra–Harmónia
Investor: Radoslav Kolesár
Zodpovedný projektant: Ing. arch. Gabriela Fukatschová, Ateliér Modulor
Celková podlahová plocha domu: 757 m2
Spevnené plochy: 220 m2
Modra – Harmónia TEXT: Mária Nováková, Foto: Dano Veselský, Dokumentácia: Modulor
Článok bol uverejnený v časopise ASB.



















