Vila pod Zoborom
Tento typ rodinného domu sa v Nitre dá naozaj očakávať presne tam, kde stojí – pod Zoborom. Viac ako exkluzívna poloha či vonkajší výraz nás tentokrát zaujímalo, čo sa skrýva dnu.
Ale predsa len začnime von, lebo exteriér formuje vnútrajšok. Čistá a jednoduchá elegantná hmota bola maximálne zredukovaná, aby vynikli elementárne formy a dosiahla sa vysoká estetická úroveň na princípe pravdivosti materiálov použitých v minimálnej miere pestrosti – aj o tomto hovorí úvod sprievodnej správy ku koncepcii návrhu vily. Čo to znamená v praxi? Že tam nie je nič, čo by zavadzalo.
Horizontálne radenie hmôt a pásu okien voľne plynie po fasáde, veľké zasklené plochy sa striedajú s bielou omietkou, evidentná je snaha o splynutie s pozemkom a dosiahnutie harmónie medzi reprezentatívnou funkčnosťou a architektonickou pokorou. Inak povedané, maximálne minimum prostriedkov, ktoré by rušili koncept. Za dverami hlavného vstupu situovaného pri „námestíčku“ s parkoviskom žije trojčlenná rodina.
S vylúčením zbytočností
Prvý dojem z interiéru bol jednoznačný: bez zbytočných výčnelkov. Všetko, čo by mohlo narúšať plynulosť línií, bolo ukryté a doslova „upratané“. Potvrdila to aj následná prehliadka domu a rozprávanie jeho majiteľa, ktorý sa z právnika zmenil počas výstavby na stavbyvedúceho a technológa v jednej osobe. Vzduchotechnika sa skryla pod sadrokartónový podhľad, rozvody sietí hi-fi techniky a internetu pod drevenú dlažbu, „ostrov“ s barovými stoličkami a kuchynská linka so spotrebičmi lícovali ako polystyrénová tvarovka v obvodovej stene.
„Interiér vyplýval zo samotnej konštrukcie a dispozície domu a som rád, že majitelia súhlasili s názorom, že niektoré veci netreba komplikovať,“ vysvetlil architekt Milan Csanda. „Pri tvorbe interiéru som vysvetľoval, že nemôžeme ísť do typového nábytku, a preto sme hľadali veci šité na mieru. Našli sme ich v podobe stolára Emila Belicu, ktorý sa stal hlavným dodávateľom interiérových prvkov.
S majiteľmi sme si porozumeli a komunikácia sa dostala do roviny, že schválili naše návrhy, ale realizáciu už nechali na mňa a realizátora. Niekedy je totiž veľmi komplikované vysvetľovať do detailov postupnosť a koordináciu stavebných procesov.“
Ani v spálni rodičov nie je nič, čo by zavadzalo čistým líniám.
Slow design
Tvorba interiéru sa pokojne môže nazvať „slow design“. Na všetko, aj ten najmenší detail, sa robili výkresy, o konkrétnych postupoch sa veľa diskutovalo, aj preto od návrhu po konečnú realizáciu uplynulo niekoľko rokov. Začalo sa vlastne hneď po ukončení hrubej stavby. Už vtedy sa museli zameriavať bezzárubňové dvere, ktoré siahajú až po strop a sú jedným z charakteristických prvkov interiéru.
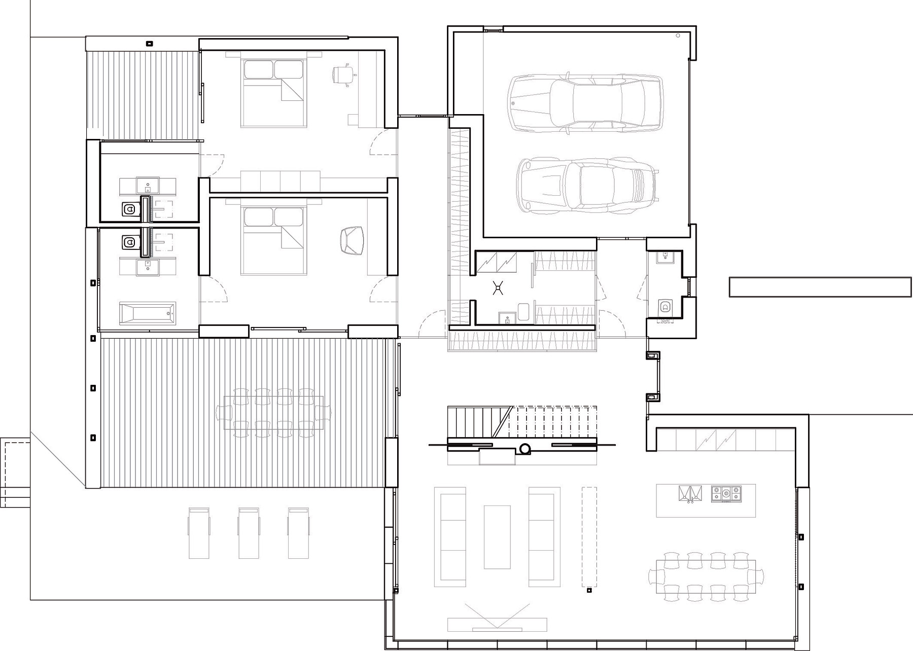
Ďalším je polyfunkčný šatník, ktorý je vpísaný do pôdorysu domu a dá sa doň ukryť nielen oblečenie či topánky, ale aj domová technológia s rekuperáciou. Dokonca sa doňho dajú zasúvať dvere, ktoré vytvárajú pokojnejšie zóny v dome a oddeľujú dennú a nočnú časť. Od šatníka v tvare veľkého písmena U vedú cesty do izieb. Tá hlavná ide do centrálneho priestoru domu – obývačky s kuchyňou a mohutným jedálenským stolom, ktorý má úctyhodných 3,6 m.
Kúpeľňa rodičov s veľkými priehľadmi do krajiny a dizajnovou vaňou Victoria + Albert
Sadne si k nemu až 12 ľudí. Všetko je prevažne pokryté dyhou z amerického orecha a pýši sa elegantne tvarovanými detailmi. Ide o nábytkové hrany v dvierkach, ktoré sú zrezané pod uhlom 45 stupňov a potiahnuté antikorom. Takto je „skosený“ aj masívny stôl, čím sa jeho takmer poltonová hmotnosť opticky pretavuje na akoby beztiažový stav.
V duchu elipsy
Nad jedálenským stolom, ale aj nad sedačkou v obývačke je strop zdobený plastickým elipsoidným tvarom, z ktorého visia rovnako zaoblené lampy. „Pravouhlé“ prostredie tak získalo príjemné zmäkčenie. Na prízemí sú ešte spálňa a detská izba dievčenského ladenia, pričom každá má svoju kúpeľňu. Všetky priestory zjednocuje dizajnérsky štýl, pri vani, umývadlách, lampe v detskej izbe či pri detskej stoličke sa dá nájsť elipsoidný tvar zo stropu obývačky.
Všadeprítomné veľké okná ponúkajú panoramatický výhľad s neodbytným motívom Nitrianskeho hradu. Odkiaľ je naň najlepší výhľad? Odvšadiaľ. Ale z vonkajšej terasy na poschodí azda najlepšie vidieť, ako je dom dômyselne skomponovaný tak, aby sa zdôraznili nitrianske dominanty: Zobor a hrad.
![]() |
| Nitriansky hrad je pohľadovou dominantou. |
A keď sme už hore, nachádza sa tam izba, ktorá mala byť pôvodne detskou, no dnes sa jej hľadá uplatnenie a majitelia jej hovoria hosťovská. A nezabudnime ani na výrazný výtvarný prvok, ktorým je 6 m vysoká stena pri schodisku. Je na nej abstraktný motív, ktorého autorkou je profesionálna nitrianska výtvarníčka Katarína Fumačová Jahnová.
Čistá a jednoduchá elegantná hmota sa premietla aj do interiéru.
Zatiaľ čo majiteľ vystupuje ako stavebný technik a obnovovateľ nádherných tehlových vínnych pivníc pod celým pozemkom, jeho manželka (taktiež právnička) udržuje v dome krehkú rovnováhu. So ženským šiestym zmyslom usporadúva v interiéri veci, ktoré robia život lepším. Vila pod Zoborom k takým patrí.
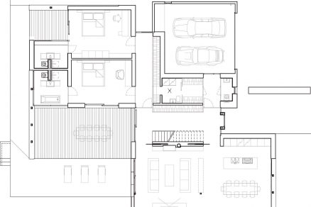
Pôdorys 1. NP
VILA POD ZOBOROM
Miesto: Dolnozoborská ulica, Nitra-Zobor
Architektonický návrh: Zuzana Švikruhová a Milan Csanda, 2010
Návrh interiéru: Milan Csanda, spolupráca Norbert Dúbravský, 2012 – 2013
Dokončenie interiéru: jar 2016
Úžitková plocha: 224 m2 (1. NP) + 56 m2 (2. NP) = 280 m2
Zastavaná plocha: 266 m2
NITRA
TEXT: ĽUDOVÍT PETRÁNSKY,
FOTO: IGOR TROMBITÁŠ,
DOKUMENTÁCIA: AK CSANDA-PITERKA
Článok bol uverejnený v časopise ASB 4/2017.

















