Vila na sile
Keď neďaleko centra Olomouca vznikala vila manželov Králíkovcov, medzi ľuďmi sa šírili dohady, čo vlastne vyrastie na dvadsaťpäť metrov vysokom sile. Namiesto pristávacej plochy pre vrtuľníky či bazéna s výhľadom na mesto tu nakoniec stojí vila od architektov Tomáša Pejpka a Szymona Rozwałku.
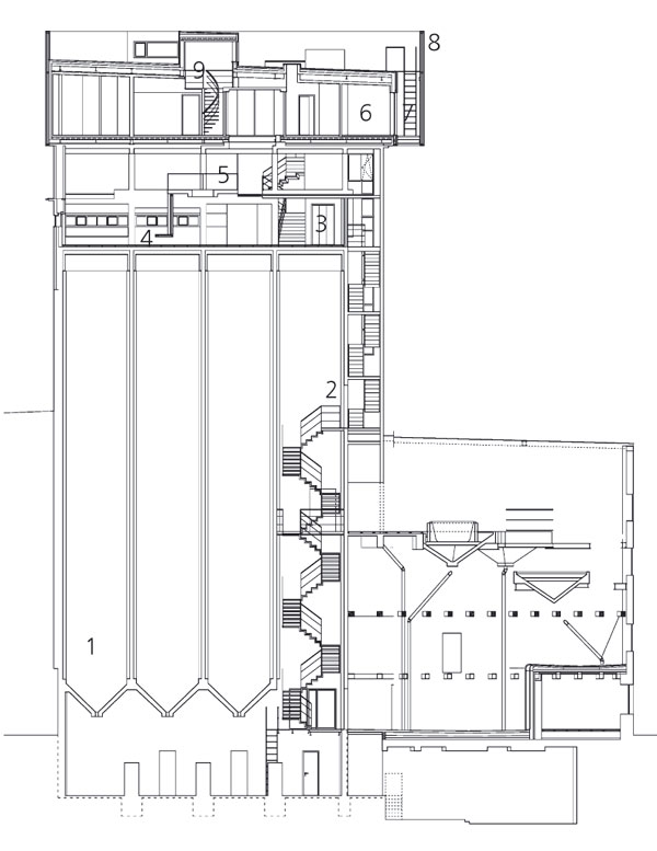
Stavba prešla dlhým vývojom, pri ktorom sa ako prvá zrodila myšlienka na zachovanie hornej časti sila. Potom bolo potrebné vyriešiť statické problémy, vyčistiť zásobníky na obilie aj všetky podzemné priestory. Nakoniec sa budova bývalého sila stala „iba“ základovou doskou, na ktorej vyrástla dvojposchodová vila s veľkorysým obytným priestorom a vysokou atikou. Kváder domu je asymetricky vysunutý do priestoru a je takmer celý omietnutý nabielo.

Bunky sila tak ostali prázdne, iba do dvoch z nich na južnej strane je osadené schodisko a výťah. Práve ten je hlavnou spojkou do bytu – vystúpiť z neho môžete buď v hlavnej obytnej miestnosti, alebo na poschodí spální a kúpeľní. S fungujúcim výťahom je tak vila bezbariérová.
Obývačka ako bazilika
„Keď sme s architektmi premýšľali nad dispozíciou, snažili sme sa predstaviť si, ako vlastne žijeme,“ hovorí Barbora Králíková. „Ráno vstanem a čo urobím ako prvé? Kde budem mať oblečenie? Topánky? Veľa času sme strávili akýmsi virtuálnym žitím, takže neskôr sme sa v skutočnom dome celkom dobre orientovali.“
Ale podobu interiéru neurčovali iba praktické hľadiská. Architekti Pejpek a Rozwałka chceli nadviazať na industriálne prvky bývalého sila, preto navrhli dom, ktorý čerpá z priemyselného odkazu. A výsledok stojí za to. Kreatívny prístup architektov v kombinácii s praktickosťou investorov dali možnosť vzniknúť jedinečnému priestoru.
Obývacia izba, ktorá je voľne prepojená so vstupnou halou, kuchyňou aj pracovňou na medziposchodí, má úctyhodnú svetlú výšku – viac než štyri a pol metra. Z troch strán sú steny v hornej časti zasklené, takže svetlo do miestnosti prúdi už od rána a výraz izby sa s prichádzajúcim večerom mení spolu s povahou osvetlenia.
Ďalšie okná sú v spodnej polovici stien. Sú menšie, a osadené vždy podľa potreby – v západnej časti izby, kde je pohovka a kreslá, sú okna väčšie a položené o niečo vyššie, na druhej strane, v kuchynskom kúte s jedálňou sú navrhnuté nízko. Najlepší výhľad je z tých priamo pri veľkom jedálenskom stole. S obedom na tanieri sa rodina a jej hostia môžu kochať výhľadom na historické centrum Olomouca, ktoré je v tomto malom výseku rovnako krásne ako povestné veže českého hlavného mesta.
Neobyčajné technické riešenia

„To znamená, že musíme mať napríklad vlastné vysokotlakové vodné čerpadlo, vlastne automatickú tlakovú stanicu. Na prevádzku výťahu musíme spĺňať všetky zákonné normy, mať servisnú zmluvu, nechávať ho pravidelne kontrolovať…“ K ďalšiemu nevyhnutnému vybaveniu, ktoré si pri návšteve domu ani nevšimnete, patria tiež závesy pre horolezcov na údržbu fasády, a aj umývanie okien musia majitelia prenechať profesionálnej firme: „Jednu sme si objednali, a oni štrnásť dní premýšľali, kým navrhli, akým spôsobom umyjú všetky okná,“ vysvetľuje Barbora Králíková.
Veľkorysý priestor pre rodinný život
Interiér domu je jednoduchý, triezvy, ale nie studený. Dojem útulnosti vytvára najmä drevo a príjemná prírodná farebnosť. Za dlhý stôl z tmavého dreva by mohla zasadnúť takmer celá vláda, dohneda je zafarbená tiež pohovka a farebne sa s ňou zhodla aj drevená knižnica plná hnedých a béžových chrbtov kníh. Smotanová je ďalšia farba, ktorú v interiéri nájdete: na malom koberci, niekoľkých taburetkách či drobných dekoračných doplnkoch. A nakoniec je tu upokojujúca zelená, ktorej hlavným zástupcom je doska kuchynskej linky vyrobená z lešteného mramoru.
V južnej časti je hlavný obytný priestor rozdelený medziposchodím, na ktorom sa nachádza pracovňa. „Každé z detí má svoju izbičku, a tak som mala strach z toho, že prídu domov a zatvoria sa do nich,“ vraví majiteľka. „Ale milo nás prekvapili tým, že do mezonetu, ktorý bol pôvodne plánovaný ako čitáreň, si dali svoje počítače.“ Z medziposchodia je prístup aj na dva balkóny: jeden ponúka výhľad na staré mesto, druhý opačným smerom, na perifériu Olomouca – na tejto strane nájdeme aj malú zelenú záhradku. Nie je ťažké si predstaviť, ako obyvatelia vily v lete na terase raňajkujú a pozorujú hemženie obyvateľov mesta pod nimi.
![]() |
![]() |
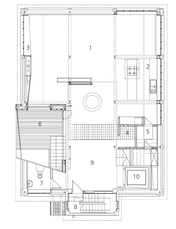
| Pôdorys základnej úrovne hlavného obytného priestoru 1 – hlavný obytný priestor, 2 – kuchyňa, 3 – kozub, 4 – šatňa, 5 – komora, 6 – západná terasa, 7 – WC, 8 – schodisko, 9 – hala, 10 – výťah |
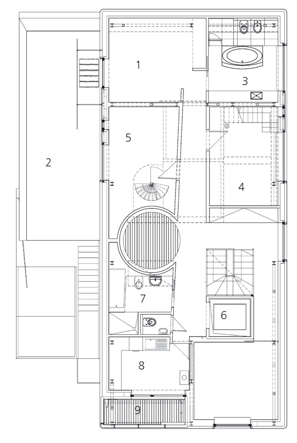
Pôdorys mezonetovej úrovne hlavného obytného priestoru 1 – spálňa rodičov, 2 – terasa, 3 – kúpeľňa rodičov, 4, 5 – detské izby, 6 výťah, 7 – kúpeľňa detí, 8 – zázemie, 9 – hospodársky balkón |
Ďalšie úrovne a ďalšie výhľady
Intímne časti vily (spálne a kúpeľne) sú na druhom poschodí. Deti majú svoje izby každé zvlášť a navyše dvojúrovňové: postele sa nachádzajú na vyvýšenom poschodí a vytvárajú tak akési súkromné hniezdočká.
Rodičia majú neveľkú spálňu s vlastnou kúpeľnou a ani tu si architekti nenechali ujsť príležitosť pohrať sa s výhľadom. Nebolo by preto vôbec čudné, keby rodine rapídne stúpla spotreba vody – terapii v kombinácii plnej vane a výhľadu na mesto sa totiž len ťažko odoláva.
Spálňu rodičov spája okno s druhou zelenou terasou, ktorá nemá zábradlie, ale ako poznamenávajú majitelia, všetci obyvatelia domu sú už dostatočne rozumní na to, aby vážili svoje kroky. Doslova. Rovnaký prístup je použitý aj v mezonete v hlavnom obytnom priestore – v oboch prípadoch vďaka riešeniu bez zábradlia vynikne jednoduchosť a veľkorysosť návrhu, navyše z priestoru dýcha akási dôvera či vyzretosť, ak možno v prípade architektúry hovoriť o podobných vlastnostiach.
Ďalšia cesta domom je pre odvážnych – vedie do miestnosti na domáce práce, kde nájdu práčku a priestor na sušenie bielizne, a ďalej cez hospodársky balkón po rebríku hore na strechu.
Už len samotný vstup na balkón vyžaduje najmä od tých, ktorí trpia strachom z výšok, značnú dávku sebazaprenia. Podlaha je totiž z roštu, takže si človek môže vychutnať celých tridsať metrov rovno pod sebou. Odmenou je však výhľad zo strechy. Bezpečnosť tu zaručuje vysoká atika (i keď, pravdu povediac, atika skrýva predovšetkým technické prvky výťahu a vyvýšené časti detských izieb).
Celoročné vodné radovánky
Aj keď zásobníky pod vilou ostali prázdne a nevyužité, je tu jedna úroveň, ktorá si našla nový obsah. Je to strecha budovy, ktorú k silu pristavali a v ktorej sa kedysi sušilo obilie. Potom, čo vyhorela, ostali z nej iba drevené hranoly, ktoré architekti zachovali a teraz pri dobrom svetle vytvárajú vo vstupnom priestore neopakovateľnú atmosféru. Nad ne navrhli tvorcovia terasu a na tú si majitelia umiestnili celoročne používaný masážny bazén. Je vonku, cudzím pohľadom však neprístupný, iba zhora z bytu možno nahliadnuť, čo sa dolu deje.
Celý komplex ráta aj s návštevami hostí. Tí majú svoju vlastnú izbu so zázemím a kuchynkou na prízemí za vchodovými dverami. Hostia a majitelia sa tak nemusia vôbec rušiť, a zároveň sú si nablízku, v jednom dome.
Idea domu vo výške dvadsaťpäť metrov sa po bližšom preskúmaní nezdá až taká čudná. „Chceli sme bývať čo najbližšie k centru a zároveň mať čo najviac súkromia,“ upresňuje základný zámer Radim Králík. Vila na vrchu budovy sila spĺňala obidve požiadavky. Odvážny investorský a architektonický počin ocenil pri návšteve Olomouca aj architekt Kaplický. Aj keď biely kváder na ošarpanom sile nemusí imponovať každému, stavba má mnoho nadšených ohlasov. Dobre navrhnutých domov a bytov je totiž málo.

Miesto: Olomouc – Tržnice
Investor: Barbora a Radim Králíkovi
Autori: Ing. arch. Tomáš Pejpek, Ing. arch. Szymon Rozwałka (C+HO_aR)
Spolupráca: Ing. arch. Paweł Wachnicki, Pavel Martinka, Ing. arch. Alice Michálková, Ing. arch. Grzegorz Gogolin, Ing. arch. Alexandra Rachwalská
Statické riešenie: Ing. Daniel Lemák, Ph.D. (Statika Olomouc, s. r. o.)
Projekt: 2004–2006
Realizácia: 2005–2007
Zastavaná plocha: 260 m2
Podlažná plocha – bývanie: 320 m2
Obstavaný priestor: 6 500 m3
Hana Roguljič
Foto: Mirek Kolčava













