Vďaka prístavbe dom dostal srdce, ktoré mu predtým chýbalo
Projekt Brunswick West House znamenal malú, ale veľmi významnú zmenu v charaktere malého austrálskeho domu. Architekti zo štúdia Taylor Knights vytvorili prístavbu, ktorá spojila pôvodný dom s veľkorysou záhradou, a domácim tak umožnili funkčne využívať vlastný pozemok i celý priestor domu každý deň.
Otvorenie do záhrady
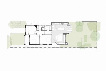
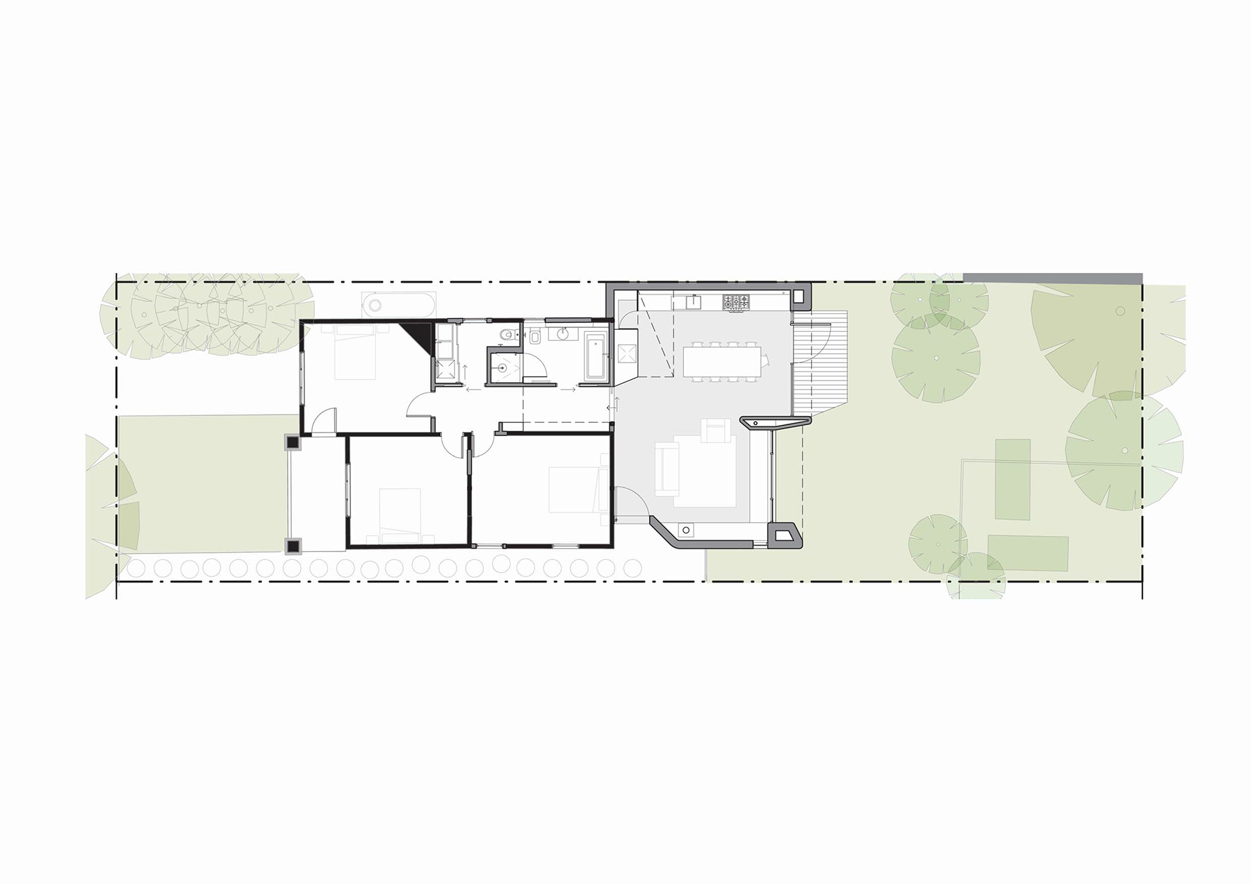
Nová prístavba sa dá vnímať ako prechod medzi súkromnými miestnosťami v dome a vonkajším prostredím s krásnou záhradou. Práve na tomto mieste našlo funkčné využitie umiestnenie spoločnej obývacej miestnosti a jedálne s kuchyňou. Otvorením veľkých dverí je možné spojiť interiér s drevenou terasou, zväčšiť tak obytný priestor a vytvoriť priamy kontakt s prírodou.
Aby sa nemuselo búrať a meniť
Architekti vysvetľujú, že podstatou ich práce bolo vytvoriť jednoduché a účinné riešenie, ktoré by zabránilo potrebe celkovej rekonfigurácie existujúceho domu. Nová úprava – prístavba bola podstatne jednoduchšia, ale i lacnejšia cesta. Tento prístup umožnil domácim dnes využívať dve funkčne odlišné časti domu, čo dovtedy nebolo reálne. V jednej časti s pôvodnými izbami sa nachádzajú súkromné miestnosti, spálne a hygienické zázemie. V druhej spoločenské priestory.
Eklektický a hravý
„Základom našej koncepcie bolo vytvoriť priestor, ktorý by bol pravdivým odrazom klientovej eklektickej a hravej senzibility. Bolo nevyhnutné vytvoriť lepšie prepojenie medzi dôležitými obytnými priestormi a záhradou… Dôležité bolo aj to, aby sme v rámci otvorenej dispozície vytvorili súkromie,“ vysvetľujú architekti.
Konečne má srdce
Vďaka novým priestorom dom dostal konečne svoje srdce, ktoré mu roky chýbalo. Nové obytné priestory sú umiestnené medzi troma plasticky murovanými stenami natretými nabielo. Tieto múry vytvárajú príjemné zákutia, pričom zároveň fungujú ako otvorený priestor. Nábytok je umiestnený tak, aby mali domáci vždy dobrý vzájomný očný kontakt, ale zároveň aj možnosť v pokoji relaxovať.
Čestné miesto má Kandinsky
Keďže majiteľ domu má bohaté zbierky umeleckých diel a literatúry, i na to bolo treba brať ohľad. Rodina špeciálne obľubuje Kandinskeho a jeho „Upward (Empor)“, 1929, ktorý má čestné miesto oproti oknám v novopostavenej prístavbe. Architekti priznávajú, že čerpali inšpiráciu z niektorých geometrických a tónových prvkov umeleckých diel aj pri riešení prístavby.
Brunswick West House v skratke
Architektonický ateliér: Taylor Knights
Hlavný architekt: Peter Knights
Lokalita: Brunswick West, Austrália
Plocha: 50 m2
Rok realizácie: 2017
Sabína Zavarská
Foto: Tom Blachford

















