Úzky dom vo Švajčiarsku klame telom
Úzky a vysoký dom, ktorý v švajčiarskom Rodersdorfe naprojektovali architekti zo štúdia Berrel Berrel Kräutler Architekten, z niektorých uhlov pripomína modernú stodolovitú stavbu, no z iných ju úplne popiera. Z istého uhla pohľadu totiž nevidíte nič okrem nie najväčšieho kovového obdĺžnika s tmavými dverami. Napriek tomu poskytuje dostatok priestoru na príjemné bývanie pre rodinu.
Fasáda podčiarkuje nezvyčajný tvar domu
Dom z drevených prefabrikátov stojí na svahu s výhľadom na krásne vrchy Alsaska. Koncept domu šikovne rešpektuje špecifiká miestnych stavebných zákonov. Jeho interiér je rozdelený do rôznych úrovní, ktoré ponúkajú štyri nezávislé výškové úrovne. Nevšedne pôsobí fasáda vytvorená zo zliatiny medi a titán-zinku, dlhšie steny domu sú obložené drevenými lamelami. Podľa autorov projektu podčiarkujú materiály použité na fasáde domu výstredný objemový charakter dreveného domu. Vrchné podlažie domu tvorí štruktúra z dreveného plášťa namontovaná pod strechou.
Takmer žiadne dvere
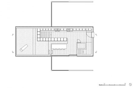
Svetlo do domu pomáhajú vniesť aj úzke svetlíky v streche, ktoré sa nachádzajú pozdĺž integrovaného plášťa. Drevená štruktúra rozdeľuje a spája jednotlivé priestory v interiéri, ktoré sú oddelené vždy prostredníctvom schodov, a tak sa nachádzajú na rôznych úrovniach. Vchod, šatňa, kuchyňa, jedálenský kút, obývacia izba a spoločenská miestnosť sú vlastne otvorené priestory, ale sú pritom zároveň samostatné. Na rôzne podlažia domu sa dostanete zo základného vstupného podlažia, všetko ostatné je umiestnené vyššie, nižšie je pivnica.
Presná práca tesárskych a stolárskych majstrov
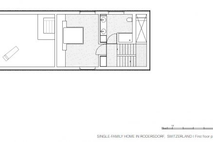
Do vyšších podlaží domu vedie hladké minimalistické schodisko z masívneho dreva. Spálňa, pracovňa a kúpeľňa sú oddelené vstavanými skriňami. Steny a dvere vytvárajú jednu rovinu, čo pôsobí elegantne a neruší interiér. Nevyhnutnosťou pri vytvorení tohto zaujímavého konceptu dreveného jadra domu bola presnosť remeselných prác, obzvlášť tesárstva, všetko totiž bolo vytvorená na mieru. Oddychový priestor pri najväčšej zasklenej stene domu poskytuje krásny výhľad na okolité lesy a zároveň je najsvetlejším miestom domu. V dome sa nachádza aj knižnica, dve kúpeľne, skladovacie priestory a pivnica.
Kuchynská linka ako súčasť dreveného jadra
Zariadenie interiéru je v súlade s jeho vnútorným prostredím tiež minimalistické. Napríklad kuchynská linka je vyrobená z rovnakého dreva ako celá drevená štruktúra domu. Do relatívne úzkeho priestoru sú zabudované nielen potrebné spotrebiče a dres, ale aj úložné priestory, ktoré sa nachádzajú v samostatnej kuchynskej linke aj oproti nej. Do istej miery paradoxne vyznieva schodisko zo vstupného podlažia, ktoré je vedené v tesnej blízkosti kuchynskej linky, architekti však určite vedia, prečo to tak vyriešili. Za drevenou stenou s úložným priestorom, vstavanou rúrou a chladničkou je veľký jedálenský priestor a schody na vyššie podlažie.
Rodinný dom v Rodersdorfe v kocke
Architekti: Berrel Berrel Kräutler Architekten
Miesto: Rodersdorf, Švajčiarsko
Plocha pozemku: 693 m2
Zastavaná plocha: 85 m2
Obytná plocha: 172,0 m2
Realizácia: 2015 – 2016
Sabína Zavarská
Zdroj: Berrel Berrel Kräutler Architekten
Fotografie: Eik Frenzel
























