Tri rôzne objemy spájajúce sa v kompaktný celok – rodinný dom Nučice
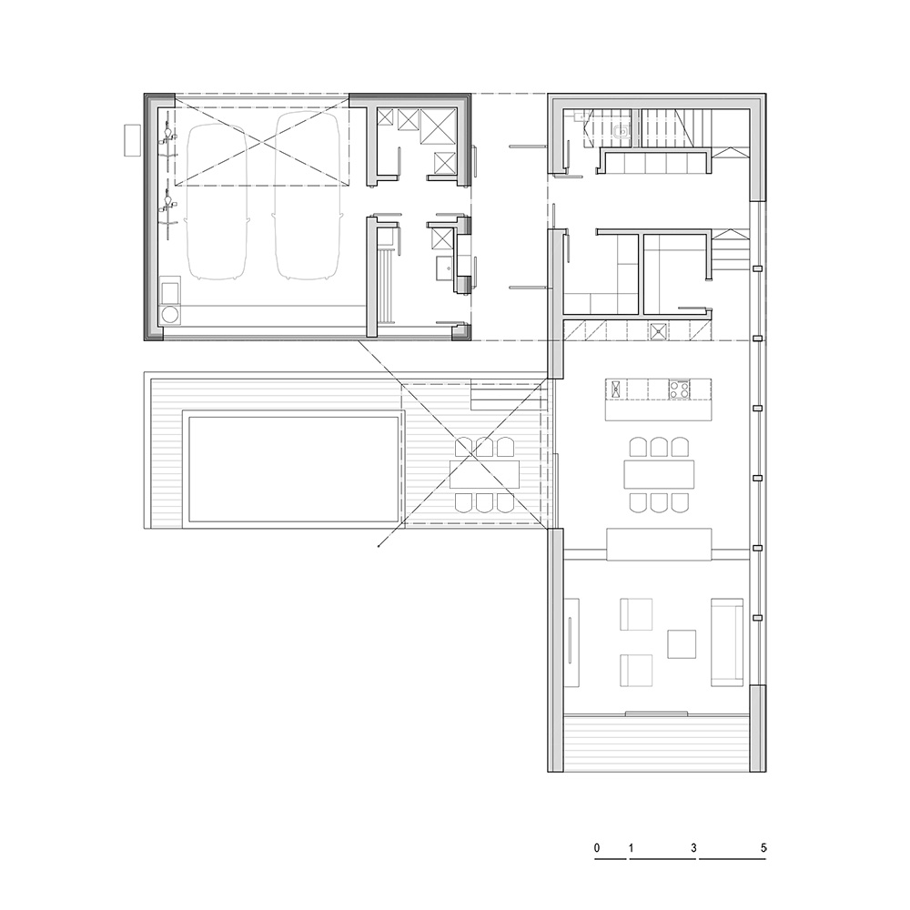
Tri hranoly, ktorých povrch je tvorený rôznymi materiálmi, sú základom pre originálny a pôvabný rodinný dom v českých Nučicích. Do domu sa vchádza v mieste stretu troch "kociek" (ako ich nazývajú autori projektu) a každá časť má svoje funkčné využitie.
Jednotlivé časti vyzerajú ako osobitné celky, avšak spolu tvoria harmonickú sústavu. Zadná časť, ktorá je otvorená smerom do záhrady, je jednoduchá, biela, s veľkým presklením v rámci obývačky. Je vsadená do svahu. Susediaca prízemná časť, ktorá sa tiahne smerom k ulici, tvorí akúsi bariéru medzi záhradou a ulicou a tým pádom zabezpečuje súkromie majiteľov. Táto časť je obložená vertikálne postavenými drevenými latkami.
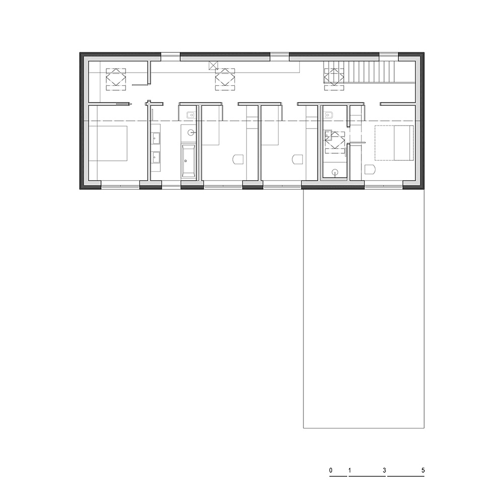
Obidve prízemné časti spája dlhý hranol v tvare nízkeho domu, ktorého povrchový finiš je veľmi netradičný – okrem sedlovej strechy sú totiž strešnými eternitovými šablónami pokryté aj vonkajšie steny poschodia. Celé opláštenie tejto nadzemnej časti teda tvorí tmavý obklad v rozmere 60 x 30 cm typu „anglický obdĺžnik“. Poschodová časť je nasmerovaná k slnku a dominuje celej stavbe nielen priestorovo a tvarovo, ale aj farebne a povrchovou štruktúrou.
Spolupráca architektov a klienta bola v tomto prípade bezproblémová a všetko šlo hladko. Klient mal totiž jasnú predstavu o funkčnosti svojho domu. „Spoločne sme rýchlo dospeli k základnej orientácii a hmotovému členeniu, prostredníctvom ktorého dom oddeľuje súkromný priestor záhrady od ulice,“ vyjadril sa na adresu príjemnej spolupráce architekt Petr Moráček. Čo bolo najťažšie v rámci plánovania obytného celku? A v čom musel klient plne dôverovať architektom? „Najťažšie bolo nájsť vizuálny výraz domu, keďže sme sa chceli vyhnúť zvyčajnej podobe dvojpodlažného domu prostredníctvom odlišne pôsobiacej prízemnej „prístavby“.
Napokon sme našli princíp troch objemov s vlastným výrazom v interiéri aj exteriéri. Počas upresňovania riešenia sme vyskúšali nespočetné množstvo variantov na vizualizáciách, modeloch aj na reálnych vzorkách. Predovšetkým riešenie poschodia domu s rovnakou fasádou, strechou a podhľadom vo vstupnej časti – zo strešných šablón – by nebolo možné bez obrovskej dôvery klienta,“ dodal architekt.
V rámci interiéru sa uplatňuje podobná materiálová a princípová kombinatorika ako v exteriéri. Biela časť slúži ako spoločenský priestor, ktorý zahŕňa obývačku, jedáleň a kuchyňu. Interiér kopíruje terén aj s jeho klesajúcou tendenciou. Využité sú najmä drevené a biele povrchy v kombinácii so skrytým osvetlením. V drevenej časti nájdeme epoxidovú podlahu, kovové dvere a celkovo táto časť pôsobí mierne industriálne, aj vzhľadom na jej technickejšiu povahu.
Zvonku kompaktne pôsobiaca „drevostavba“ je narušená iba garážovými dverami. Tmavé poschodie ukrýva žiarivý interiér, v ktorom prevažuje biela a žltá farba. Pomerne netradičná žltá podlaha je v ostrom kontraste s exteriérovým obkladom, vďaka čomu je dom vyvážený a pôsobí živo a dynamicky. Poschodie so štedrou výškou a klasickými štvorcovými oknami, zaliate svetlom prostredníctvom strešných svetlíkov, je ideálnym priestorom na relaxačné časti domu (spálne či kúpeľne).
Spojením jednotlivých funkčných zón sa architektom podarilo vytvoriť dom, v ktorom je možné od rána do večera vychutnávať slnečné lúče a užívať si dostatočné súkromie vlastného pozemku.
O architektonickom ateliéri:
Architektonický ateliér Mimosa sídli v Prahe. V rámci svojej činnosti dokážu profesionáli poskytnúť kompletný rozsah projektovej dokumentácie, pomôcť s výberom dodávateľov aj stavebným dozorom. Cieľom architektov je navrhovať nevšedné riešenia šité na mieru konkrétnemu klientovi. Svoje projekty zvyknú dotiahnuť do najmenších detailov a vízie či idey overovať na konkrétnych vzorkách a modifikovať až do takej podoby, ktorá dokonale vystihuje prianie klienta aj odborný vklad architekta.
Členovia: Petr Moráček, Jana Zoubková, Pavel Matyska, Kateřina Fryzelková, Lenka Pechanová
Prehľad:
- Názov: Rodinný dom v Nučicích
- Realizácia: 2014
- Spolupráca: Statikon Solutions
Text: Anna Martausová v spolupráci s Ing. arch. Petrom Moráčkom
Foto: Jakub Skokan, Martin Tůma (BoysPlayNice)
Zdroj: Mimosa




























