Švédski architekti navrhli inovatívnu stodolu
Inšpiráciou na vznik tejto netradičnej červenej drevenej stodoly, chaty či domu v prírode bola tradičná švédska hospodárska budova. Architekti z göteborského štúdia poňatie stodoly podstatne zmodernizovali a dali mu úplne nový význam. Pôsobivému domu a kontaktu s prírodou sa teší jeho majiteľ (bubeník) a jeho deti.
„Falu Rödfärg“ ako pocta minulosti
Rodinné sídlo sa nachádza na západnom pobreží Švédska a pre rodinu predstavuje únik v blízkosti oceánu. Stojí na okraji poľnohospodárskej pôdy, na mieste, kde stála v 19. storočí farma zničená požiarom.
Dom je fascinujúci svojou geometrickou jednoduchosťou a triezvymi tvarmi, oblečený je do vertikálnych latiek dreva natretých žiarivým odtieňom červenej. Táto farba je odkaz na konzervačné látky tradične používané na škandinávskych stavbách vo vidieckych oblastiach a býva označovaná ako „Falu Rödfärg“ – Falu červená.
Prvky stodoly a drevo aj vo vnútri
Ďalšími prvkami, ktoré napodobňujú klasické stodoly, sú veľké dvere a horizontálne pozdĺžne okná pripomínajúce hospodársku budovu, nie obytný dom. Aj do interiéru architekti vybrali jednoduchú materiálovú paletu. V celom interiéri dominuje drevo – od konštrukčných nosníkov cez drevovláknité dosky až po vstavaný nábytok z preglejky.
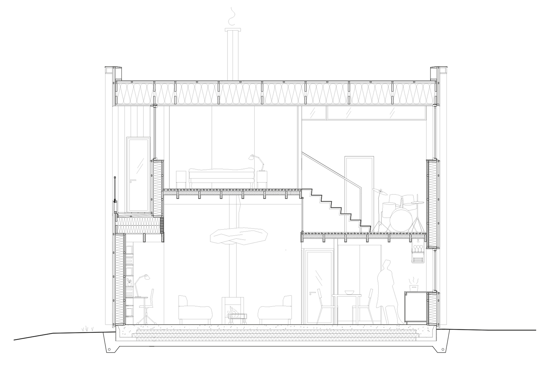
Dostatok súkromia aj priestoru pre spoločnosť
Dispozícia domu je navrhnutá tak, aby poskytoval dostatok priestoru na usporiadanie veľkých rodinných stretnutí, ale aby sa členovia rodiny zároveň cítili príjemne, harmonicky a v súkromí, keď je rodina sama. Ide o tri podlažia vrátane malej podkrovnej miestnosti, ktorá ponúka zaujímavý výhľad a príval denného svetla.
Preglejka a kontakt s prírodou
Architekti dokázali štvorcový pôdorys domu využiť veľmi prakticky. Otvorený plán domu pripomína klasické stodoly a zároveň umožňuje mať prehľad medzi jednotlivými podlažiami. Na prízemí sa nachádza spoločná obývacia miestnosť, na západnej strane je kuchyňa a jedáleň. Na jednej stene obytnej plochy s dvojitou výškou sa nachádza vstavaná polica z preglejky s praktickým rozkladacím stolom. Tento spoločenský priestor je možné otvoriť do záhrady v zadnej časti domu.
Miestnosti pre otca
Veľmi príjemnou oddychovou zónou je nika s posteľou za kuchyňou, ktorá je skvelým miestom na relax aj na čítanie. Na poschodí sa nachádzajú detské spálne a salónik – útočisko hlavy rodiny. Tu má totiž svoju súpravu bubnov. Jednu stenu salónika tvorí kovová sieťka, ktorá poskytuje výhľad do priestoru nižšie. Najmenšie je najvyššie podlažie, kam vedú schody priamo zo salónika. Tu sa nachádza otcova spálňa.
Červený dom pre bubeníka v kocke
Architektonické štúdio: Bornstein Lyckefors Architects
Dizajnový tím: Andreas Lyckefors (vedúci architekt), Per Bornstein, Johan Olsson, Caroline Jokiniemi, Viktor Stansvik, Monica Warwick, Emil Lundin, Edvard Nyman
Rok realizácie: 2016
Lokalita: Kärna, Västra Götaland, Švédsko
Plocha: 163 m²
Sabína Zavarská
Foto: Mikael Olsson


















