Štýlový a pohodlný prefabrikovaný hausbót
Prefabrikované, modulárne či montované domy zažívajú zlaté časy. Ich obľúbenosť vo svete stúpa úmerne s technologickými a materiálovými inováciami, ktoré z nich robia čoraz komfortnejšie a prístupnejšie bývanie. Medzi takéto stavby patria aj hausbóty značky DublDom, ktoré boli na trh uvedené už pred niekoľkými rokmi. Vyrábajú sa blízko Moskvy a prostredníctvom franchisingu postupne prenikajú do celého sveta.
Tieto vzhľadné drevené hausbóty sa vyznačujú jednoduchým funkčným dizajnom, vysokou odolnosťou a jednoduchou montážou. Sú teda vhodné nielen ako celoročne obytné menšie rodinné domy, ale aj ako dočasné domovy, dovolenkové sídla, prístavby rôznych ubytovacích zariadení či hosťovské domčeky oddelené od hlavného sídla hostiteľa.
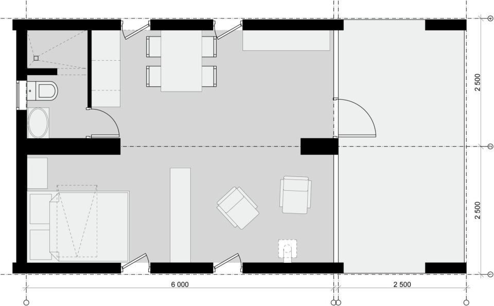
Prototyp úspešného DublDomu – hausbótu – je nainštalovaný na rieke Volge, tri hodiny autom severne od Moskvy, kde slúži ako hosťovská prístavba Hotela Paluba. Na ploche 26 m2 ponúka komfortné ubytovanie priamo na rieke. Stavba umiestnená nad pontónmi je plne modulárna, čiže sa dá rozšíriť, prípadne možno na požiadanie vyhotoviť iné pôdorysy či rozmery.
Otvorené vnútorné spoločné priestory sú presvetlené vďaka zasklenej fasáde. Spálňa a kúpeľňa sa nachádzajú v zadných častiach domu a ponúkajú dostatočné súkromie. V obývačke je navyše rozkladacia sedačka, ktorá slúži ako dvojlôžko pre prípadných návštevníkov či viacerých hostí. Interiér je obložený drevom (na vytvorenie príjemnej atmosféry malej chatky), exteriér zasa chráni odolný kovový obklad. Hausbót má v prednej časti dokonca aj príjemnú terasu, z ktorej je prístup priamo na privádzací mostík.
Prefabrikovaná stavba je celoročne obývateľná, čiže je zateplená a vybavená všetkými potrebnými napojeniami na siete. Zateplenie s hrúbkou 150 mm je nainštalované aj v oblasti strechy a podlahy. Dom vyhrievajú elektrické ohrievače, no vďaka malému objemu domu a kvalitnej izolácii sú náklady na vykurovanie veľmi nízke. Podľa želania zákazníka do domu možno zabudovať aj komín a malé kachle.
Text: Anna Martausová
Foto: dubldom.ru
Zdroj: smallhousebliss.com, dubldom.ru


















