Slamený dom púta geometrickou eleganciou
Na pobreží Baltského mora, v lotyšskej chránenej krajinnej oblasti Pape, vznikol projekt, ktorý už na prvý pohľad zaujme svojou jedinečnosťou.
Projekt z dielne lotyšského architektonického štúdia Archispektras je referenciou na trávnaté duny, prirodzene sa nachádzajúce v danej lokalite. Z tejto podoby pramení napokon aj jeho názov – Duna House.
Dom je prázdninovou rezidenciou vášnivého športovca, ktorý rád chodí na kitesurf spolu s priateľmi a rodinou. Aj preto sa nachádza iba 100 metrov od pobrežia, presne tak, aby jeho poloha zabezpečila majiteľovi komfortný prechod priamo do vĺn mora. Celkový dizajn domu korešponduje nielen s okolitou prírodou, ale aj s lokálnou zástavbou.
Charakterizuje ho nízky pozdĺžny profil a hojné využitie slamy ako strešnej krytiny. „Využitie slamy ako strešnej krytiny je pre túto oblasť tradičné a prirodzené,“ vysvetľuje architekt Aidas Kalinauskas. „My sme s materiálom pracovali takým spôsobom, aby bolo možné ho zapracovať do skulpturálnej podoby strechy a docieliť tak moderný dizajn, ktorý sa snúbi s tradičnými stavebnými postupmi,“ dodáva.
Slama v tvare, ktorý zvolili architekti, a najmä v kombinácii so zasklenými povrchmi, ktoré obopínajú plášť budovy, pôsobí skutočne nadčasovo a vzhľadom na prostredie prirodzene. Základom celej stavby je pevný oceľový rám, ktorý je kostrou tvarového riešenia krovu. Trstinová slama je umiestnená na doskách, ktoré tvoria vnútornú podobu strechy a zároveň zvonku pokrývajú aj štít strechy. V centrálnej drevenej časti strechy sa tiahne dlhý svetlík, ktorý je pre celkový dizajn kľúčový, pretože do priestoru prepúšťa potrebný objem svetla.
Na jednom konci budovy je obnažený oceľový rám ponechaný až do exteriéru – v tejto časti sa nachádza parkovacie miesto na auto. Spomínané zasklené časti plášťa budovy poskytujú majiteľom výhľad na more a okolitý horizont. Interiér je riešený v svetlých farbách, obložený lakovanou borovicou, a to z toho dôvodu, aby aj bez okien pôsobil vzdušne a prívetivo.
„Naším cieľom bolo, aby interiér pôsobil jemne, jednoducho a čisto,“ prezrádza Kalinauskas. „Veríme, že tento spôsob vnútorného usporiadania a dizajnu prináša majiteľom možnosť nerušene pozorovať okolie a užívať si svoj pobyt v srdci prírody,“ vyjadruje sa ďalej architekt.
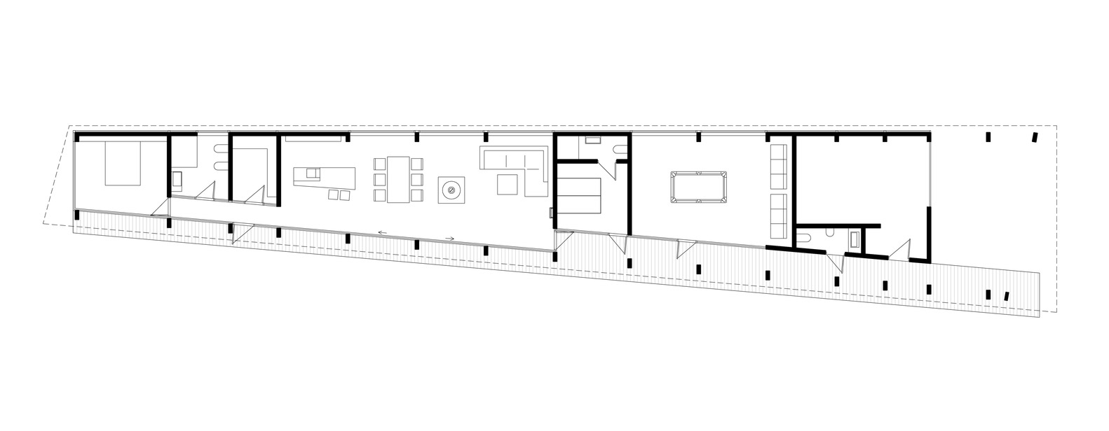
Takmer všetky časti interiéru sú riešené ako otvorený priestor. V centre budovy sa nachádza spoločenský priestor tvorený obývacou izbou, kuchyňou a jedálňou. Jediným spojivom medzi vysokým stropom a dolnou časťou je kozub, z ktorého sa tiahne komín do stredu štítu strechy. Komín je dlhý obdivuhodných 6 metrov.
Pri garáži sa okrem skladiska na športové vybavenie nachádza aj herňa s netradičným bledým biliardovým stolom.
Aj z tejto miestnosti je výhľad prostredníctvom zasklenej vonkajšej steny. Okrem toho sa v budove nachádzajú spálne a kúpeľne pre hostí aj domácich.
Prehľad:
Architektonické štúdio: ARCHISPEKTRAS
Lokalita: Pape, Lotyšsko
Plocha: 175 m²
Realizácia: 2015
Projektový tím: Aidas Kalinauskas, Vaidas Tamošiūnas
Text: Anna Martausová
Foto: Juozas Kamenskas
Zdroj: archispektras.lt





















