Sen o dome v Rezidencii 16,7
Je naším Opus Magnum – odpovedali architekti Pavel Suchánek a Dušan Krepop na otázku významu tohto rodinného domu v ich tvorbe. Výsledok im dáva za pravdu. Originálne tvary, plochy odstupňované vo farebných významoch, logická prevádzka, konštruktivistické línie, dômyselné pohľady, logické komponovanie hmôt, citlivá práca s detailom a dizajnom vnútorného prostredia, harmonické stieranie hraníc medzi exteriérom a interiérom či nadštandardné súznenie architektúry s aplikovanými výtvarnými dielami – to je len niekoľko momentov, ktoré tento dom posúvajú medzi to najlepšie, čo sa v tejto oblasti za posledné obdobie na Slovensku vytvorilo.
Bosou nohou na vlastnú trávu

Výsledkom je pocit, ktorý poeticky vyslovili aj samotní autori: „Z každej izby otvoriť stenu a vyjsť bosou nohou na vlastnú trávu. Pozdraviť vtáky a stromy. Pozrieť sa do diaľky, zaostriť na nekonečno a nadýchnuť krásu bytia.“ Samozrejme, aj tento pocit bol slovami autorov a investora „vybojovaný v nekonečných a často aj ostrejších diskusiách“, ale ako hovorí klasik, ťažko je žiť ľahko. Vysoká úroveň cieľov určila patričnú náročnosť kritérií.
![]() |
![]() |
Pôdorysy 1. podzemného a 1., 2., 3., a 4. nadzemného podlažia
Zaostrené na výraz
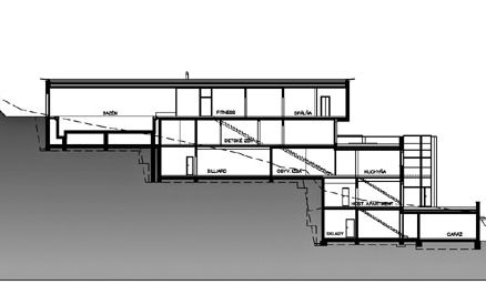
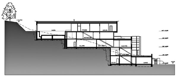
Rez
Základnou kostrou dispozície je sústava jednoramenných schodísk s komunikačnými halami, ktoré postupne stúpajú po severovýchodnej stene domu. Priehľady cez schodiská nahor i nadol vzbudzujú zvedavosť, otvárajú perspektívne výhľady do krajiny a dávajú tušiť dimenziu prostredia. Rozdielny dizajn jednotlivých schodiskových ramien, dynamika umelého osvetlenia s príznačnými konštruktivistickými líniami našepkávajú funkciu jednotlivých priestorov, celkovú kvalitu a atmosféru príjemného luxusu. K hlavnej komunikačnej osi schodísk sa smerom na juhozápad pripájajú obytné priestory domu – tie sú orientované na juh a juhozápad. Veľké otváracie plochy zasklených stien prepájajú jednotlivé priestory s rekreačnou záhradou.

Príroda a výtvarný rozmer
![]() |
![]() |
Aj pri týchto výtvarných dielach do architektúry cítiť vzájomnú prepojenosť, vedomie budovania organickej syntézy, ale i svojbytnej výpovednej hodnoty. Ilavského Hra o jablko s dĺžkou niekoľkých metrov je filozofický rébus, pôvabná vizuálna hra a zároveň hra o vzťahoch a o všetkom a všetkých okolo nás. Kondáčove plastiky sú zase kresbou v priestore, kde čiara vytvára líniu ubiehajúceho času, a zároveň svojím prirodzeným povrchom prinášajú sen o definícii niečoho krásneho.

Názov stavby: Rezidencia 16,7
Miesto stavby: Brusnicová ulica, Bratislava
Investor: súkromná osoba
Autori: Ing. arch. Dušan Krepop, Ing. arch. Pavel Suchánek
Spolupráca: Ing. arch. Ladislav Staňo, Ing. arch. Lýdia Adamcová
Výtvarné diela: Svetozár Ilavský, Ján Kondáč, Viktor Oravec
Obstavaný priestor: 3 250 m3
Celková úžitková plocha: 710 m2
Zastavaná plocha: 401 m2
Plocha zazelenaných striech: 205 m2
Plocha stavebného pozemku: 1 122 m2
Počet parkovacích miest: dve v garáži, tri-štyri v zakrytom priestore
Základné kapacity: byt na troch podlažiach, interiérový bazén a fitness, hosťovský apartmán, technická vybavenosť a servisné priestory, obytná – okrasná záhrada
Ľudo Petránsky
Foto: Ctibor Bachratý, Michal Suchánek

















