Rozprávková chalúpka na vidieku
Hovorí sa, že lepšie, ako opraviť starý dom, je postaviť nový. Lenže starý dom v sebe skrýva príbehy tých, ktorí v ňom žili predtým, a je aj dokladom zašlých čias. Jeden taký dom stojí na mierne svahovitom pozemku na okraji obce. Blízko je les a z domu je výhľad na rybník s mohutnými stromami. A majiteľ sa múdro rozhodol pre rekonštrukciu.
Podkrovný dedinský rodinný dom s čiastočným podpivničením z 1. polovice 20. storočia sa investor rozhodol upraviť, aby bol úplne funkčný a využiteľný na bývanie. Oslovil preto architektonický ateliér OK PLAN.
„Základnou myšlienkou bolo vrátiť existujúci objekt do pôvodnej podoby s novou prístavbou vstupu s dobovým výrazom,“ vysvetľuje Ing. arch. František Čekal, „ale tak, aby boli jasne čitateľné vrstvy pôvodnej stavby z 20. storočia i stavebných úprav v 21. storočí.“
Kontrast dreva a omietky
Neoddeliteľnou súčasťou domu je aj jeho vstupný priestor s novým vjazdom z kamenných kusov a oplotenie z gabionov. Prichádzajúci nemôžu prehliadnuť ani nové vonkajšie schodisko z dubových podvalov. Súčasná vstupná časť prístavby je postavená na mieste bývalej verandy. Do prístavby je situované vstupné zádverie a novovybudované hygienické zázemie.
Táto nová časť je materiálovo odlišná – latový obklad z cédrového dreva je v príjemnom kontraste s bielou omietkou pôvodného domu. Z cédrových dosiek sú aj žalúzie a terasa na juhu záhrady.
Súčasťou rekonštrukcie bolo okrem iných úprav aj zhotovenie novej hydroizolácie. Tehlové múry domu boli kompletne podrezané plechmi z nehrdzavejúcej ocele, ktoré boli narazené do soklového muriva. Steny sa zateplili kontaktným tepelnoizolačným systémom. Do priestorov na povale pribudlo obytné podkrovie a strešná krytina sa vymenila.
V pôvodných okenných otvoroch na 1. NP a čiastočne i v podkroví sú osadené repliky drevených špaletových okien, nové otvory v dome sú vyplnené hliníkovými oknami s izolačným trojsklom.
Podlahy sú z vrstvených dubových parkiet skladaných do vzoru „na remeň“. Rovnaký materiál bol zvolený aj na dvere, obklady stien a stropov a na nábytok.
Legenda k pôdorysom
Prízemie – 1. NP:
1 – vstupné zádverie
2 – WC
3 – schodisková hala
4 – kúpeľňa + WC
5 – spálňa
6 – kuchyňa
7 – jedáleň + obývacia izba
8 – vonkajšia terasa
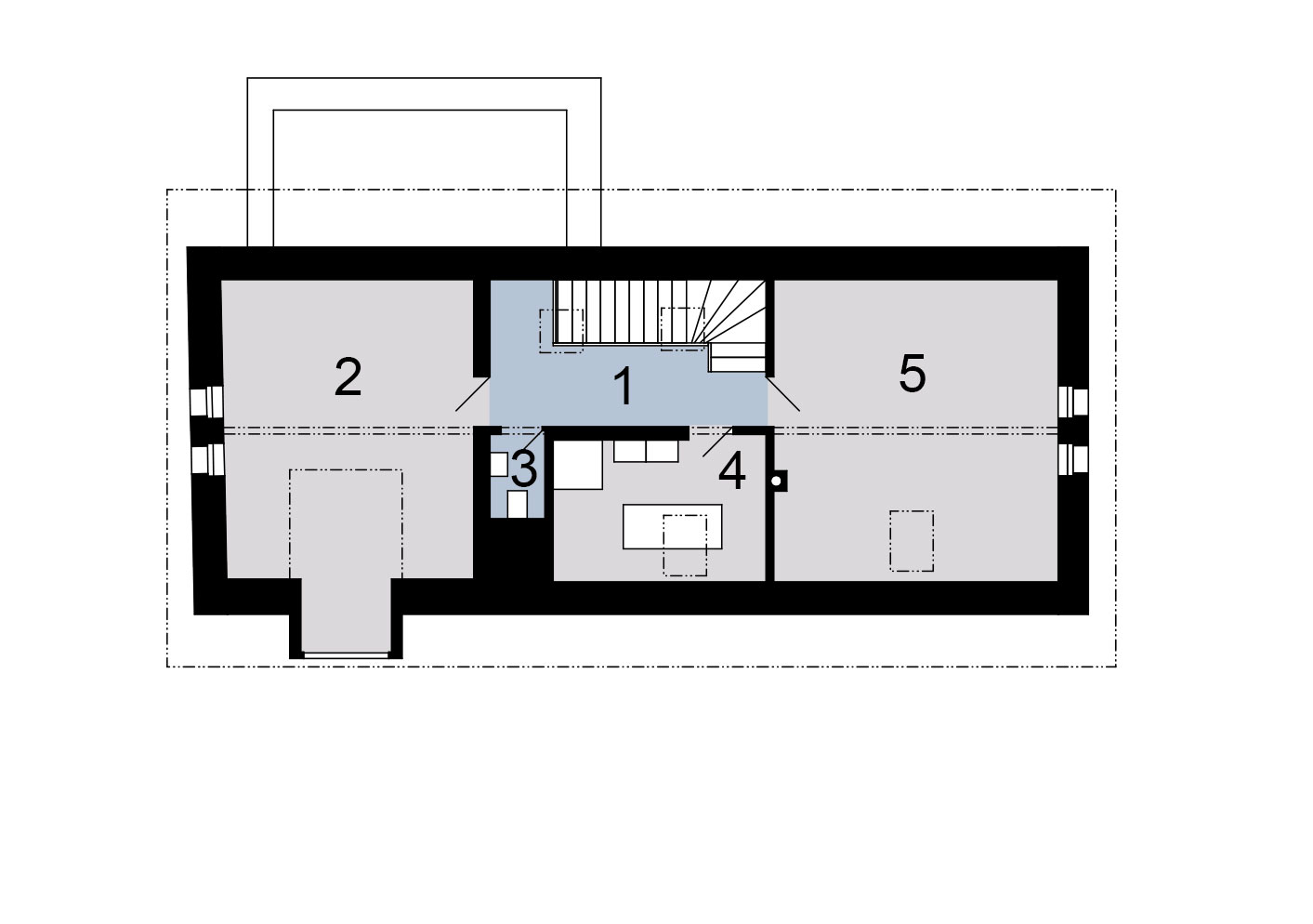
Podkrovie – 2. NP:
1 – schodisková hala
2 – detská izba
3 – WC
4 – kúpeľňa
5 – pracovňa
Suterén:
– kotolňa
– schodisko
Zastavaná plocha: 137,5 m2
Úžitková plocha: 164 m2
Obstavaný priestor spolu (bez základov): 680 m3
Strecha: keramická škridla
Okenné výplne: špaletové okná a hliníkové okná s izolačným trojsklom
Podlahy: dubové parkety
Vykurovanie: tepelné čerpadlo zem/voda
Názov stavby: Chalupa pri Blaníku
Miesto stavby: Stredné Čechy
Investor: súkromná osoba
Spracovateľ: OK PLAN ARCHITECTS, s.r.o., Na Závodí 631, 396 01 Humpolec
Autor: architekt Luděk Rýzner
Spoluautor: Ing. arch. František Čekal
Generálny dodávateľ: Zednictví Vladimír Lapáček
Subdodávatelia: Al okná – Dafeplast; nábytok – Truhlářství Karel Fulín; drevené dvere a
obklady – Roman Kuzmanič; terasa, tienenie – ARA Kolín, osvetlenie –
Efos; siete z nehrdzavejúcej ocele – Cabletech; vonkajšie schodisko – Kovovýroba Čekal
Projekt: 2012
Realizácia: 2014 – 2016
Foto: Jaroslav Hejzlar

















