Rodinný dom z dielne New Work
Stretli sme sa opäť na brnenskom podujatí architektov Big Deal. Majster architektúry a príjemnej komunikácie Svatopluk Sládeček sa nechal uhovoriť na rozhovor o veciach „malej architektúry“ a súhlasil so zverejnením jednej z posledných realizácii štúdia New Work.
Priznal, že pri nízkorozpočtových návrhoch dá nemálo úsilia urobiť dom tak, aby v ňom nebolo nič zbytočné a aby to ešte stále stálo za pozornosť: „Stavba rodinných domov je vlastne žánrom, ktorý pri dobrej spolupráci s investorom poskytuje počas vytvárania architektonického návrhu ešte stále významný podiel slobody. V mojom prípade a tiež v prípade spolupráce s mojimi kolegami z nášho štúdia, je niekedy tej práce až nazvyš. Napriek tomu oceňujem, aká zaujímavá a prínosná je takáto úloha, aké možnosti dáva pre umenie architektonického vyjadrenia.

O Dome v lome s jeho architektom:
Pri iných projektoch ste hovorili aj o vplyve miesta na architektonický vzhľad domu. Dotkli ste sa aj možnosti, pri ktorej nový objekt môže vzniknúť ako celkom samostatné dielo, ktoré sa samo dokáže pripútať k miestu. Ako to teda bolo v prípade domu v Lelkoviciach?
Je pravda, že tam, kde nejestvuje staviteľská tradícia, kde z každej strany vznikajú iné objekty a dom je v dostatočnej vzdialenosti od iných stavieb, takáto možnosť je (Vila sfinga v Kroměříži). V tomto prípade to však bolo naopak: prispôsobovať návrh prostrediu malo zmysel. Rozhodujúcou inšpiráciou bola sama krajina alebo skôr stavebné miesto. To sa nachádza v bývalom pieskovom lome. Stavebný pozemok tvorí výnimočne malá rovina obklopená strmými svahmi, ktoré prevyšujú výšku domu.
Ako v takom stiesnenom prostredí môže vyrásť dom s dostatkom svetla?
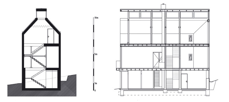
Na parcelu sa do hlbokého zárezu v svahu vstupuje z južnej strany priamo z osi ulice. Táto južná orientácia čelnej fasády domu je úplne a nerušene vystavená slnečnému svetlu. Až vtedy, keď stála hrubá stavba, som si uvedomil, že pri priehľade do ulice je zaručené aj úplné súkromie a krásny výhľad, ktorému nebude nič prekážať. Od tohto momentu sa odvíjali aj ostatné zasklenia, ktoré sa, samozrejme, sústredili na čelnej fasáde domu a svetlu otvorili aj časť strechy a zadnej fasády, ktorú tvoria dve steny stretávajúce sa pod uhlom 45°. Namiesto ostrej hrany dvoch zbiehajúcich sa stien, sa severná fasáda sústredila v úzkom pruhu zasklenia po celej výške budovy.

V tomto prípade sme začali murovaným polosuterénom, nad ktorým je položený keramický strop. Obe nadzemné podlažia tvorí hrazdená drevostavba stužená oceľovými ťahadlami. Tieto oceľové prvky sú priznané aj na fasáde.
Výhodou drevostavby domu v Lelkoviciach je aj menšia hrúbka obvodových stien. Vďaka tenším stenám sa získala väčšia podlahová plocha v pomere k zastavanej ploche. Takáto výhoda je zaujímavá, ak si uvedomíme obmedzené možnosti parcely. Objekt rodinného domu sme nakoniec opláštili smrekovcovými doskami. Smrekovec zohral podobnú úlohu aj pri zastrešení stavby.
Ako bude čas plynúť, tak sa bude smrekovec prefarbovať do siva, a neskôr sa na jeho povrchu vytvorí akoby strieborný odlesk. Príjemné pre majiteľov domu bolo zistenie, že takúto stavbu netreba natierať. Sama si vytvorí ochranný povrch.
Spomínali ste hrazdenú konštrukciu, ktorá mnohým pripomína tradičnú nemeckú architektúru…
Architektonický návrh vedome nesúvisí s tradičnými prvkami nemeckého staviteľstva. Odkaz nachádza v industriálnej architektúre, tvaroch a poetike technologických zariadení a násypníkov, drvičov, ťažných veží… Teda vo všetkom, čo patrí pieskovým lomom a s nimi súvisí..
V prípade stavieb rodinných domov a víl, ktoré vyrástli podľa vašich návrhov a návrhov vašich kolegov zo štúdia New Work, som si už zvykla, že stavby ukončuje plochá alebo nanajvýš pultová strecha…

Zaujímavosťou tohto projektu, podobne ako pri niekoľkých našich predchádzajúcich stavbách, je aj skutočnosť, že tvar priečneho rezu konštrukcie sa objavuje v rovnakej podobe aj v pôdoryse. Ten sa na severe uzatvára spolu s tvarom lomu. Tento prvok sa potom premieta aj do konštrukčného tvaru strechy.
Verili sme, že spomínaný tvar, rozmery a celkový architektonický výraz bude taký expresívny a pritom poetický, že predstavitelia obce budú ľutovať, že sa dopúšťajú nezmyselného obmedzovania. Zdá sa, že sa to aj podarilo.
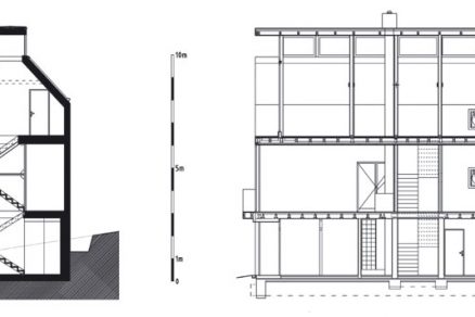
Pôdorysy: 1PP, 1NP a 2NP
Prízemie (1. PP):
1 – pivnica, 2 – práčovňa, 3, 4 – kúpeľňa a WC, 5 – hosťovská izba
Rezy
Pre koho bol dom postavený a ako sa riešila dispozícia miestností? Predsa len – dom sa ťahá do výšky viac, ako sme u nás zvyknutí pri bežných návrhoch rodinných domov.
Dom je jednogeneračný. Hlavné obytné podlažie je vyvýšené z jednoduchého dôvodu: priamo na teréne nie je dostatok svetla a najmä miesta. Do srdca tohto priestoru sme umiestnili celkom bežnú kozubovú pec (nie je napojená na nijaký rozvod vzduchu a ani vody). Od začiatku sme vedeli, že vlastník sa nevzdá svojho starožitného nábytku prevažne z obdobia secesie a chce si ho nasťahovať do nového domu. Dispozične, tvarovo a materiálovo sme navrhovali kuchyňu, vstavané skrine a knižnicu, ktorú si v zásade nakreslil sám stavebník. Z historického nábytku som nebol práve nadšený, ale dnes som milo prekvapený, ako dobre sa nakoniec staré zariadenie znáša s výrazom domu.
![]() |
![]() |
| Kovové prvky na fasáde dreveného domu pripomínajú priemyselnú minulosť miesta. | Slnko do domu vpustili veľkými zasklenými priehľadmi. |
Dispozičné a konštrukčné súvislosti Domu v lome:
|
Marína Ungerová
Foto: Libor Stavjanik, studioTOAST, New Work, štúdio pre architektúru a dizajn, Dano Veselský















