Rodinný dom s vegetačnou strechou začlenený do krajiny
Riešený pozemok sa nachádza v Bratislave, v mestskej časti Dúbravka, v jej západnej historickej časti, pri Jadranskej ulici, kde sa ešte nachádza pôvodná štruktúra zástavby. Parcela sa nachádza nad centrom pôvodnej dediny na južnom svahu Devínskej kobyly, s výhľadom na celý horizont Lamačskej brány. Osadenie aj tvar objektu reaguje na dané prírodné podmienky a terén. Rovnako dôležitý bol pre investora výhľad, tvar pozemku a prístup naň.
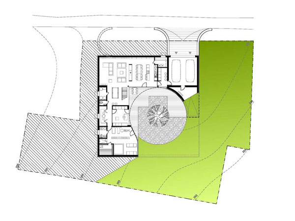
Objemové stvárnenie rešpektovalo všetky tieto okolnosti spolu s požiadavkami na dispozičné usporiadanie. Tak vznikol zmodifikovaný tvar písmena L resp. tvar spojených dvoch písmen I a J, čo sú náhodne aj iniciály budúcich majiteľov domu.Najpodstatnejší prvok tvarovania bol však dominantný strom v budúcom kruhovom centrálnom átriu, okolo ktorého sa obtáča celá hmota domu. Všetky obytné priestory, okrem hosťovskej izby, sú orientované do átria s výhľadom do okolitej krajiny. Objekt je síce dvojpodlažný, ale tým, že architekt projektu Daniel Šubín využil reliéf pozemku, dom je vnímaný z prístupovej ulice aj od susedov zo západu ako jednopodlažný.
Strecha je pokrytá extenzívnym porastom, v šikmej časti trávou. Tým sa stavba stáva aj „land-artovým“ objektom. Objekt má dva vstupy vo dvoch úrovniach, čo v budúcnosti vyrieši rozdelenie domu na dve samostatné obytné jednotky: pre rodičov dole a pre deti hore s vlastnou záhradou.
RODINNÝ DOM * IaJ
status: štúdia 08/2011, projekt 12/2011 – 4/2012
miesto: Bratislava – Dúbravka
autor : Daniel Šubín, www.baar.sk
Spracovala Mária Nováková
Podklady a dokumentácia: Daniel Šubín























