Rodinný dom od architekta Maroša Fečíka
Stavba samotná sa už na prvý pohľad hlási k architektonickej moderne. Konštrukčným materiálom je betón, i keď kvôli lepším tepelno - technickým vlastnostiam je ukrytý za izoláciou a zvoleným fasádnym materiálom. Okrem sivého cembonitu sa pod charakter domu podpisuje prírodná kresba impregnovaných fasádnych dosák z dreva ipe. Postupné „striebrenie“ stavby patrí medzi najvďačnejšie vlastnosti tohto unikátneho materiálu...
Dom s osou
Dom má ľahko čitateľnú pozdĺžnu dispozíciu. Os domu tvorí spojovacia chodba, orientovaná od juhozápadu na severovýchod. Do takmer tradične poňatej haly ústia všetky miestnosti. Za južným svetlom sa otáčajú detské izby a najmä priestranná obývačka, obslužné miestnosti, spálňa rodičov, kuchyňa a hosťovská garsónka sú orientované na severozápadnú fasádu.

Šatníkové skrine si našli miesto v samostatnej miestnosti pri vstupe, chodba samotná – to je veľkoplošnými oknami lemovaná galéria, ktorá sa zatiaľ zaobíde len s hrou svetla a tieňa na najdlhšej stene.
Našej pozornosti nemôže uniknúť obývačka otvorená na tri strany. Architekt ju z už spomínaných dôvodov otvoril prekvapujúcim smerom – nehľadí priamo na najbližších susedov, ale do blízkeho lesa a na príjazdovú cestu. I bez zatiahnutia obligátnych žalúzií v nej preto nehrozí strata pocitu súkromia a zároveň naplno využíva vlastnosti pozemku. Treťou stranou sa obývacia miestnosť otvára do menšej, zadnej záhrady s náznakom akéhosi zálivu, átria, ktoré na svoje dokončenie ešte len čaká. Potom bude slúžiť ako pred priamym svetlom chránená vonkajšia terasa či letná jedáleň.

Na posede
Charakteristickou črtou domov Maroša Fečíka sú… rozhľadne. Rovinatý pozemok neposkytuje veľa možností pracovať s výhľadmi do okolia, investori spolu s architektom majú navyše spoločnú lásku k prízemným stavbám, ktoré si nekladú za cieľ ohromiť svojou mohutnosťou. Fečíkove stavby využívajú zámernú členitosť fasád a rôznorodé fasádne materiály na to, aby opticky rozbili pomerne veľký objem stavby. Priehľady naprieč stavbou a na viac strán otvorené miestnosti rodinný dom začleňujú do prostredia.

Kapitánsky mostík, ako sme pracovňu prekrstili počas našej návštevy, však, samozrejme, ponúka i omnoho romantickejšie spôsoby využitia.
Točité schodisko a galériu zjednocuje použitý materiál – kov – s efektnou perforáciou, ktorá na stene obývacej izby rozohráva lúče popoludňajšieho slnka do priam umeleckých abstraktných tieňohier.
![]() |
![]() |
| V hlavnej úlohe svetlo – vďaka otvoreniu na všetky svetové strany, svetlíkom i z dvoch strán zasklenému hornému podlažiu je prirodzené svetlo hlavným dekoračným prvkom interiéru. |
Pracovňa na poschodí ponúka úžasný výhľad do okolia. |
S úlovkom výhľadov
Po krátkej návšteve odchádzame spokojní. S prekvapením zisťujeme, že napohľad členitá stavba môže byť vlastne mimoriadne jednoduchá, priam intuitívna. Svojim majiteľom nekladie žiadne podmienky, nepredpisuje im spôsob ako žiť, práve naopak – slúži ich presne špecifikovaným potrebám. No a vďaka unikátnym výhľadom sme aj bohatší o niekoľko nových pohľadov na krajinu v meste blízkom a známom. Aj po viac ako tridsiatke rokov strávených v našej metropole zisťujeme, že nové dojmy a pekné domy sa môžu ukrývať aj vo veľmi nečakaných lokalitách.
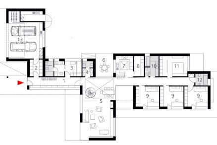
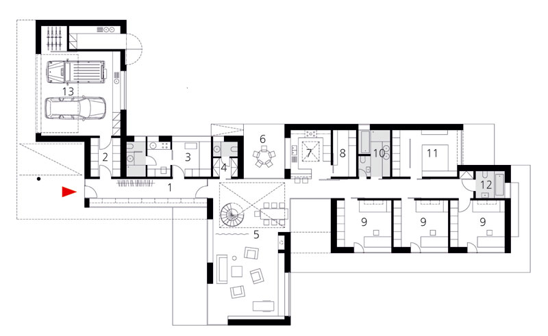
Prvé podlažie
1 – hala, 2 – šatník, 3 – garsónka, 4 – hosťovské WC, 5 – obývacia izba a jedáleň, 6 – átrium, 7 – kuchyňa, 8 – komora, 9 – detská izba, 10 – kúpeľňa a WC, 11 – spálňa, 12 – kúpeľňa a WC, 13 – garáž
Druhé podlažie
14 – pracovňa / spálňa
Matej Šišolák
Foto: Dano Veselský















