Rodinný dom inšpirovaný medzivojnovou avantgardou
Variácie na tému rodinný dom majú mnoho podôb a zdá sa, že ich nápaditosť stále nie je vyčerpaná. Potvrdzuje to aj viacgeneračný rodinný dom v exkluzívnom prostredí Horského parku v Bratislave, ktorý sa svojím tvarom inšpiruje medzivojnovou avantgardnou architektúrou a vďaka výraznej nízkoenergetickej bilancii patrí medzi progresívne domy na bývanie. Svedčí o tom aj energetické hodnotenie, na základe ktorého je v kategórii A.
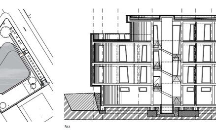
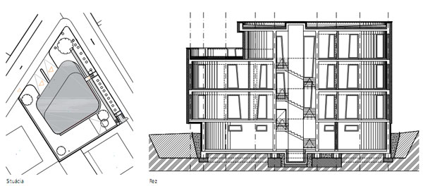
Kompozícia sleduje tvar pozemkuBratislavský Horský park stále patrí medzi miesta so zachovanými vilami vo funkcionalistickom tvarosloví a viacgeneračný rodinný dom s klasickou bielou fasádou sa týmto odkazom vedome inšpiruje. Formu a celkovú kompozíciu novostavby predurčil tvar pozemku, náplň, ako aj konštrukčná a typologická schéma pôdorysov v štyroch podlažiach s plochami lodžií a terás. Samotné vertikálne členenie hmoty budovy sa uskutočňuje prostredníctvom pásových okien a horizontálne členenie zase terasami s výhľadom na zalesnený Horský park.
„Pre samotnú stavbu sme zvolili lichobežníkový pôdorys, ale so zaoblenými hranami, čo však zase vytváralo nároky na použitie stavebného materiálu,“ hovorí autor projektu Ing. arch. Juraj Zornička. „Preto sme zvolili pórobetónové tvárnice Ytong, ktoré nám umožnili riešiť tvarovo zložitejšie architektonické návrhy pri zachovaní kvality tepelnoizolačných vlastností obvodového plášťa. Obvodové murivo je výplňové s hrúbkami 250 mm a 300 mm z pórobetónových tvárnic. Deliace konštrukcie sú zrealizované podľa potrieb prevádzky rodinného domu. Použitý nosný systém je železobetónový bezprievlakový skelet, pričom suterén stavby je zrealizovaný z monolitického vodotesného železo betónu.“
Energetické systémy
Z hľadiska inštalovaných energetických systémov predstavuje dom najmodernejšie trendy využitia aplikácie obnoviteľných zdrojov energie (tepelné čerpadlá, izolačné trojsklo, stropné chladenie). Svedčí o tom aj energetické hodnotenie, na základe ktorého je v kategórii A, a to pre miesto spotreby, vykurovanie a príprava teplej vody.
Potreba tepla na krytie tepelných strát riešeného objektu stanovená podľa STN EN 12831 pre oblastnú vonkajšiu výpočtovú teplotu θe = –11 °C, priemernú výpočtovú teplotu vykurovaných priestorov θai = 21 °C predstavuje 29,3 kW. „Vo výpočte tepelných strát objektu sú bilančne zahrnuté požiadavky na tepelnotechnické vlastnosti stavebných konštrukcií nových budov – STN 73 0540 – 2,“ hovorí Ing. Rastislav Konkoľ, projektant vykurovania, chladenia a energetickej certifikácie budov.
Zdrojom tepla je tepelné čerpadlo typu zem/voda typového radu Alpha Innotec s tepelným výkonom 31,8 kW. Pre vykurované priestory objektu je navrhutý teplovodný nízkoteplotný vykurovací systém s núteným obehom vykurovacej vody, riešený podlahovým vykurovaním s ekvitermnou reguláciou teploty. Na plné využitie navrhovaného multifunkčného zásobníka, ako aj na zvýšenie efektivity v príprave teplej vody v mimovykurovacom období je navrhnutý solárny okruh ohrevu UK/TV zostavou piatich solárnych kolektorov typového radu Roth Heliostar 252 s plochou absorbéru 2,52 m2.
| Viacgeneračný rodinný dom Miesto: Gorazdova ul. 25, Bratislava Autori stavby: Ing. arch. Juraj Zornička, Ing. arch. Ľudmila Saudreau, Rastislav Hrušovský Generálny projektant: Ing. arch. Juraj Zornička Návrh interiéru: JL Ateliér architektúry a dizajnu, Ing. arch. Juraj Zornička, Ing. arch. Ľudmila Saudreau, Rastislav Hrušovský Investor: EX PROJEKT, a. s., Bratislava Začiatok výstavby: 9/2009 Ukončenie výstavby: 11/2010 Plocha parcely: 872 m2 Zastavaná plocha: 261,32 m2 Úžitková plocha: 1 022,55 m2 Obstavaný priestor: 3 382 m3 Počet nadzemných podlaží: 3 Počet podzemných podlaží: 1 |
Na tému dobrý dom
Rodinný dom má tri nadzemné a jedno podzemné podlažie, pričom vertikálne sú podlažia prepojené schodiskom i výťahom umiestneným v skleneno-oceľovej šachte. Vstup do rodinného domu je riešený centrálne v čelnej uličnej fasáde.
Dispozičné riešenie troch bytových jednotiek poskytuje pohodlný priestor rezidenčného charakteru a objemovo sa delí na súkromnú zónu a časť pre hostí. Všetky priestory sú vybavené úmerne svojmu účelu v zmysle prevádzky a technologického zariadenia podľa požiadaviek investora a užívateľa. Jednotlivé terasy sú riešené ako drevené.
Investor dal architektom voľnú ruku a tí jeho ponuku nezneužili. Naopak, architektonické riešenie novostavby citlivo rešpektuje okolitú zástavbu a harmonizuje aj s prírodou Horského parku. Svojim invenčným tvaroslovím v náročnom svahovitom pozemku a nadštandardnou energetickou bilanciou má všetky predpoklady stať sa pozitívnym príspevkom na tému rodinný dom.
Ľudo Petránsky
Foto: René Miko, Bohumil Šálek
Článok bol uverejnený v časopise ASB.
–>–>

















