Revitalizácia budovy, ktorá podčiarkuje kolorit švajčiarskeho sídla
Mestečko so stredovekou atmosférou, ktoré sa nachádza v nádhernom prostredí švajčiarskej prírody, je domovom stavby, ktorú vám predstavíme v dnešnom článku.
Regensberg sa pýši bohatou históriou, unikátnou polohou a jednoznačnosťou miestneho koloritu. Založený v roku 1244 prešiel mnohými zmenami, avšak aj v uponáhľanom 21. storočí plnom zmien si zachováva svoju tradičnú tvár a atmosféru. Tú mu nepochybne pomáhajú tvoriť aj miestne architektonické skvosty, ktoré sú rekonštruované (a v mnohých prípadoch reštaurované) či prestavané s ohľadom na históriu, rázovitosť a osobitosť tejto výnimočnej lokality.
Stavba s názvom Dom Ledenmann nie je výnimkou. Dvojposchodová budova v priebehu minulého roka (2015) prešla revitalizáciou, ktorá podčiarkla jej historickú hodnotu a zároveň prinavrátila život stenám a priestorom, ktoré boli vo veľmi zlom technickom stave.
Vzhľadom na nepriaznivý stav budovy sa architekti, investor aj miestne autority po dlhých úvahách rozhodli pre radikálne, no účelné riešenie – pôvodnú budovu čiastočne zdemolovali a na jej základe postavili novú, ktorá je jej novodobým dvojčaťom (či skôr potomkom).
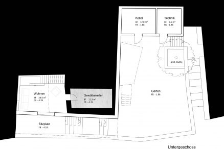
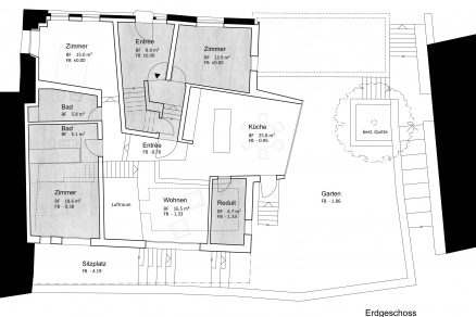
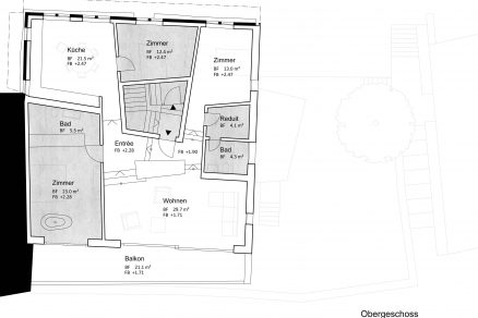
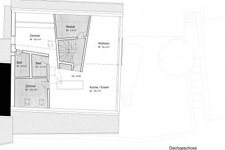
Zachované boli dve predné, čiastočne drevené fasády a originálna pivnica s klenutými stropmi. Zvyšný priestor sa podarilo pretransformovať do troch nezávislých obývateľných celkov, ktoré v súčasnosti slúžia ako byty.
Severná fasáda s výhľadom na mesto je jedným z najvzácnejších prvkov pôvodnej stavby, a to vďaka filigránovej stenovej konštrukcii a pôvodným zloženým oknám. Južná strana poskytuje nádherné výhľady na švajčiarsku krajinu.
Kontrast medzi protiľahlými fasádami umožnil vytvoriť dynamický dizajn, ktorý berie do úvahy vyváženosť materiálu, svetla a proporcií.
Rozdielne výšky a hĺbky miestností vo vnútornom priestore ho činia skutočne unikátnym a zaujímavým nielen pre nových obyvateľov, ale aj pre každú jednu návštevu.
Neprehliadnite: DEGUSTÁCIA VÍNA I DIZAJNU V JEDNEJ VÍNNEJ PIVNICI
Kontrast medzi novotvarmi a historicky hodnotnými pozostatkami je zjemnený využitím podobných materiálov a farebných schém, aké sú typické pre danú oblasť a boli tradične využívané aj v čase stavby pôvodnej budovy.
Striedme aplikovanie moderných prvkov v prípade vonkajšieho vzhľadu zaručuje, že nová podoba nijakým spôsobom nenarúša kolorit okolitej krajiny, ba priam naopak – nový vizuál príjemne podčiarkuje špecifickú atmosféru miestnej zástavby.
Viac moderných, najmä minimalisticky čistých aplikácií si dizajnéri mohli dovoliť vo vnútornom priestore, ktorý priam žiari bielou farbou a jednoduchými riešeniami.
Farebnú aj textúrovú dynamiku nachádzame najmä v intímnych miestnostiach, akými sú napríklad kúpeľne (kráľovsky modrá či krvavočervená kúpeľňa, obe obložené lesklými tehlovitými obkladmi od podlahy až po strop) prinášajú do priestoru potrebný život a „šokujúci“ element, ktorý však nezainteresovaného turistu nebude zvonku nijakým spôsobom obťažovať.
Neprehliadnite: RENOVÁCIA CHALUPY NAMIESTO ASANÁCIE
Prehľad:
Architektonické štúdio: L3P Architekten
Lokalita: Unterburg, 8158 Regensberg, Švajčiarsko
Dizajnérsky tím: Martin Reusser, Boris Egli, Markus Müller, Frank Schäfer
Projektový rok: 2015
Klient: Privátny
Projektový manažment: Frank Schäfer, Mareike Beumer
Realizátor: Schiavi, Partner AG
Spolupráca: wanker Acoustics & Bauphysik AG, Neukom installations AG, Götz Elektro AG
Plocha prízemia a podzemných častí (1. byt): 148 m2
Plocha prvého podlažia (2. byt): 127 m2
Plocha podkrovia s galériou (3. byt): 140 m2
Text: Anna Martausová
Foto: Sabrina Scheja
Zdroj: l3p.ch, archdaily.com

























