Rekonštrukcia chalupy s možnosťou trvalého bývania
V dnešnom uponáhľanom a pretechnizovanom svete nadobúdajú chalupy veľmi dôležitú pridanú hodnotu. Nie každý má to šťastie, že nejakú má alebo ju môže rekonštruovať. Chalupy, v ktorých sme prežívali radostné úseky detstva, prázdniny či dni voľna, majú neodmysliteľné čaro aj po desaťročiach, preto sa do rekonštrukcie oplatí investovať. Predstavíme vám obnovu chalupy v Mladoticiach, v ktorej sa jej majiteľka tiež kedysi ako dieťa hrávala.
Chalupa so stodolou ležiaca v malebnej obci Mladotice v údolí rieky Dúbravy má bohatú históriu, záhradu s malým sadom a skvelým výhľadom na okolité vrchy. Bola však v takom zlom technickom stave, že jej rekonštrukcii sa nedalo vyhnúť, ak chceli stavbu udržať a používať.
Architektka Jitka Macáková, ktorá projektovala premenu chalupy a stála pri jej realizácii, dostala za úlohu pripraviť dom na víkendové, ale výhľadovo aj na trvalé bývanie. Majitelia požadovali komfort pre dve osoby, ale aj možnosť prespania hostí. Dôležitý bol pre nich tiež priestor na organizovanie spoločenských akcií.
Presvetliť, oživiť, spojiť so záhradou
Veľmi dôležitým momentom bolo presvetlenie celej chalupy, jej prepojenie so záhradou a využitie priestoru pod strechou na bývanie. Svetlo sa do miestnosti a haly na prízemí dostáva vďaka vybúranej časti, ktorú nahradilo veľké zasklenie s posuvnými drevenými okenicami. Zároveň spĺňa požiadavku prepojenia domu so záhradou a terasou.
Veľkým prianím majiteľov bola nová kachľová pec, ktorá sa stala dominantou obytného priestoru a symbolom príjemného harmonického tepla.
Premeny pokračovali ďalej
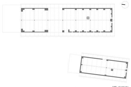
Z bývalej spálne vznikla veľkorysá kúpeľňa s drevenou vstavanou „kadibúdkou“ a technickým zázemím. V strede dispozície je prebúraný otvor do podkrovia, vďaka čomu sú obe podlažia spojené masívnym dreveným schodiskom.
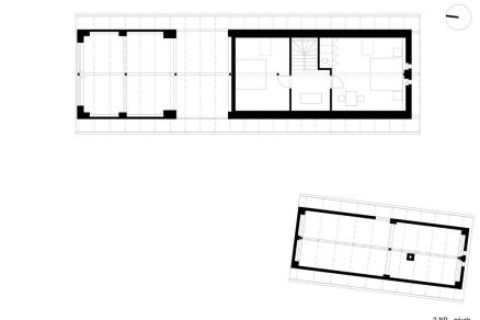
Podkrovie bolo zateplené a obité latkami. Tak vznikli dve spálne osvetlené strešnými oknami.
Biele nátery dreva zjednotili staré a nové konštrukcie a pôsobia osviežujúco.
Všetky rozvody sa vybudovali nanovo, rovnako i vykurovací systém. Vonkajšie fasády domu zjednotil vápenný náter. Výmeny sa dočkali okná, podlahy i dvere.
Zaujímavosťou je, že na nový nábytok sa použilo staré drevo zo stodoly. Starý nábytok bol tiež opravený a repasovaný. Interiér celkovo doladili retro doplnky.
Očisty sa dočkal aj pozemok
Pri exteriérových úpravách sa majitelia zhodli s architektkou a odstránili z pozemku dve nevhodné kôlne, čím získali cenný výhľad na krajinu a tiež kus záhrady. Zmizli aj poškodené a nevhodné stromy, zasadili nové.
Obnovy sa dočkali kamenné steny, studňa, kvetinové záhony. Nevhodné oplotenie nahradilo nové. Priestor na oddych v lone prírody poskytuje drevená terasa.
Stodola neprešla významnejšími zmenami, bolo ju však potrebné opraviť a vyčistiť, aby bola pripravená na väčšie spoločenské akcie. Našiel tu miesto i veľký krištáľový luster po rodičoch.
V prístavku, ktorému sa hovorí „vejminek“, dostali priestor spálňa pre hostí a kuchyňa.
Dom je teda pripravený nielen na návštevu hostí či víkendový výjazd majiteľov, ale poskytuje všetko potrebné na každodenné bývanie.
Rekonštrukcia chalupy v Mladoticiach
Miesto: Mladotice u Ronova nad Doubravou
Autor: Jitka Macáková
Projekt: 2011
Realizácia: 2012 – 2013
Plocha pozemku: 476 m2
Úžitková plocha: 132 m2
Sabína Zavarská
Foto: Jitka Macáková, Eva Vopátková
























