Príjemné a úsporné bývanie v lone prírody: Chrbtom k severu
V blízkosti Českých Budějovíc v krásnom prostredí vyrástol dom, ktorý harmonizuje s okolitou prírodou, prináša obyvateľom komfort i súkromie, navyše je aj nízkoenergetický. Napriek tomu, že už má pár rokov života za sebou, stále má čo ponúknuť a čím inšpirovať. Takýto je projekt architekta Adama Lenca a štúdia Interproject.
Pozemok v zelenej prírode dal charakter celému domu, v ktorom našiel architekt Adam Lenc únik z panelového sídliska v Českých Budějoviciach. Roky si ho užíval a zoznamoval sa s príjemným prostredím, až potom začal so samotnou stavbou.
Dnes na ňom stojí príjemný rodinný dom, na prvý pohľad charakteristický harmóniou s prírodou – vďaka použitým prírodným materiálom, napríklad granulitu z neďalekého lomu. Pri projektovaní domu bol využitý svah, do ktorého je dom prakticky chrbtom vsadený a poskytuje tak výhľad na údolie Vltavy, Novohradské hory a Blanský les.
Dispozícia domu
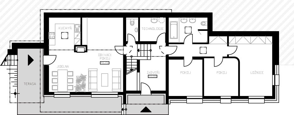
Dom je určený na pohodlné bývanie štyroch osôb, v spodnej časti sa nachádza hlavná obytná miestnosť spojená s kuchyňou a jedálenským kútom. Nájdete tu taktiež dve malé spálne a jednu veľkú, kúpeľňu s toaletou, vaňou a sprchovým kútom, technickú miestnosť so skladom. Stredná časť domu je zvýšená – po schodoch sa dostanete na galériu a z nej do pracovne s nádherným výhľadom cez panoramatické posuvné okno. Príjemné posedenie nielen v horúcich dňoch umožňuje krytá terasa.
Izby usporiadali podľa slnka
Architekt priznáva, že vnútorné usporiadanie domu ovplyvnila najmä poloha domu na pozemku, orientácia na svetové strany a s ňou súvisiaci pohyb slnka. Nevyhnutnosťou bolo umiestniť hlavný vchod z juhu, zo severu dom hraničí so svahom.
Spálňa umiestnená na východnej strane domu poskytuje obyvateľom prirodzený budíček vo forme lúčov vychádzajúceho slnka, obývačka je zase orientovaná na západ a zasklená západná stena umožňuje čo najdlhšie využiť podvečerné slnko.
Praktický interiér
V interiéri domu nie je nič navyše, ale ani nič nechýba. Jeho riešenie navrhol sám architekt – jedálenský stôl, knižnicu, televízny a konferenčný stolík. Sedačku riešil v spolupráci s výrobcom, rovnako aj základný koncept kuchyne.
Zaujímavým kúskom je práve konferenčný stolík. Bol vyrobený z pôvodného stolíka, ktorý stál ešte v obývačke architektových rodičov. Stačilo mu dať novú podnož z hranatých antikorových rúrok a smelo môže konkurovať moderným výrobkom. Prakticky je riešená i kuchyňa v tvare písmena U. Poskytuje veľkú pracovnú plochu, logické usporiadanie všetkých potrebných vecí na varenie. Osviežujúco pôsobí aj kombinácia zaujímavého odtieňa červenej na kuchynskej linke so sivou v jej okolí.
Hra materiálov
Pokiaľ ide o materiál použitý pri výstavbe domu, Adam Lenc vysvetľuje, že koncepcia interiéru bola založená na netradičných kombináciách cenovo dostupných materiálov. I to je dôvod, prečo je v dome použitý prefabrikovaný železobetón. Podhľad v centrálnej obývacej miestnosti je zase vytvorený z obyčajného lakovaného vlnitého plechu. Musíme uznať, že je to veľmi zaujímavý estetický prvok. Príjemne a teplo pôsobí drevená podlaha v kombinácii s niektorými stenami, ktoré sú tiež obložené drevom.
Dlážka v obývačke a obklady stien sú z masívnych dosák tvrdej juhoamerickej dreviny a ostatné dlážky pokrývajú masívne dubové lamely. Lepené sú na podklad z OSB dosák, kotvených do čistého betónu. V kuchyni je podlaha riešená cementovou samonivelačnou priemyselnou stierkou s lesklým epoxidovým náterom, v predsieni je povlaková krytina z marmolea, v kúpeľni sklená mozaika.
Nízkoenergetický rozmer
Dnes je spotreba energie nemenej dôležitá ako samotný vzhľad domu. Tento dom bol od počiatku navrhnutý ako nízkoenergetický, ale pritom bez mimoriadnych investícii do špeciálnych systémov. Je orientovaný na juh, a tak využíva maximum svetla a tepla zo slnka. Zo severu je čiastočne zasypaný (svah prechádza do zelenej zatrávnenej strechy spálňovej časti), teda dom je krytý pred chladnými severnými vetrami, čo má priaznivý vplyv na tepelné straty domu.
Potrebné teplo zabezpečuje elektrický kotol a je distribuované do radiátorov a podlahových konvektorov v obývacom priestore. Tu nájdeme aj kozubovú vložku na drevo, ktorá najmä v zimných mesiacoch má svoje opodstatnenie. Domáci kúria brezovými polenami, ktoré majú vysokú výhrevnosť a nízky podiel dechtu.
| Dom v kocke | |
| Zastavaná plocha | 185 m² |
| Obytná plocha | 143 m² |
| Použité stavebné materiály | betónové základové pásy, tehlové murivo zateplené minerálnou vatou, vonkajší obklad smrekovcovými hobľovanými latami a lomovým kameňom, spálňa pokrytá plochou strechou – železobetónové filigránové konštrukcie, pultové strechy – drevené trámy s debnením |
| Strešná krytina | zasypaná spálňová časť – tzv. obrátená skladba so zelenou strechou a extenzívnou zeleňou, pultové strechy – falcovaná plechová krytina z titánzinku |
| Okná | hliníkové rámy s prerušeným tepelným mostom, výplň tepelnoizolačným dvojsklom, veľké plochy neotvárateľné |
Sabína Zavarská
Zdroj a foto: Adam Lenc, Interproject























