Realizácia nízkoenergetického rodinného domu
Galéria(10)

Realizácia nízkoenergetického rodinného domu

Navrhovanie a výstavba nízkoenergetických a pasívnych domov predstavuje široký komplex problémov, ktoré treba riešiť pri návrhu stavby aj v priebehu jej realizácie. Článok poukazuje na jeden z možných prístupov, akým je energeticky úsporná stavba navrhnutá a akým sa pri projektovaní a realizácii kontroluje jej kvalita z hľadiska energetických súvislostí.


Nízkoenergetický dom
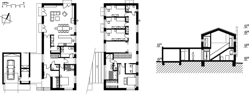
Výstavba rodinného domu začala v novembri 2007. Ide o dvojpodlažný nepodpivničený objekt so samostatne stojacou garážou, ktorý sa realizoval ako drevostavba systémom 2 × 4 – two by four (stĺpikový systém so stĺpikmi s prierezom 50 × 100 mm). Samostatne stojaca garáž je nevykurovaná a jej konštrukcia je murovaná.

Základné parametre objektu (bez garáže a skladov) sú:

  • zastavaná plocha 153,6 m2,
  • úžitková plocha 240,0 m2,
  • obstavaný priestor 1 100,6 m3.

Energetická kvalita objektu v jednotlivých fázach
Pri návrhu stavby a v priebehu realizácie treba vykonať rozhodnutia, ktoré majú vplyv na energetickú bilanciu objektu. Jednotlivé varianty riešení i konečné rozhodnutia by sa mali overovať a upresňovať pomocou vhodného výpočtového modelu, ktorý reaguje na zmeny návrhu, umožňuje jednoducho pracovať vo variantoch a prináša podrobné a prehľadné výsledky. Na takúto prácu sa použil nástroj vytvorený v prostredí tabuľkového procesora [1].

Metodika výpočtu potreby tepla na vykurovanie sa použila podľa ČSN EN ISO 13790 (Tepelno-technické vlastnosti budov – zodpovedajúca slovenská norma STN EN ISO 13790). Jednotlivé výpočtové modely umožňujú sledovať kvalitu jednotlivých subkonštrukcií i okolité vplyvy a ich dosah na celkovú potrebu tepla na vykurovanie. Počas výpočtu sa sleduje kvalita obvodového plášťa, kvalita výplní otvorov a ich komponentov na základe ich geometrie (rám, zasklenie, dištančný rámček) vrátane vplyvu tienenia, vplyv tepelných väzieb a tepelných mostov, spôsob vetrania, vplyv akumulácie podľa použitých materiálov atď. Grafický výstup umožňuje sledovať rozdelenie mernej tepelnej straty prechodom na všetky prvky obvodového plášťa, a stáva sa tak základnou pomôckou pri optimalizácii ich tepelnoizolačných vlastností [1].


Pôdorysy oboch podlaží rodinného domu a priečny rez

Výpočtové prístupy na posudzovanie jednotlivých variantov

  • Optimalizačný prístup zohľadňuje väzby objektu na konkrétnu lokalitu (miestne klimatické dáta), na miestnu situáciu (orientácia na svetové strany, tienenie okolitou zástavbou, horizontom…) a na konkrétny spôsob užívania. Tento prístup slúži na optimalizáciu konštrukčného riešenia pre cieľové požiadavky projektanta alebo klienta a zjednodušene odráža reálne správanie budovy v konkrétnych podmienkach.
  • Deklaračný prístup podľa Metodiky hodnotenia nízkoenergetických rodinných domov [2] slúži na deklarovanie všeobecnej kvality stavebného riešenia objektu a nie je viazaný na konkrétnu lokalitu a konkrétne podmienky užívania. Tento výpočtový prístup umožňuje objektívne porovnávať technickú kvalitu stavieb navzájom medzi sebou bez ohľadu na rozličné okrajové podmienky v mieste stavby.


Návrh stavby (štúdia)

Účelom energetického posúdenia objektu vo fáze návrhu stavby (štúdie) bolo preveriť architektonické, dispozičné a prevádzkové súvislosti z hľadiska požiadaviek na nízkoenergetický (pasívny) dom. Išlo najmä o preverenie hmotového konceptu (pomer A/V), ďalej o vplyv počtu, veľkosti a orientácie okenných otvorov na celkovú teplotnú bilanciu objektu a o členenie na vykurované, nevykurované, prípadne temperované objekty.
V tejto fáze sa posudzovali tri úrovne tepelnotechnickej kvality obvodového plášťa, ktoré sú dané v jednotlivých variantoch cieľovými hodnotami súčiniteľa prechodu tepla U (W/(m2 . K)). Vplyv tepelných väzieb (styk podlaha/stena, prechod stena/strecha, ostenie, nadpražie a parapety okenných otvorov) a tepelných mostov (kotvenie žalúzií, zábradlí balkónov…), ale aj vplyv akumulácie sa v predbežnom výpočte zahrnul formou kvalifikovaného odhadu.

Ďalej sa zahrnul vplyv prirodzeného (model A1, A2) a mechanického vetrania (model A3). Všetky tri varianty sa posúdili optimalizačným prístupom (model A1, A2, A3), konečný variant A3dec sa posúdil aj deklaračným prístupom podľa metodiky [2]. Výsledný variant slúžil ako východiskové zadanie pre ďalšie projektové fázy.

Projekt na stavebné povolenie
Objekt sa navrhol ako murovaný z keramických tvárnic s hrúbkou 240 mm, s prefamonolitickou stropnou konštrukciou z keramických nosníkov a vložiek s celkovou hrúbkou 250 mm. Obvodový plášť tvorí KZS s hrúbkou zateplenia 220 mm (resp. 240 mm). Konštrukciu valbovej strechy tvorili nosné väzby s obojstrannými klieštinami a vrcholovou väznicou podopretou aj zdvojenými klieštinami s prevetrávanou skladbou s celkovou hrúbkou tepelnej izolácie 340 mm. Schodisko sa navrhlo ako železobetónové monolitické. Tepelnotechnické posúdenie (model B1) obsahuje navrhnuté skladby konštrukcií, konkrétne tepelné väzby a tepelné mosty.

Vykonávací projekt
Objekt sa z ekonomických a časových dôvodov realizoval ako drevostavba systémom 2 × 4. Navrhnuté technické riešenie sa preverilo s ohľadom na energetické súvislosti tepelnotechnickým výpočtom (model C1, C1dec) aj s ohľadom na pôvodné prevádzkové a architektonické požiadavky definované investorom. Išlo najmä o prepočítanie navrhnutých skladieb konštrukcií, revíziu tepelných väzieb a tepelných mostov s ohľadom na nové technologické riešenie, zahrnutie zníženia vplyvu akumulácie do výpočtu celkovej potreby tepla na vykurovanie atď.

V súvislosti s novým konštrukčným riešením došlo k zmenám v priebehu hranice vykurovanej zóny. Tepelná izolácia neprebieha v rovine strešného plášťa, ale v úrovni stropu 2. NP. Priestor medzi stropom a strechou je nevykurovaný a vetraný. Tým došlo k zmenšeniu plochy teplovýmennej obálky stavby, čo mohlo čiastočne ovplyvniť výpočet.

Realizácia stavby
V priebehu realizácie stavby došlo k niektorým čiastkovým zmenám oproti vykonávaciemu projektu, najmä k zmene kvality výplní otvorov a k čiastkovým zmenám použitých materiálov. Všetky tieto odchýlky od naprojektovaného riešenia sa zahrnuli do konečného výpočtu, ktorého model (model D1, D1dec) odráža skutočnú realizáciu a kvalitu stavby.

Špecifickým problémom drevostavieb je zabezpečenie vzduchotesnosti plášťa stavby. Kvalita realizácie vzduchotesného plášťa je kľúčová na zaistenie efektívnej funkcie spätného získavania tepla rekuperáciou. Vzduchotesnosť stavby sa pred kompletizáciou vnútorných povrchov overila tzv. Blower Door Testom [1]. Výsledok meraní (0,43 h-1), ktorý okrem iného predstavuje dosiahnutie dobrej kvality vzduchotesnosti obvodového plášťa, sa zohľadnil v aktualizovanom výpočte.

Kontrola vzduchotesnosti stavby – Blower Door Test, 08/2008, Ing. Jiří Novák, PhD., Fakulta stavebná ČVUT v Prahe

Prehľad variantov a analýza výsledkov
Prehľad jednotlivých parametrov rozhodujúcich pre energetickú bilanciu stavby je v rozličných fázach projektu a realizácie uvedený spolu s výsledkami energetického posúdenia v tab. 1. Zvýraznené sú vždy tie parametre, pri ktorých došlo k zmenám oproti predchádzajúcemu výpočtovému modelu. Z prehľadu je zrejmé, že v jednotlivých fázach projektu sa môže niekoľko parametrov výrazne meniť – či už vplyvom cielenej optimalizácie konštrukčného, materiálového a technologického riešenia, alebo vplyvom viac či menej subjektívnych rozhodnutí strán zúčastnených na projekte a realizácii stavby.

Tab. 1: Súčinitele prechodu tepla U (W/(m2 . K)) pre jednotlivé výpočtové varianty a celkové výsledky

Výsledky tepelnotechnického posúdenia ukazujú, že energetická kvalita objektu sa v jednotlivých fázach návrhu i realizácie môže výrazne líšiť. Preto treba sledovať projekt i výstavbu a priebežne overovať vplyv čiastkových zmien alebo úprav tak, aby nedošlo k výraznému odchýleniu od vytýčených cieľov.
Zároveň sú z výsledkov analýzy zrejmé významné rozdiely medzi tzv. optimalizačným prístupom a tzv. deklaračným prístupom [2]. Z toho vyplýva potreba prijať do budúcnosti – najmä na deklaračné účely – taký spôsob výpočtu, ktorý bude čo najmenej citlivý na subjektívne spôsoby posudzovania, aby bolo možné objektívne vyhodnocovať a vzájomne porovnávať technickú kvalitu stavieb medzi sebou.

Optimalizačný prístup slúži na optimálny návrh stavby a jej jednotlivých komponentov v konkrétnych podmienkach s cieľom maximálne efektívne využiť technické a finančné možnosti na dosiahnutie stanovených cieľov.

Realizácia stavby

Pri realizácii stavby sa dbalo na kvalitné vykonanie stavebných prác z hľadiska prerušenia tepelných mostov v tepelnoizolačnom plášti stavby aj z hľadiska zabezpečenia tesnosti vzduchotesnej vrstvy stavby, ktorá zároveň tvorí parozábranu. Výsledok deklarovaný okrem iného Blower Door Testom je daný kvalitne spracovanou vykonávacou dokumentáciou, ako aj príkladným vyhotovením realizačnej firmy.

Detaily prerušenia tepelných mostov v tepelnoizolačnej obálke stavby

Záver
Sledovanie návrhu i realizácie a zohľadnenie konkrétnych zmien a úprav sú súčasťou zabezpečenia požadovanej akosti stavby. Analýzy poukazujú na stále väčšie kvalitatívne požiadavky pri vstupných údajoch, najmä dátach týkajúcich sa tepelnotechnických vlastností použitých materiálov (napr. tepelných izolácií, parotesných a vzduchotesných vrstiev…) a jednotlivých komponentov (výplní otvorov atď.).

Článok bol prevzatý zo zborníka konferencie Pasivní domy 2008 v Brne.
Jan Růžička, Radek Začal
Foto: autori

Jan Růžička pôsobí na stavebnej fakulte ČVUT v Prahe a v ateliéri KUBUS.
Radek Začal pôsobí v ateliéri KUBUS.

Literatúra
1. Růžička, J. – Začal, R. – Novák, J.: Tvorba koncepce nízkoenergetických staveb ve fázi jejich návrhu. Sborník Pasivní domy 2006. Centrum pasívneho domu, 2006, s. 64 – 65.
2. Tywoniak, J.: Metodika hodnocení nízkoenergetických rodinných domů. Tepelná ochrana budov, 1/2008, s. 11 – 17. ISSN 1213-0907.

Článok bol uverejnený v časopise Stavebné materiály.