Pasívny dom zo slamených panelov
Pri pojme ideálne bývanie si predstavíme predovšetkým komfort a nízke prevádzkové náklady. Základom splnenia tejto vízie je navrhnutie stavby priamo na mieru a jej mimoriadne kvalitné zhotovenie. Pasívna stavba dneška dokáže vrátiť vložené náklady, je šetrná k životnému prostrediu a lahodí oku. Príkladom pasívneho domu, ktorý spĺňa všetky spomenuté atribúty, je rodinný dom od spoločnosti Createrra zo Senca v rakúskom kúpeľnom mestečku Bad Deutsch Altenburg.
Situovanie do svahu je naplno využité pri návrhu stavby
Rodinný dom je navrhnutý ako dvojpodlažná samostatne stojaca stavba s garážou. Základová doska je zateplená extrudovaným polystyrénom XPS s hrúbkou 200 mm bez tepelných mostov. Výplň dreveného skeletu tvoria slamené panely chrubé 400 mm, vďaka ktorým je stavba presná a výstavba rýchla. Ochranu panelom z prírodného materiálu poskytujú drevovláknité dosky s hrúbkou 100 mm.
NEPREHLIADNITE: SLAMENÝ DOM – LACNÝ A EKOLOGICKÝ EXPERIMENT
Vonkajšia úprava fasády ma dvojaký charakter, prízemie je omietnuté certifikovanou omietkou na drevovláknité dosky, hmotu poschodia zvýrazňuje obklad z červeného smreka.
Stavbu ukončuje zelená strecha s extenzívnym porastom. Je izolovaná EPS150 s hrúbkou 450 mm.
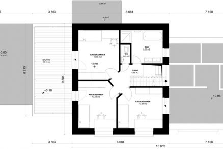
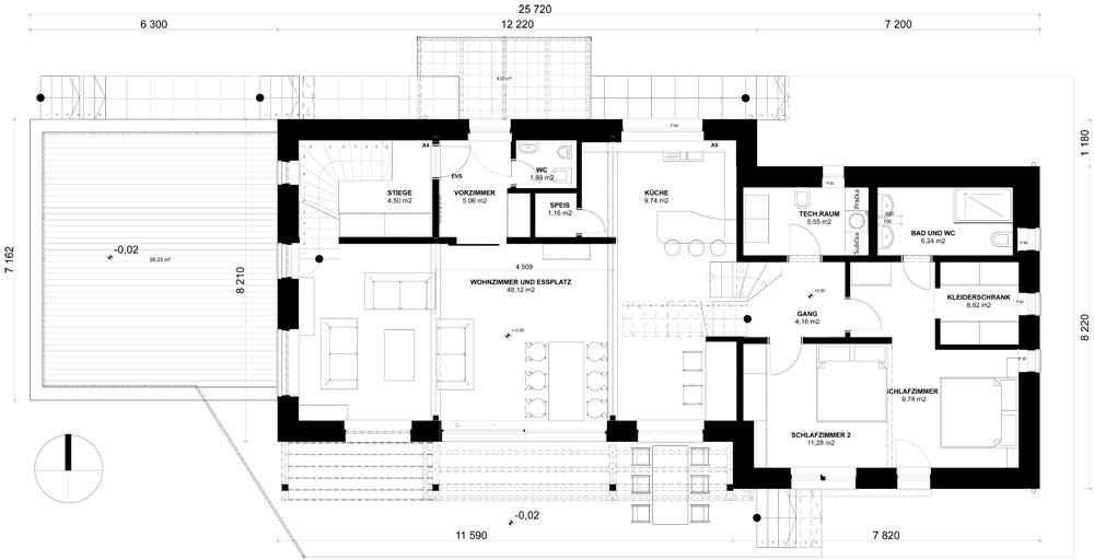
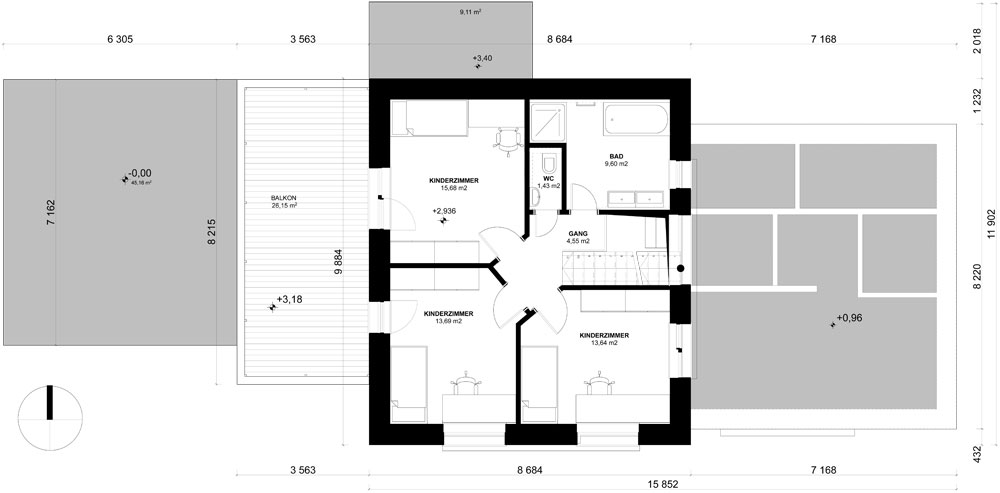
Rozľahlosť stavby umožnilo vytvoriť veľkorysú dispozíciu. Stavba má celkovo šesť obytných miestností – obývaciu izbu s jedálňou, päť spální. Nájdeme tu aj dve kúpeľne, práčovňu, špajzu i veľký šatník.
![]() |
![]() |
Podhľad masívnych drevených stropných konštrukcií tvorí biely smrek (Lignotrend).
![]() |
![]() |
Vnútorné povrchy stien sú ošetrené hlinenou omietkou, ktorá vytvára vzduchotesnú rovinu.
NEPREHLIADNITE: PASÍVNY SLAMENÝ DOM – ROZHOVOR S ARCHITEKTMI
O tepelnú pohodu v interiéri sa stará nízkoteplovodné nástenné vykurovanie pomocou kompaktnej jednotky Aerosmart X2, ktorá zároveň zabezpečuje aj vetranie s rekuperáciou tepla a v lete pasívne chladenie. Okná a dvere rodinného domu sú z kombinovaného materiálu (drevo – hliník, zn. Smartwin).
Parametre pasívnej stavby
- Merná potreba tepla na vykurovanie za rok: 12,5 kWh/m2 . a (výpočet PHPP)
- Vzduchová priepustnosť: n50 = 0,32 h-1 (nameraná)
- Faktor tvaru A/V: 0,8
- Tepelná strata: 13,4 W/m2 (vypočítaná podľa PHPP)
- Celková potreba primárnej energie: 60 kWh/m2 . a (OPV, vykurovanie, chladenie, domáce spotrebiče a pomocná elektrina)
- Potreba primárnej energie: 26,1 kWh/m2 . a (OPV, vykurovanie a pomocná elektrina)
Autor článku: Ing. arch. Paulína Oravcová
Architektonický návrh: Ing. Marián Prejsa, Mgr. art. Bjørn Kierulf – Createrra, s. r. o.
Návrh TZB: Ing. Juraj Očenášek
Realizátor stavby: svojpomocne
Autor fotodokumentácie: Ing. arch. Daniel Marinica























