Pasívny dom z mesta Slnečných jazier
Pasívne domy od architektonického ateliéru Createrra sa rozrástli o ďalšiu vydarenú realizáciu. Rodinný dom situovaný v Senci bol navrhnutý pre štvorčlennú rodinu, ktorej želaním bolo úsporné bývanie v slnečnej stavbe.
Hlavnú konštrukciu stavby tvoria vápennopieskové tehly hrubé 175 mm, ktoré sú vďaka svojej hrúbke i pevnosti v tlaku vhodné na pasívne stavby zatepľované hrubou vrstvou tepelnej izolácie. Vďaka otvorom v tehlách vytvoreným už vo výrobe je v nich možné bezproblémovo viesť elektroinštalačné rozvody. Použil sa filigránový strop.
Filigránový strop
Ide o stropnú konštrukciu, ktorá má v sebe zabudované vykurovacie rozvody, časť elektroinštalácie i vetracie potrubia. Jej výhodou je jednoduchšia a čistejšia inštalácia rozvodov spolu s budovaním stropných konštrukcií. Strecha je riešená pomocou Steico nosníkov s izoláciou z fúkanej celulózy. Pokrýva ju keramická krytina Tondach.
Fasádu na jednopodlažnej časti izoluje fenolživicová izolácia vo vrstvách a drevený odvetrávaný obklad. Zvyšná časť domu je izolovaná vrstvou polystyrénu a minerálnej vlny (25 + 5 cm). Presvetlenie interiéru z južnej a juhozápadnej stany zabezpečuje rohové okno s posuvným HS portálom a vysoké okná v pracovni. Podkroviu dodajú svetelnosť štyri veľké vikiere, ktoré sú vytvorené zo Steico I-nosníkov, dosiek OSB 3 so zateplením fenolovými doskami. Vonkajším materiálom vikierov je čierny titánzinkový plech.
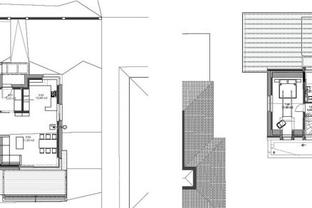
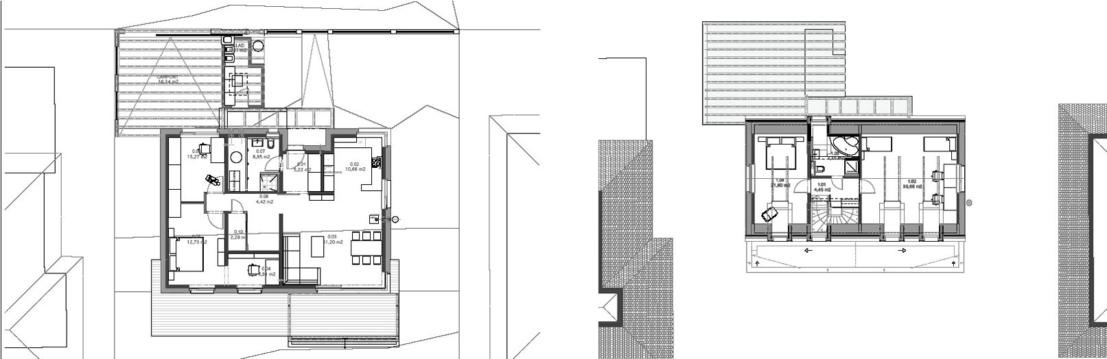
Stavba osadená na pôvodných základoch nezrealizovaného projektu bungalovu bývalého majiteľa dokonale využíva potenciál pozemku. Základová konštrukcia prešla úpravou potrebnou pri pasívnom štandarde. Veľkosť základovej dosky si vyžadovala jednopodlažnú stavbu, na ktorú je sčasti nadstavené obytné podkrovie. Vznikla tak architektonicky pútavá hmota, ktorá akcentuje zmenu podlaží pridaním vikierov.
Kompaktnú hmotu stavby jemne doplňuje prístrešok pre automobil so skladovým priestorom, ktorý svojím vysunutým tvarom prispel k vzniku pomocnej multifunkčnej miestnosti – žehliarne, sušiarne, a šatníka – a tiež hosťovskej izby s pracovným kútom na prízemí. Vnútorná dispozícia je členená štandardne na dolnú dennú a hornú nočnú časť s hygienickým zázemím. Priestor je vďaka rozľahlejšiemu pôdorysu vzdušný, orientácia je prispôsobená funkciám jednotlivých častí.
Plochú strechu obohacuje suchomilný porast, ktorý je zaujímavým prvkom a skrášľuje výhľad z podkrovia.
Technické vybavenie domu:
- okná a dvere s izolačným trojsklom,
- 6 m2 solárnych kolektorov so zásobníkom na vykurovanie i teplú vodu,
- pec na palivo WODTKE GIRO KK 51
- vetracia jednotka so soľankovým okruhom na pasívne letné chladenie, ktoré je zabudované vo filigránových stropoch.
Autori projektu: Ing. arch. Katarína Bacigálová, Createrra, s. r. o.
Autor projektovej dokumentácie: Ing. arch. Katarína Bacigálová
Vzduchotechnika a technický návrh: Mgr. art. Bjørn Kierulf
Statika: Ing. František Hladký
Elektroinštalácie: Ing. Jaroslav Dulanský
Ing. arch. Paulína Oravcová
Foto: Ing. arch. Daniel Marinica
















