Pasívny dom v marhuľovom sade
Rakúska obec Kittsee je Slovákom, najmä tým z juhozápadných oblastí, dobre známa. Nielenže sa tam mnohí vyberajú na nákupy, ale pozemky v blízkom okolí na území Rakúska sú atraktívnym riešením bývania pre mladé rodiny.
Rodinný dom v marhuľovom sade sa stal taktiež domovom pre mladú rodinu – je príjemný, v súlade s prírodou, ale aj moderný, a navyše pasívny.
Inovatívny prístup
Bývať v marhuľovom sade môže vyzerať ako splnený sen z detstva, navyše v pasívnom dome, ktorý poskytuje všetko podstatné na príjemné bývanie… Sympatický dom vyšiel z dielne štúdia Createrra. Táto spoločnosť sa špecializuje na pasívne budovy, pričom ich motto je jasné: „Sme zodpovední za uvedenie rôznych nových stavebných techník a detailov pre pasívne domy do slovenských realizácií. Naďalej tieto riešenia dolaďujeme v prospech svojich klientov. Výsledkom našich inovácií je vyššia kvalita a nižšie náklady.“
Stojí na penovom skle
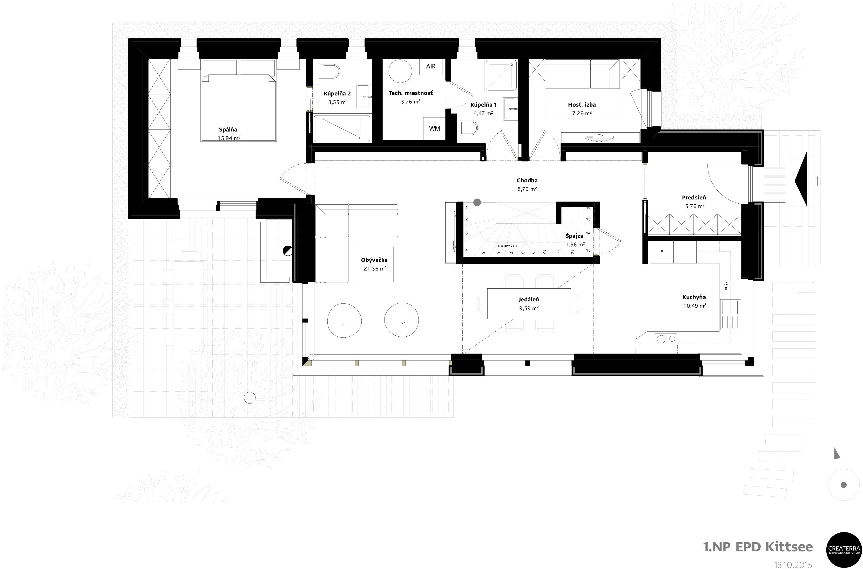
Dvojpodlažný dom z rakúskeho marhuľového sadu tvarom pripomína modernú stodolu s množstvom okien, ktoré príjemne presvetľujú interiér. Je postavený na základovej doske na penovom skle. Konštrukciu stavby tvorí drevený nosný systém Lignotrend. Zateplenie strechy a obvodového plášťa bolo vyhotovené z nosníkov vyplnených celulózou. Charakteristickým prvkom v exteriéri sú červené zastrešenia, v interiéri je to jedáleň otvorená do druhého nadzemného podlažia.
V kontakte s prírodou
Hlavný vstup do domu je z užšej strany, je prekrytý zastrešením a vysadený okrasnými rastlinami. Kvety a zeleň sa nachádzajú v celom blízkom okolí domu. I preto má veľký význam priame prepojenie domu s terasou a so záhradkou. Umožňujú ho dvojkrídlové zasklené dvere z obývacej miestnosti. Priestor južnej terasy určenej na relax a oddych celej rodinky i hostí prekrývajú podobné zastrešenia ako pri hlavnom vchode s opornými stĺpmi v tvare písmena V.
Ďalšie technické informácie
Ročná merná potreba tepla: 15,4 kWh/(m2/a)
Blower Door Test: n50 = 0,21 1/h
Vykurovaná plocha: 134,2 m2
Tepelná strata: 16,1 W/m2 (spolu 2 159W)
Potreba primárnej energie – celková (OPV, vykurovanie, chladenie, pomocná elektrina a domáce spotrebiče): 76 kWh/(m2/a)
Sídlo kancelárie architektov je svetová rarita
Za zmienku stojí aj samotná kancelária architektonického štúdia Createrra, s. r. o. Nachádza sa v dedinke Hrubý Šúr pri Senci a je svetovým unikátom. Ide totiž o prvú samonosnú kupolu zo slamených balov na svete. Je to stopercentne ekologická a zároveň experimentálna stavba, o ktorej si viac môžete prečítať tu.
Pasívny dom v marhuľovom sade v kocke
Architektonické štúdio: createrra
Návrh: Petronela Pagáčová, Bjorn Kierulf
Rok projektu: 2012
Realizácia: 2013 až 2014
Úžitková plocha: 134,2 m2
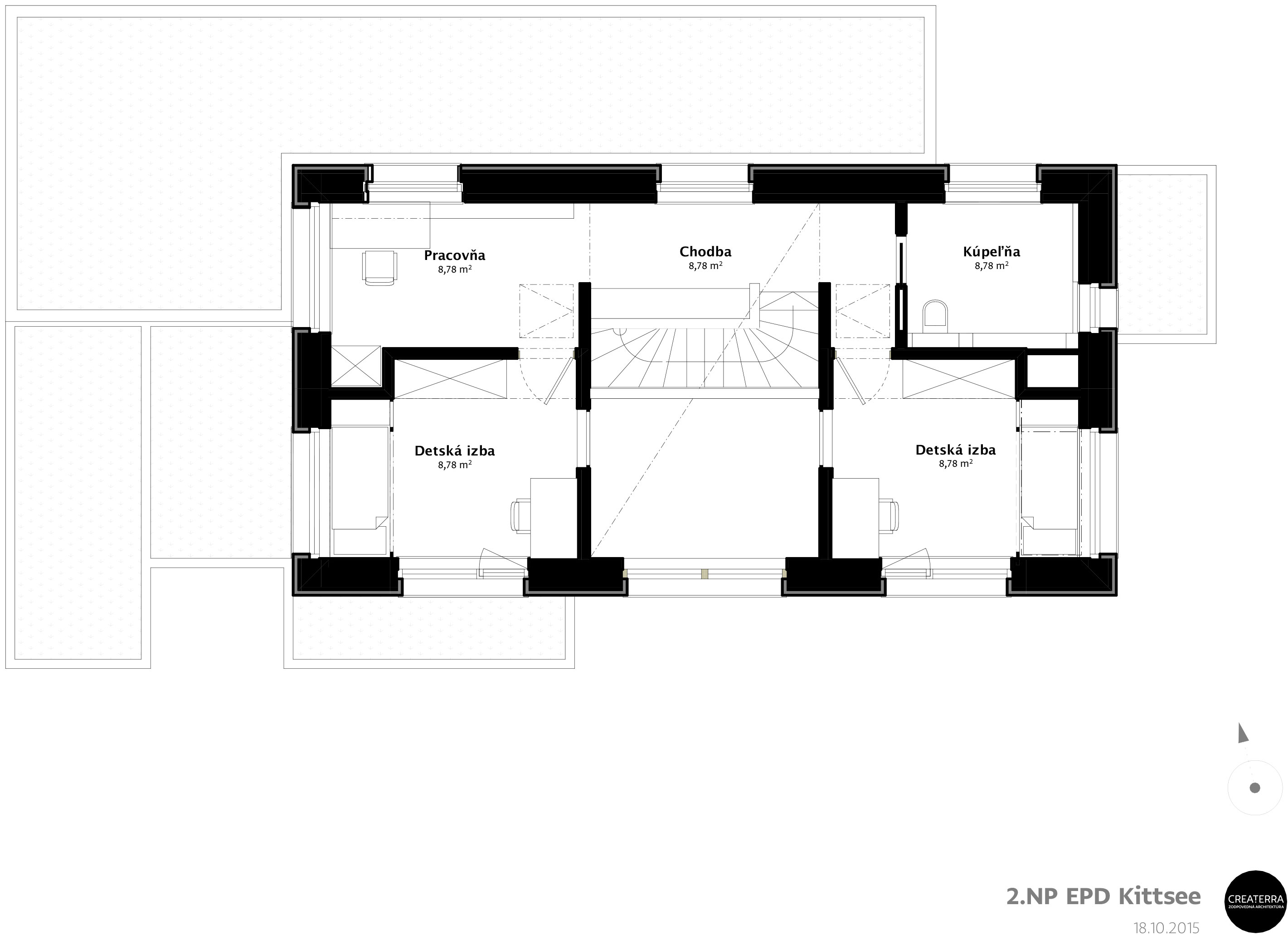
Pôdorys 1. a 2. NP
Sabína Zavarská
Foto: Milan Hutera



















