pasivny dom v atraktivnej uprave
Galéria(15)

Pasívny dom v atraktívnej úprave

Rodinný dom Na Kremenici v Stupave vznikol ako výsledok aktívnej spolupráce architekta Pavla Pokorného, ateliéru Pokorny architekti a investora. Prvotná predstava majiteľov o účelovej drevostavbe sa počas procesu návrhu a realizácie obohatila o energetickú efektívnosť, komfortné bývanie a atraktívnu architektúru, s ktorou si pasívne domy v našich končinách nie vždy spájame.

pasivny dom v atraktivnej uprave 7345 big image
viz3 big image
obr3 big image
obr4 big image
obr5 big image
obr6 big image
pdf1 big image
obr7 big image

Pílovitý tvar strechy domu ponúka priestor na zvýšenie svetlých výšok miestností na poschodí. Zároveň tvorí optickú bariéru odčleňujúcu susedný objekt na východnej strane.


Priznané drevené časti nájdeme pri vstupe, na prístrešku pre automobil či pri prepojení interiéru prízemia so záhradou. Jednoduchosť bielej fasády a jemných drevených detailov vytvára ucelený a elegantný dojem.


Montovaná drevostavba z uzavretých boxových panelov dosahuje v parametri primárnej potreby tepla na vykurovanie výsledok 14 kWh/m2, čím sa radí do kategórie energeticky pasívnych domov. Využitiu solárnej energie napomáha správna orientácia domu. Tepelnú pohodu v letnom období garantujú exteriérové hliníkové žalúzie.

Celkové pohľady na osadenie objektu rodinného domu


Vstup do domu je spolu s technickým zázemím (vjazd, prístrešok na parkovanie, budúci objekt kôlne na náradie) orientovaný na severnú stranu, naopak, južná strana naplno využíva prepojenie prízemia domu so záhradným exteriérom.


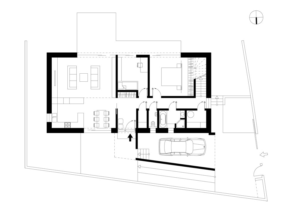
Prízemie domu je proporčne rozdelené medzi „verejnú“ obývaciu časť (kuchyňa, jedáleň, obývačka) a intímnu časť spální. Dispozíciu dopĺňajú hygienický uzol, technické a vstupné priestory. Komunikačné prepojenie zabezpečuje priame schodisko.


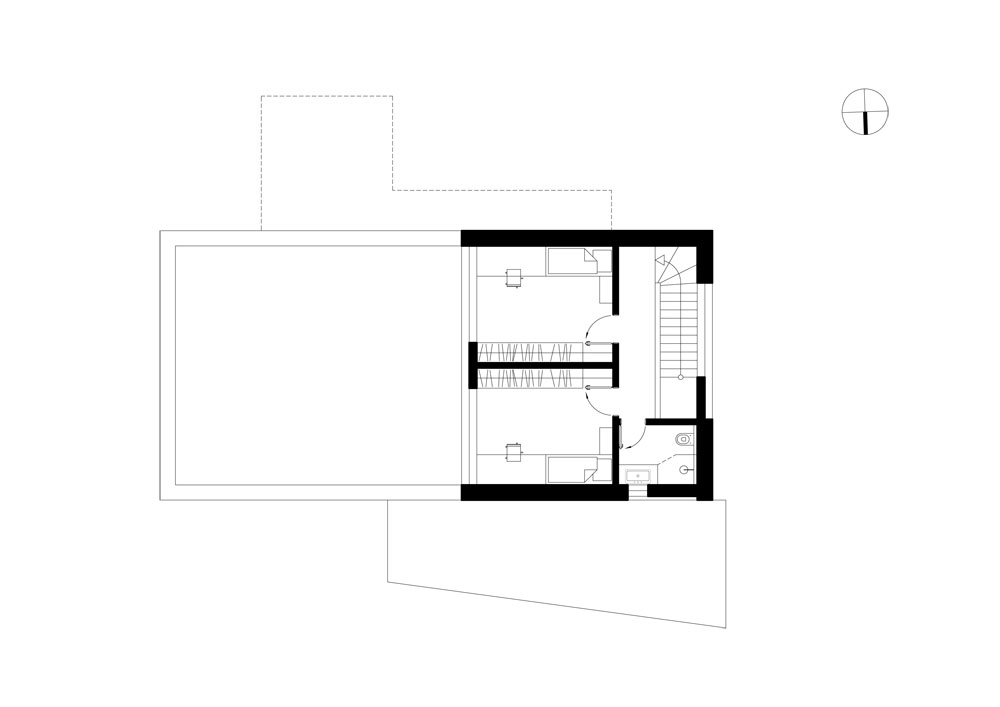
Druhé nadzemné podlažie hmotou z polovice ustupuje a dispozícia je z dôvodu ochrany pred nadmerným letným preslnením otočená na východnú stranu. Priestor dokonale postačuje na dve detské izby a menšiu kúpeľňu. Strop nad prízemím je navrhovaný ako zazelenaná strecha.


Nárožná poloha pozemku necháva stavbe možnosť vyniknúť v okolitej zástavbe rodinných domov.

Autorka článku: Ing. arch. Paulína Oravcová
Autor: Pavol Pokorný, Pokorny architekti, s.r.o., www.pokornyarchitekti.sk
Spolupráca: Martin Bujna
Autor fotografií: Daniel Veselský
Autor vizualizácií a dokumentácie: Pavol Pokorný, Pokorny architekti, s.r.o.