Pasívny dom pre mladú rodinu – rozhovor s architektom
Rodinný dom je umiestnený na tichej ulici v okrajovej časti obce. Prístupová cesta je vedená ideálne zo severnej strany, na južnej strane je pozemok lemovaný potokom a jelšovým porastom. O svoje skúsenosti s projektami pasívnych domov sa s nami podelil Ing. arch. Daniel Bizoň.
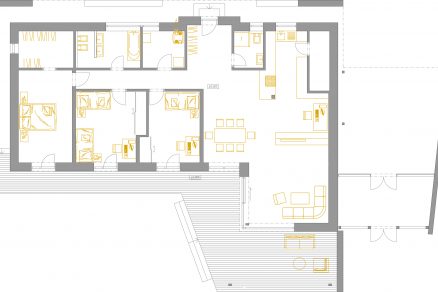
Koncept domu
- prízemný rodinný dom pre mladú rodinu
- prehľadná dispozícia a jednoduchý dizajn
- južná orientácia izieb a terasy, prepojenie domu a záhrady
- pasívny dom + prírodné materiály = zdravý dom, v ktorom sa dobre býva

Dispozične je dom orientovaný všetkými obytnými miestnosťami na juh, pričom z každej izby sa vychádza na terasu. Terasa „levituje“ nad terénom, okolie domu je ponechané a upravené v prirodzenej podobe, lúčny trávnik prechádza na mólo nad potokom.

Vonkajšie materiály: biela omietka, smrekovcové obklady bez náteru, antracitové drevohliníkové okná a dvere, antracitová strešná krytina z pásového plechu.

Dom je navrhnutý a postavený na koncepte pasívneho domu:
- južná orientácia a kompaktná dispozícia
- zaizolovaná obálka domu s eliminovaním tepelných mostov
- dôraz na vzduchovú neprievzdušnosť
- riadené vetranie

O aký typ konštrukcie drevostavby ide?
Nosná konštrukcia obvodových stien rodinného domu je drevená stĺpiková s prídavnými roštami smerom do interiéru aj exteriéru. Nosná konštrukcia stropu a strechy je kombinovaná, nad nočnou časťou domu je fošnový strop a stojatá stolica krovu a nad dennou časťou je strešná konštrukcia z drevených „I“ nosníkov (Steico) uložená na oceľovom ráme.

Plášť a strecha
Môžete nám priblížiť skladbu obvodového plášťa a strechy?
Skladba obvodového plášťa stien, stropov, resp. strechy je obdobná – v nosnej konštrukcii a v prídavných roštoch je umiestnená tepelná izolácia, ktorá je tvorená minerálnou vlnou, ale aj mäkkými drevovláknitými doskami. Ich výhodou je predĺženie fázového posunu letných teplôt a tým zníženie letného prehrievania interiéru.
Konštrukcie boli vytvorené tak, aby bolo možné umiestniť 40 – 55 cm tepelných izolácií a dosiahnuť tak hodnoty U = 0,10 až 0,07 (W. K. m-2). Obvodové konštrukcie stien, stropov a strechy sú difúzne otvorené.

Typ konštrukcie
Aký typ nosnej konštrukcie (drevostavba/murovaný dom) by ste uprednostnili pri návrhu pasívneho rodinného domu a prečo?
To je zaujímavá otázka, ale všeobecne si myslím, že sa jej všetci až príliš venujeme. Mňa zaujíma skôr kvalita konštrukcie, tesnosť a prevedenie bez tepelných mostov. Z mojej skúsenosti na stavbách sa mi práve s ohľadom na spomínanú kvalitu osvedčili práve drevostavby.
Pri murovaných domoch majú realizačné firmy problém s dosahovaním tesnosti a s tepelnými mostami. Verím, že je to iba otázka času, kedy sa to zlepší, ale výstavba v pasívnom štandarde je najmä o precíznosti a rozmýšľaní „o 1 krok vpred“.
Ale aby som neobišiel otázku – najlepšia je pre mňa kombinácia oboch systémov, to znamená použitie drevenej konštrukcie aj murív. Napríklad nosná drevená konštrukcia je doplnená murovanými priečkami (ako aj napríklad v rodinnom dome Záhorie).
Veľkou výhodou drevených konštrukcií je jednoduchšie umiestňovanie tepelných izolácií v požadovaných hrúbkach a zároveň možnosť používať aj ekologickejšie tepelné izolácie (napr. celulóza, slama a podobne). Pri murovaných domoch je najjednoduchšie použiť kontaktný zatepľovací systém so sivým polystyrénom, čo je síce ekonomické riešenie, ale nie práve najpriateľskejšie k prírode.

Výstavba
Ako dlho trvala výstavba domu?
Prvá fáza pozostávala zo zemných prác, vytvorenia pláne z granulovaného penového skla a odliatia základovej dosky z drátkobetónu. Následná drevostavba bola zrealizovaná za 2 mesiace.
Rodinný dom je navrhnutý v pasívnom štandarde. Môžete nám popísať technológie, vďaka ktorým bol dosiahnutý tento stav?
Rozhodujúce nie sú technológie, ale koncept domu, kompaktnosť, dispozičné riešenie, orientácia a veľkosti otvorov a, samozrejme, kvalita obvodových konštrukcií, t. j. tepelnoizolačné vlastnosti a tesnosť obálky s minimalizovaním tepelných mostov. Toto je základ kvalitného domu.
Z technológií je pre dosiahnutie kvalitného vnútorného prostredia nutné použitie riadeného vetrania s rekuperáciou. Všetko ostatné je z hľadiska konceptu pasívneho domu „nadštandard“.
Ale dom nie je iba o vykurovaní, resp. minimálnej potrebe tepla na kúrenie, potrebujeme vyriešiť aj prípravu teplej vody, elektroinštaláciu a podobne, kde tiež treba dbať na nízku spotrebu a kvalitu. V tomto prípade sme sa rozhodli pre tepelné čerpadlo vzduch – voda, ktoré zabezpečuje teplú vodu, podlahové vykurovanie aj chladené stropy. Nízka spotreba elektrickej energie a užívateľský komfort je dosiahnutý vďaka inteligentnej elektroinštalácii.
Ak by sme k pasívnemu domu pridali viac techniky – väčšie využitie obnoviteľných zdrojov, napríklad fotovoltiku, tak sme na ceste k tzv. nulovému domu. To je výzva do budúcna. Myslím, že práve v tejto oblasti bude dochádzať v blízkej budúcnosti k najrýchlejšiemu vývoju.

Investície
O koľko je podľa vás vyššia investícia do pasívneho domu v porovnaní s bežným rodinným domom? A aká je návratnosť tejto investície?
Nemám túto otázku veľmi v obľube. Ja tvrdím, že každý stavebník, ktorý sa rozhodne stavať v súčasnosti rodinný dom, sa môže rozhodnúť pre pasívny koncept. Je to skôr o prioritách. Zväčša sa dá dom zmenšiť, zjednodušiť, dajú sa vylúčiť rôzne prvky ako balkóny a podobne.
Milujem jednoduché riešenia a koncepty, pre mňa je ideálny dom tvarovo aj dispozične jednoduchý, nemusí byť veľký a je postavený na koncepte pasívneho domu. Takže približne takto: kvalita, nie kvantita. Potom netreba ani uvažovať o navýšení ceny domu.
Ale, samozrejme, ak by sme porovnávali zhodný dom, tak pasívny bude určite minimálne o 10 percent drahší. Návratnosťou sa zaoberalo mnoho štúdií a vychádza v rozpätí 10 až 20 rokov, ale to pre mňa nie je opäť podstatné. Kto si počíta návratnosť Mercedesu?
Pasívny dom vám okrem nízkych účtov dá vysoký komfort, čerstvý vzduch, žiadne plesne či chladné kúty. A to má zmysel nielen pre obyvateľov domu, ale aj pre konštrukciu, špeciálne pre drevostavbu.

Nastali situácie, kedy sa rozchádzali názory klienta a ateliéru? Kto koho ovplyvnil viac?
Táto práca na štúdiách a projekte rodinného domu na Záhorí sa mi robila veľmi dobre, s investorom aj stavebnou firmou sme sa, myslím, spoločne názorovo cítili „na jednej vlne“. Dôvera, ktorú mi dal investor, sa mu, dúfam, vyplatila.

Výstavba drevostavby
Mal ste pri návrhu nejaké obmedzenia súvisiace s pasívnym konceptom domu? Prečo sa podľa vás Slovensko tak úspešne bráni tomuto energeticky úspornejšiemu variantu bývania?
Stalo sa mi napríklad, že optimálne osadenie domu na pozemok bolo v rozpore s miestnymi regulatívami, takže bolo potrebné množstvo dohadovania sa na úradoch. V tomto prípade boli dané obmedzenia zastavanej plochy a tvarovania striech, čo možno paradoxne mohlo aj pomôcť k zaujímavému výsledku.
Aký máte názor na výstavbu drevostavby svojpomocne alebo na výstavbu rodinného domu vo všeobecnosti?
Je zaujímavé, že práve pri pasívnych domoch som už stretol viacero “nadšencov“, ktorí si dokázali svojpomocne postaviť kvalitný rodinný dom, drevostavbu, dokonca musím povedať, že som sa od nich veľa naučil. Určite by som svojpomocnú výstavbu nezavrhoval, ale, samozrejme, je to o konkrétnom človeku, aký je zručný, aké má skúsenosti a ako si dokáže problematiku naštudovať.
Ale nepovažujem to za riešenie, ja si myslím, že odborné práce majú robiť odborníci, ideálna je podľa mňa menšia firma s vyškolenými a zručnými remeselníkmi, ktorí sa na zákazku nepozerajú iba ako na zárobok, ale ako na dielo, ktoré chcú dobre zrealizovať. To sa, myslím, podarilo aj pri tomto dome na Záhorí.

Obvodový plášť
- obvodová stena: U = 0,10 (W. K. m-2)
- drevená stĺpiková konštrukcia
- difúzne otvorená skladba s použitím minerálnej vlny a drevovláknitých dosiek, strop: U = 0,07 (W. K. m-2)
- drevený trámový, resp. STEICO nosníky
- difúzne otvorená skladba s použitím minerálnej vlny a drevovláknitých dosiek, podlaha: U = 0,13 (W. K. m-2)
- železobetónová doska na zhutnenom lôžku z penového skla a kameniva
- okná a dvere: U = 0,8 (W. K. m-2)
- drevohliníkové rámy, izolačné trojsklo

Vzduchotesná rovina
OSB doska na stene a strope, železobetónová základová doska
Technológie
Riadené vetranie: centrálne, jednotka Paul Santos 370 DC, rozvody Octopus
Podlahové vykurovanie, stropné chladenie a príprava teplej vody: tepelné čerpadlo Daikin Alterma
Inteligentná elektroinštalácia
Po prvej zime je majiteľ maximálne spokojný s vynikajúcim vnútorným prostredím a skutočne nízkymi prevádzkovými nákladmi.
V okolí domu sa ešte dokončujú záhradné úpravy.

Architekt a projektant
Ing. arch. Daniel Bizoň, Banská Bystrica
člen Slovenskej komory architektov
podporujúci člen Inštitútu pre energeticky pasívne domy
certifikovaný projektant pasívnych domov
www.atelierbizon.sk
Generálny dodávateľ stavby: Lignea Cor, s. r. o., Banská Bystrica
FOTO: Ateliér Bizoň











